This house on Funda: https://www.funda.nl/en/detail/koop/anloo/huis-doornakkers-16/43135641/

Description
Aan de rand van het pittoreske dorp Anloo, gelegen aan een rustig hofje zonder doorgaand verkeer, ligt deze helft van een dubbel woonhuis met vrijstaande stenen garage. Hier kun je landelijk wonen op een kavel van maar liefst 879 are, met een verassende diepe achtertuin met mini fruitboomgaard en prachtig vrij uitzicht. Aan de voorzijde kijk je uit op een gezellige groenstrook met picknickbank, speeltuin en tafeltennistafel. Of je nu op zoek bent naar een fijne gezinswoning of gewoon wilt genieten van de rust van het Drentse platteland — Doornakkers 16 biedt het allebei.
INDELING:
Begane grond:
hal/entree, meterkast, trapopgang, trapkast, woon- en eetkamer met als extra warmtebron een sfeervolle palletkachel, half open keuken, bijkeuken met spoelunit, ruimte voor witgoed en tevens dienend als achteringang van de woning;
Eerste verdieping:
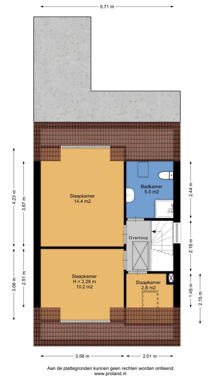
overloop, één kleine slaapkamer, uitstekend te gebruiken als thuiskantoor en twee ruime slaapkamers die zijn uitgebouwd met een dakkapel (kunststof kozijnen), badkamer voorzien van douche, wastafel, toilet (sanibroyeur) en dakraam;
Zolderverdieping:
beloopbare zolderverdieping bereikbaar via een vlizotrap, opstelplaats van de cv-ketel(2019);
Tuin:
de woning heeft een voor,- zij,- en achtertuin. De gunstig op de zon gelegen achtertuin beschikt over een grote vrijstaande houten schuur onderverdeeld in een schuur en een tweetal bergingen. Vrijstaande stenen garage met vliering naast de woning.
MATEN EN INDELING:
Voor de verdere indeling en maten van deze woning verwijzen wij u graag naar de aangehechte plattegronden. De meetinstructie is gebaseerd op de BBMI. De meetinstructie is bedoeld om een meer eenduidige manier van meten toe te passen voor het geven van een indicatie van de gebruiksoppervlakte. De meetinstructie sluit verschillen in meetuitkomsten niet volledig uit.
GOED OM TE WETEN:
* energielabel B, geldig tot 29 juli 2034;
* palletkachel in de woonkamer, blijft achter.;
* 8 zonnepanelen;
* de vaste vergoeding aardbevingsschade van € 5.000,00 en de SNN subsidie is ontvangen. De eventueel te ontvangen tweede vergoeding wordt overgedragen.
OMGEVING:
Anloo is een actief dorp met een basisschool en een bruisend verenigingsleven. In het beschermde dorpsgezicht van het dorp staan een aantal monumentale boerderijen rondom de Romaanse kerk, waar jaarlijks de middeleeuwse Etstoel wordt nagespeeld. In het nabij gelegen dorp Annen kunt u terecht voor uw dagelijkse boodschappen en overige voorzieningen. Door zijn unieke sfeer en omgeving trekt het dorp veel wandelaars die willen genieten van de prachtige natuur en de rust die het Stroomdallandschap van de Drentse Aa biedt. De N34 biedt aansluiting naar overige bestemmingen
Features
Transfer of ownership
- Listed since
- Acceptance
- Available in consultation
- Asking price
- € 374,000 kosten koper
- Asking price per m²
- € 3,596
- Status
- Sold under reservation
Construction
- Kind of house
- Single-family home, double house
- Building type
- Resale property
- Year of construction
- 1983
- Type of roof
- Gable roof covered with asphalt roofing and roof tiles
Surface areas and volume
- Areas
- Living area
- 104 m²
- Other space inside the building
- 4 m²
- External storage space
- 45 m²
- Plot size
- 879 m²
- Volume in cubic meters
- 395 m³
Layout
- Number of rooms
- 4 rooms (3 bedrooms)
- Number of bath rooms
- 1 bathroom and 1 separate toilet
- Bathroom facilities
- Shower, toilet, and sink
- Number of stories
- 2 stories and an attic
- Facilities
- Mechanical ventilation and solar panels
Energy
- Energy label
- B
- Insulation
- Roof insulation, double glazing, insulated walls and floor insulation
- Heating
- CH boiler
- Hot water
- CH boiler
- CH boiler
- Intergas (gas-fired combination boiler from 2019, in ownership)
Cadastral data
- ANLOO K 2413
- Cadastral map
- Area
- 393 m²
- Ownership situation
- Full ownership
- ANLOO K 2418
- Cadastral map
- Area
- 486 m²
- Ownership situation
- Full ownership
Exterior space
- Location
- Alongside a quiet road, in residential district and rural
- Garden
- Back garden, front garden and sun terrace
- Back garden
- 7 m² (3.00 metre deep and 2.40 metre wide)
- Garden location
- Located at the southwest with rear access
Storage space
- Shed / storage
- Detached wooden storage
- Facilities
- Running water
- Insulation
- No insulation
Garage
- Type of garage
- Detached brick garage
- Capacity
- 1 car
- Facilities
- Loft and electricity
Parking
- Type of parking facilities
- Parking on private property
Photos 50
© 2001-2025 funda

















































