This house on Funda: https://www.funda.nl/en/detail/koop/anna-paulowna/huis-molenveld-19/89392328/

Eye-catcherModerne Twee-onder-een-kap met Garage en 14 Zonnepanelen
Description
Richtprijs € 499.000,- k.k.
Ontdek deze sfeervolle twee-onder-een-kap woning in het charmante Anna Paulowna.
Zodra je binnenstapt, voel je direct de warme sfeer en ervaar je de ruimte die deze woning te bieden heeft. Met maar liefst zes kamers, waaronder vier slaapkamers, en een achtertuin met gunstige ligging op het zuidwesten ademt dit huis veel gemak en comfort uit. De woonoppervlakte bedraagt ca. 139 m², waardoor er volop ruimte is voor het hele gezin.
Deze twee-onder-een-kapwoning is gebouwd in 1998 en is gelegen op een perceel van 248 m². Het beschikt over een energielabel B dankzij de goede isolatie. De woning is voorzien van diverse extra’s, waaronder een uitbouw aan de achterzijde met een luxe woonkeuken met apparatuur, een moderne badkamer en toiletruimte en maar liefst 14 zonnepanelen.
Deze woning ligt op een ideale locatie: centraal in het dorp Anna Paulowna. Op loopafstand bevinden zich supermarkten, winkels, horeca en diverse wandelroutes. Ook het populaire dierenpark Landgoed Hoenderdaell is gemakkelijk te voet bereikbaar. Daarnaast ligt het NS-station op slechts enkele minuten fietsen, wat zorgt voor uitstekende verbindingen met de rest van de regio.
Begane grond
De begane grond bestaat uit twee kamers, waaronder een royale woonkamer waarin natuurlijk licht rijkelijk naar binnen stroomt via de grote ramen. Dit maakt het een aangename plek om te ontspannen of gasten te ontvangen.
De uitgebouwde woonkeuken is uitgerust met een royaal kookeiland en voorzien van moderne inbouwapparatuur. Vanuit de woonkeuken zijn zowel de bijkeuken als de garage bereikbaar. Via de openslaande deuren heb je toegang tot de zonnige achtertuin gelegen op het zuiden.
Verdiepingen
Op de eerste verdieping bevinden zich drie prima slaapkamers en een moderne badkamer met een inloopdouche, toilet en een stijlvolle wastafelmeubel.
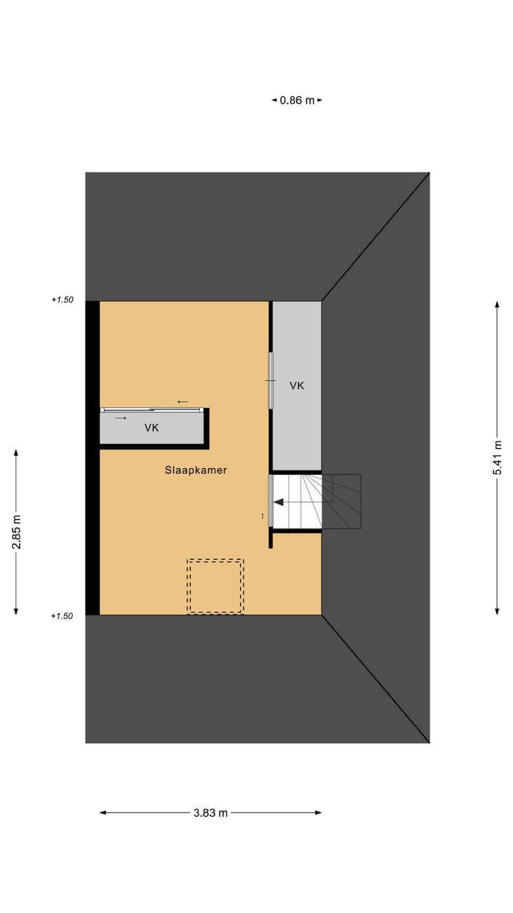
De tweede verdieping biedt een vierde slaapkamer, ideaal als logeerkamer, werkkamer of extra kinderkamer.
Tuin
De woning beschikt over fraai aangelegde voor- en achtertuin. De hoofdtuin is gelegen op het zuidwesten, waardoor je hier de hele middag en avond van de zon kunt genieten. Met een perceeloppervlakte van 248 m² is er voldoende ruimte voor buitenactiviteiten, speelruimte voor kinderen of een heerlijke loungeplek.
Bijzonderheden
• Vier slaapkamers
• Loopafstand van winkels en supermarkten
• Tuin op het zuidwesten
• Woonoppervlakte van 139 m²
• Energielabel B
• Luxe upfall douche (40 liter per minuut)
Kortom, dit charmante en ruime huis in het mooie Anna Paulowna is zeker een kijkje waard. Nodig ook uw partner uit voor een bezichtiging en beleef zelf hoe bijzonder deze woning is. Wacht niet langer en neem vandaag nog contact met ons op om uw bezichtiging te regelen!
Features
Transfer of ownership
- Original asking price
- € 525,000 kosten koper
- Listed since
- Acceptance
- Available in consultation
- Asking price
- € 499,000 kosten koper
- Asking price per m²
- € 3,590
- Status
- Sold under reservation
Construction
- Kind of house
- Single-family home, double house
- Building type
- Resale property
- Year of construction
- 1998
- Type of roof
- Combination roof covered with asphalt roofing and roof tiles
Surface areas and volume
- Areas
- Living area
- 139 m²
- Other space inside the building
- 18 m²
- External storage space
- 3 m²
- Plot size
- 248 m²
- Volume in cubic meters
- 510 m³
Layout
- Number of rooms
- 6 rooms (4 bedrooms)
- Number of bath rooms
- 1 bathroom and 1 separate toilet
- Bathroom facilities
- Walk-in shower, toilet, and washstand
- Number of stories
- 3 stories
- Facilities
- Outdoor awning, skylight, mechanical ventilation, TV via cable, and solar panels
Energy
- Energy label
- B
- Insulation
- Roof insulation, double glazing, energy efficient window, insulated walls and floor insulation
- Heating
- CH boiler
- Hot water
- CH boiler
- CH boiler
- Intergas HRE eco (gas-fired combination boiler from 2017, in ownership)
Cadastral data
- ANNA PAULOWNA L 5528
- Cadastral map
- Area
- 248 m²
- Ownership situation
- Full ownership
Exterior space
- Location
- In residential district
- Garden
- Back garden and front garden
- Back garden
- 72 m² (8.50 metre deep and 8.50 metre wide)
- Garden location
- Located at the southwest
Storage space
- Shed / storage
- Detached wooden storage
Garage
- Type of garage
- Attached brick garage
- Capacity
- 1 car
- Facilities
- Electricity, heating and running water
Parking
- Type of parking facilities
- Parking on private property
Photos 40
Floorplans 4
© 2001-2025 funda











































