This house on Funda: https://www.funda.nl/en/detail/koop/apeldoorn/huis-hogeweg-8-a/43740380/

Description
Wil je duurzaam en energiezuinig wonen in dit vrijstaand woonhuis, in jaren dertig stijl, en wel gelegen in de prachtige wijk 't Loo met vele karakteristieke buurhuizen? Kom dan vooral hier de sfeer en mogelijkheden ervaren. Dit moderne huis is v.v. een separate praktijkruimte of een slaap-/werkkamer op de begane grond, 3 slaapkamers op de verdieping, een complete badkamer, praktische inbouwkeuken met een natuurstenen werkblad, bijkeuken, ruime living met veel ramen, een aangebouwde garage, parkeergelegenheid op eigen terrein voor meerdere auto's en een tuin met veel privacy met zij-achterom, gelegen op het zuidoosten. De woning is gunstig gelegen in een rustig autoluw hofje (zij-straatje van een doorgaande straat) op loopafstand van het centrum van Apeldoorn, Paleis Het Loo, theater, de
bossen, sportaccommodaties, basis- en voortgezet onderwijs en natuurlijk de leuke winkelstraat van de Koninginnelaan om de hoek.
Bouwjaar 2006, woonoppervlak 126 m2, inpandige ruimte 36 m2, inhoud 620 m3, grondoppervlak 250 m2, energielabel A, isolatie optimaal. Verwarming en warm water middels een cv combi ketel (Nefit Smartline 2006).
Begane grond:
Entree/hal met een fraaie vide, garderobe onder de trap, toilet met fonteintje, groepenkast, royale lichte woonkamer met een tegelvloer. Door de gunstige maatvoering biedt de L-vormige woonkamer optimaal wooncomfort en is een ruime opstelling van meubels mogelijk. Ruime hoek opgestelde keuken uitgevoerd met alle benodigde apparatuur. Bijkeuken met aansluiting voor de wasapparatuur, doorloop naar de tuin, aanpandige garage (met flinke hoogte) en de werkkamer.
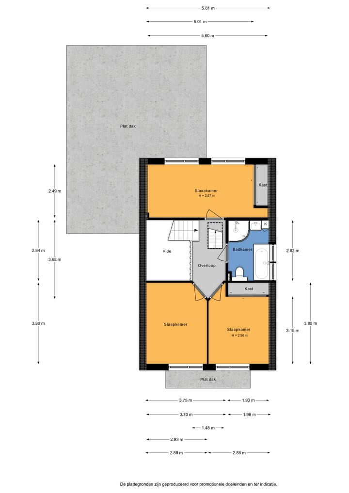
1e verdieping:
Overloop, 3 ruime slaapkamers, badkamer met een ligbad, douchecabine, 2e toilet en wastafelmeubel. De badkamer heeft vloerverwarming, mechanische ventilatie en ramen om lekker open te kunnen zetten.
2e verdieping:
Ruime zolder met stahoogte en daglicht. De zolder is thans bereikbaar door middel van een vlizotrap. Deze verdieping heeft de potentie voor extra kamer(s) wanneer een vaste trap wordt aangebracht.
Interesse in deze villa? Neem direct contact met ons op of schakel uw eigen NVM aankoopmakelaar in. Uw NVM aankoopmakelaar komt op voor uw belang en bespaart u tijd, geld en zorgen.
Aanvaarding: in overleg.
Features
Transfer of ownership
- Last asking price
- € 675,000 kosten koper
- Asking price per m²
- € 5,357
- Status
- Sold
Construction
- Kind of house
- Single-family home, detached residential property
- Building type
- Resale property
- Year of construction
- 2006
- Type of roof
- Gable roof covered with roof tiles
Surface areas and volume
- Areas
- Living area
- 126 m²
- Other space inside the building
- 36 m²
- Plot size
- 250 m²
- Volume in cubic meters
- 620 m³
Layout
- Number of rooms
- 5 rooms (4 bedrooms)
- Number of bath rooms
- 1 bathroom and 1 separate toilet
- Bathroom facilities
- Shower, bath, sink, and washstand
- Number of stories
- 2 stories and an attic
- Facilities
- Outdoor awning and mechanical ventilation
Energy
- Energy label
- A
- Insulation
- Completely insulated
- Heating
- CH boiler
- Hot water
- CH boiler
- CH boiler
- Nefit Smartline (gas-fired combination boiler from 2006, in ownership)
Cadastral data
- APELDOORN AB 4673
- Cadastral map
- Area
- 250 m²
- Ownership situation
- Full ownership
Exterior space
- Location
- Sheltered location and in wooded surroundings
- Garden
- Back garden and front garden
Storage space
- Shed / storage
- Attached brick storage
- Facilities
- Electricity
Garage
- Type of garage
- Attached brick garage
- Capacity
- 3 cars
Parking
- Type of parking facilities
- Parking on private property and public parking
Photos 36
© 2001-2025 funda



































