This house on Funda: https://www.funda.nl/en/detail/koop/arnhem/huis-boreasplantsoen-79/43898728/

Description
Ben je op zoek naar een ruime, moderne woning in de nabijheid van een winkelcentrum en het treinstation? In de wijk Schuytgraaf staat dit ruime huis met vier (mogelijk vijf) slaapkamers, een onderhoudsvriendelijke tuin en een vaste parkeerplek op het achtergelegen terrein. De woning heeft veel wooncomfort, is heerlijk licht en een mooie ligging met groen voor de deur.
De ligging in de nieuwbouwwijk Schuytgraaf is fraai, met het winkelcentrum op slechts 2 minuten lopen. Er is openbaar groen aan de voor- en achterzijde en aan het begin van de straat is een plantsoen met speeltuin. De wijk is geliefd bij gezinnen vanwege de Rivers International School, basisonderwijs en het Lorentz Lyceum. Station Arnhem Zuid is een Intercitystation, met goede verbindingen richting de Randstad en omliggende steden.
Indeling:
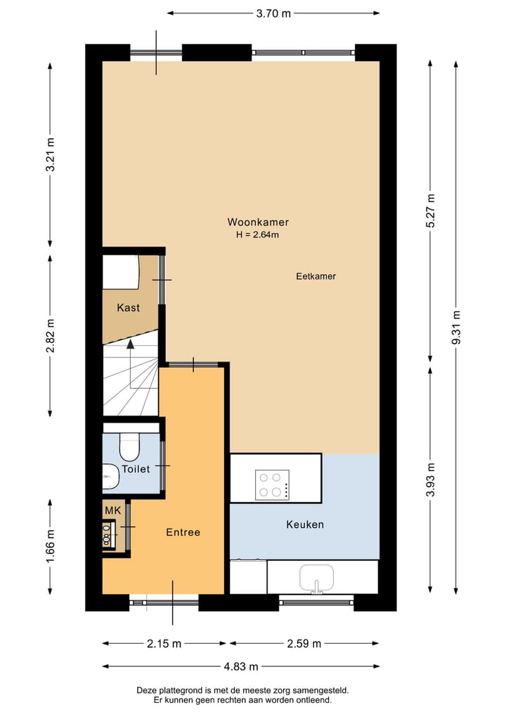
Begane grond:
Vanaf het trottoir is het een paar stappen naar de voordeur van deze ruime, lichte woning. In de hal ligt, net als op de hele begane grond, een donkere tegelvloer die bij verschillende interieurstijlen past. Links in de hal zijn de meterkast, trapopgang en de nette toiletruimte met fonteintje.
De tuingerichte woonkamer heeft grote ramen aan de westkant, waardoor veel daglicht naar binnen valt. Twee ramen zijn tot vloerhoogte, wat de woonkamer optisch groter maakt. Ook aan bergruimte is gedacht, want in de trapkast kun je veel spullen kwijt.
Aan de voorzijde is de keuken, waar een wandopstelling en een kook-/ziteiland gesitueerd zijn. De kleur van de aanrechtbladen past goed bij de vloer en alle benodigde apparatuur is ingebouwd: een inductie kookplaat, afzuigkap, vaatwasser, combi-oven/magnetron en een koelkast.
Eerste verdieping:
Er zijn drie slaapkamers op de eerste verdieping die, net als de badkamer, vanaf de overloop te bereiken zijn. Aan de achterzijde zijn twee slaapkamers en de derde, tevens grootste slaapkamer is aan de voorzijde. Op de vloer ligt laminaat en het merendeel van de muren is geschilderd in neutraal wit.
De badkamer, met een raam in de voorgevel, heeft geheel licht betegelde muren en een donkere tegelvloer. Een grote glazen wand bij de inloopdouche versterkt het ruimtegevoel en verder is de badkamer ingedeeld met een wandcloset, wastafelmeubel en een spiegelkast.
Tweede verdieping:
Deze woning heeft geen drie, maar vier slaapkamers. De slaapkamer op deze verdieping is tevens de grootste kamer in huis, met de mogelijkheid om deze te splitsen in twee kamers. Ook op deze verdieping ligt een mooie laminaatvloer en in de berging is de opstelling van de wasapparatuur.
Buiten:
De voortuin is heel onderhoudsvriendelijk ingericht met grindmatten, licht grind, enkele grote tuintegels en twee groenblijvende boompjes. Dankzij deze boompjes is er geen inkijk in huis.
Vanuit de woonkamer loop je de achtertuin in, die op het westen gesitueerd is. De achtertuin is geheel bestraat en aan twee kanten staan houten schuttingen, dus groene vingers zijn niet nodig. In de berging is plek voor de fietsen en via de poort loop je naar het parkeerterrein, waar een genummerde plek voor jouw auto is.
Bijzonderheden:
- Bouwjaar: 2011;
- Inhoud: 419 m³;
- Perceeloppervlakte: 99 m²;
- Woonoppervlakte: 119 m²;
- Overige inpandige ruimte: 0 m²;
- Gebouwgebonden buitenruimte: 0 m²;
- Externe bergruimte: 7 m²;
- Dak-, spouwmuur- en vloerisolatie;
- Rolluiken aan de achterzijde (alle verdiepingen);
- Mogelijkheid voor een uitbouw;
- Vaste parkeerplek op het achtergelegen terrein;
- Op 2 minuten lopen van winkelcentrum Schuytgraaf en 5 minuten van station Arnhem Zuid
- Energielabel A
Features
Transfer of ownership
- Last asking price
- € 449,000 kosten koper
- Asking price per m²
- € 3,773
- Status
- Sold
Construction
- Kind of house
- Single-family home, row house
- Building type
- Resale property
- Year of construction
- 2011
- Type of roof
- Flat roof covered with asphalt roofing
Surface areas and volume
- Areas
- Living area
- 119 m²
- External storage space
- 7 m²
- Plot size
- 1,509 m²
- Volume in cubic meters
- 419 m³
Layout
- Number of rooms
- 5 rooms (4 bedrooms)
- Number of bath rooms
- 1 bathroom and 1 separate toilet
- Bathroom facilities
- Walk-in shower, toilet, sink, and washstand
- Number of stories
- 3 stories
- Facilities
- Balanced ventilation system, optical fibre, passive ventilation system, rolldown shutters, TV via cable, and solar panels
Energy
- Energy label
- A
- Insulation
- Roof insulation, double glazing, energy efficient window, insulated walls, floor insulation and completely insulated
- Heating
- District heating
- Hot water
- District heating
Cadastral data
- ARNHEM AF 2954
- Cadastral map
- Area
- 99 m²
- Ownership situation
- Full ownership
- ARNHEM AF 2958
- Cadastral map
- Area
- 1,410 m² (part of parcel)
- Ownership situation
- Held in common ownership
Exterior space
- Location
- Alongside park, alongside a quiet road and in residential district
- Garden
- Back garden and front garden
- Back garden
- 40 m² (8.00 metre deep and 5.00 metre wide)
- Garden location
- Located at the west with rear access
Storage space
- Shed / storage
- Detached wooden storage
- Facilities
- Electricity
Garage
- Type of garage
- Parking place
Parking
- Type of parking facilities
- Parking on private property and public parking
Photos 49
© 2001-2025 funda
















































