This house on Funda: https://www.funda.nl/en/detail/koop/beneden-leeuwen/huis-boekweitveld-11/43076796/

Description
Deze uitgebouwde hoekwoning, gelegen in de geliefde jonge en gemêleerde woonwijk 'het Leeuwse veld' met faciliteiten voor iedereen vlak om de hoek, is perfect voor opgroeiende gezinnen of mensen met veel hobby's.
Ben jij klaar om te verhuizen zonder gedoe?
WONEN
Stap binnen in deze prachtige woning en voel je direct thuis. Met een woonoppervlak van 160m² heb je alle ruimte die je nodig hebt om comfortabel te leven. De instapklare woning is tot in de puntjes afgewerkt, waardoor je direct kunt genieten zonder dat je nog iets hoeft te doen.
Doordat de garage vanaf de bouw direct bij de woning betrokken is, heb je naast een zeer ruime woonkamer nog een extra kamer op de begane grond. Ideaal als speelkamer of creëer je eigen werkkamer waar je in alle rust kunt werken.
Natuurlijk valt over smaak te twisten, maar wie wordt niet blij van de grote raampartijen, tuingerichte woonkamer met openslaande deuren, stijlvolle open keuken en een praktische tegelvloer die voorzien is van vloerverwarming.
Koken
Koken doe je in de stijlvolle open keuken, uitgevoerd in een warme kleurstelling en voorzien van moderne inbouwapparatuur. Een gezellige bar maakt het helemaal af: terwijl jij kookt, kunnen familie of vrienden heerlijk aanschuiven voor een drankje en een praatje. Een echte eyecatcher is de prachtige kastenwand, waarin de grote Amerikaanse koelkast fraai is geïntegreerd — ideaal voor wie houdt van lekker koken én gezellig samen zijn.
Slapen en baden
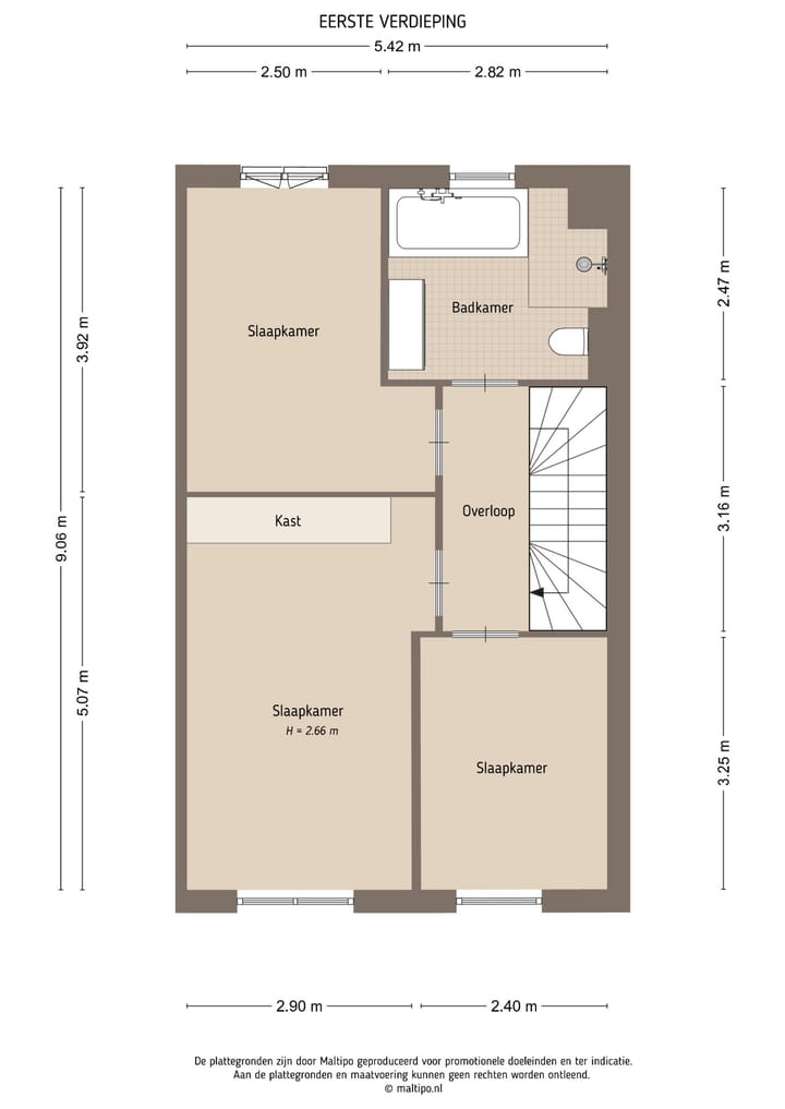
Op de eerste verdieping begint het ontspannen leven pas echt. Hier wachten drie fijne slaapkamers op je, allemaal heerlijk licht dankzij de grote ramen. De masterbedroom is extra luxe: hier geniet je niet alleen van de ruimte, maar ook van een eigen airco. Ideaal voor warme zomernachten — comfortabel slapen is hier gegarandeerd!
De andere kamers zijn perfect in te richten als kinderkamer, werkkamer of walk-in closet. Net waar jouw leven om vraagt.
De badkamer voelt aan als je eigen kleine wellnessruimte. Je vindt hier een ruime inloopdouche, een stijlvol wastafelmeubel én een heerlijk ligbad voor de ultieme ontspanning.
Opvallend zijn de trendy hexagon tegeltjes op de achterwand van de douche en het toilet, die de ruimte nét dat beetje extra karakter geven. Dankzij het tweede toilet op de badkamer is ook de ochtendspits voortaan geen enkel probleem.
De tweede verdieping bestaat uit een prachtige royale ruimte waarmee je nog alle kanten op kunt. Kies je voor de ideale thuiswerkplek of een extra (slaap)kamer? Of deel je de ruimte in tweeën en ga je voor beide? Bij deze woning kan het allemaal!
Buitenleven
Doordat het huis een hoekligging heeft, geniet je van extra veel tuin. Het begint al aan de voorzijde, je hebt een ruime inrit die niet alleen plek voor je auto biedt, maar ook toegang geeft tot de achtertuin.
De achtertuin ligt op het noorden, maar dankzij de diepe ruimte en de open indeling kun je de hele dag door genieten van het zonnetje — zonder dat je constant achter de schaduw aan hoeft te rennen.
De tuin is strak en stijlvol aangelegd met donkere tegels en een groot stuk kunstgras. Het onderhoud is minimaal, waardoor je meer tijd hebt om te ontspannen en te genieten! Maar het echte juweeltje van deze buitenruimte is de schitterende veranda met schuifpui, die je volledig met de tuin verbindt.
Fraai afgewerkt en omgetoverd tot een gezellige tweede woonkamer, die uitnodigt om extra lang van het buitenleven te genieten.
Of je nu een rustige middag doorbrengt met je gezin of een gezellige borrelavond hebt met vrienden, hier is het altijd goed vertoeven.
En met een aansluitende berging is er altijd voldoende ruimte voor tuinaccessoires, fietsen of andere spullen.
Het Land van Maas en Waal
Het gezellige Beneden-Leeuwen behoort tot de gemeente West Maas en Waal. Het dorp ligt binnen de stedenvierhoek ARNHEM – NIJMEGEN – ’S-HERTOGENBOSCH - UTRECHT en wordt omringd door natuur. Je kunt hier langs de rivier of door de polders en bossen eindeloos wandelen en fietsen. Daarnaast ligt het waterrecreatiegebied De Gouden Ham met zijn jachthavens op een steenworp afstand. Genoeg kwaliteiten om je elke dag heerlijk vrij te voelen en te genieten!
Beneden-Leeuwen heeft een hoog voorzieningenniveau. Er zijn twee basisscholen en een school voor voortgezet onderwijs. Het dorp heeft tevens zijn een eigen bibliotheek. Ook voor allerlei sportactiviteiten en een bloeiend verenigingsleven hoef je het dorp niet uit. In het centrum bevinden zich veel winkels waaronder drie grote supermarkten.
Features
Transfer of ownership
- Last asking price
- € 539,000 kosten koper
- Asking price per m²
- € 3,369
- Status
- Sold
Construction
- Kind of house
- Single-family home, corner house
- Building type
- Resale property
- Year of construction
- 2020
- Specific
- Partly furnished with carpets and curtains
- Type of roof
- Gable roof covered with roof tiles
- Quality marks
- Energie Prestatie Advies
Surface areas and volume
- Areas
- Living area
- 160 m²
- External storage space
- 20 m²
- Plot size
- 278 m²
- Volume in cubic meters
- 586 m³
Layout
- Number of rooms
- 6 rooms (4 bedrooms)
- Number of bath rooms
- 1 bathroom and 1 separate toilet
- Bathroom facilities
- Double sink, walk-in shower, bath, and toilet
- Number of stories
- 3 stories
- Facilities
- Air conditioning, skylight, french balcony, optical fibre, mechanical ventilation, rolldown shutters, and solar panels
Energy
- Energy label
- A
- Insulation
- Roof insulation, double glazing, insulated walls, floor insulation and completely insulated
- Heating
- CH boiler and partial floor heating
- Hot water
- CH boiler
- CH boiler
- Intergas (gas-fired combination boiler from 2020, in ownership)
Cadastral data
- WAMEL N 1210
- Cadastral map
- Area
- 278 m²
- Ownership situation
- Full ownership
Exterior space
- Balcony/roof garden
- French balcony present
- Location
- Alongside a quiet road and in residential district
- Garden
- Back garden and front garden
- Back garden
- 84 m² (8.40 metre deep and 10.00 metre wide)
- Garden location
- Located at the north with rear access
Storage space
- Shed / storage
- Detached wooden storage
- Facilities
- Electricity
- Insulation
- No insulation
Parking
- Type of parking facilities
- Parking on private property and public parking
Photos 49
© 2001-2025 funda
















































