This house on Funda: https://www.funda.nl/en/detail/koop/beneden-leeuwen/huis-boekweitveld-13/43815334/

Description
Levensgenieters opgelet: luxe, strak en groots wonen in een geliefde jonge en gemêleerde woonwijk met faciliteiten voor iedereen vlak om de hoek
Dit uitgebouwde familiehuis heeft een zeer hoogwaardige afwerking en is met een smaakvolle keuken, luxe badkamer en een gestuukt plafond helemaal up to date.
Je verhuisdozen uitpakken en genieten is het enige wat je hoeft te doen.
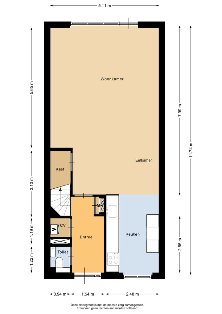
Wonen
Op deze uitgebouwde woning valt niets aan te merken. Dit huis verkeert in uitmuntende staat en biedt een fantastische woonervaring. De drie verdiepingen zijn licht en sfeervol. Er is ruimte voor vijf slaapkamers.
In de ruime woonkamer is het lekker licht door de grote ramen en openslaande deur naar de tuin. En dat is niet alles. Met vloerverwarming is het huis comfortabel en dankzij de zonnepanelen is dit huis ook vriendelijk voor je portemonnee. Dat houd je energierekening lekker laag.
De gehele begane grond is voorzien van een strakke vloer, inclusief vloerverwarming.
Koken
De open keuken is even smaakvol en modern als de rest van het huis. De keuken is voorzien van vrijwel alle gemakken inclusief uiteraard een inductiekookplaat. Terwijl je aan het koken bent kijk je fijn de voortuin en de kindvriendelijke straat in. Houd je van gezellig kletsen tijdens het koken? Dan is deze keuken ideaal, want dankzij het open karakter klets je gezellig met gasten aan de eettafel.
Slapen en baden
De eerste verdieping herbergt een ruime overloop die toegang biedt tot drie slaapkamers. De luxueuze badkamer is voorzien van alle gemakken, inclusief inloopdouche, tweede toilet en een stijlvol extra breed meubel met dubbele wastafel. Zo kun je hier de dag fris en fruitig starten.
In de master bedroom past niet alleen makkelijk een kingsize bed, maar ook een enorme kledingkast.
En dat is nog niet alles...
De tweede verdieping is even ruim, plek genoeg voor een vierde (grote) slaapkamer of zelfs een vijfde slaapkamer. Tevens vind je hier de witgoedaansluitingen en volop plek om je spullen op te bergen.
Buitenleven
Heb je altijd al een onderhoudsvriendelijke tuin gewild, omdat je absoluut geen groene vingers hebt? Dan is dit jouw droomtuin, want deze is vrijwel volledig betegeld of voorzien van een gazon. Gelukkig zijn er ook wat borders, zo is er plek voor vrolijke planten en bloemen. Er is hier verder een berging en dankzij de achterom kun je hier de fietsen parkeren.
Dit is bij uitstek een huis voor levensgenieters! Wij nodigen je van harte uit om deze woning persoonlijk te komen bewonderen.
HET LAND VAN MAAS EN WAAL
Het dorp Beneden-Leeuwen behoort tot de gemeente West Maas en Waal dat ligt binnen de stedenvierhoek ARNHEM – NIJMEGEN – ’S-HERTOGENBOSCH - UTRECHT en wordt omringd door natuur. Je kunt er eindeloos wandelen en fietsen, langs de rivier of door polders en bossen. Tevens ligt het waterrecreatiegebied De Gouden Ham met jachthavens binnen de gemeente. Wat een kwaliteiten om je elke dag heerlijk vrij te voelen en te genieten!
Beneden-Leeuwen heeft een hoog voorzieningenniveau. Er zijn twee basisscholen en het Pax Christi Junior College voor voortgezet onderwijs. Het dorp heeft een eigen bibliotheek. Ook voor allerlei sportactiviteiten hoef je het dorp niet uit en er is een bloeiend verenigingsleven. Er zijn veel winkels waaronder 3 grote supermarkten waar je terecht kunt voor alle dagelijkse boodschappen.
Deze informatie is door ons met de nodige zorgvuldigheid samengesteld. Onzerzijds wordt echter geen enkele aansprakelijkheid aanvaard voor enige onvolledigheid, onjuistheid of anderszins, dan wel de gevolgen daarvan. Alle opgegeven maten en oppervlakten zijn indicatief.
Features
Transfer of ownership
- Last asking price
- € 420,000 kosten koper
- Asking price per m²
- € 3,111
- Status
- Sold
Construction
- Kind of house
- Single-family home, row house
- Building type
- Resale property
- Year of construction
- 2020
- Specific
- Partly furnished with carpets and curtains
- Type of roof
- Gable roof covered with roof tiles
- Quality marks
- Energie Prestatie Advies
Surface areas and volume
- Areas
- Living area
- 135 m²
- External storage space
- 8 m²
- Plot size
- 135 m²
- Volume in cubic meters
- 511 m³
Layout
- Number of rooms
- 5 rooms (4 bedrooms)
- Number of bath rooms
- 1 bathroom and 1 separate toilet
- Bathroom facilities
- Shower, double sink, and toilet
- Number of stories
- 3 stories
- Facilities
- Balanced ventilation system, skylight, optical fibre, passive ventilation system, and solar panels
Energy
- Energy label
- A
- Insulation
- Roof insulation, double glazing, insulated walls, floor insulation and completely insulated
- Heating
- CH boiler and partial floor heating
- Hot water
- CH boiler
- CH boiler
- Intergas (gas-fired combination boiler from 2020, in ownership)
Cadastral data
- WAMEL N 1211
- Cadastral map
- Area
- 135 m²
- Ownership situation
- Full ownership
Exterior space
- Location
- Alongside a quiet road and in residential district
- Garden
- Back garden and front garden
- Back garden
- 52 m² (9.90 metre deep and 5.30 metre wide)
- Garden location
- Located at the north with rear access
Storage space
- Shed / storage
- Detached wooden storage
- Insulation
- No insulation
Parking
- Type of parking facilities
- Public parking
Photos 51
© 2001-2025 funda


















































