This house on Funda: https://www.funda.nl/en/detail/koop/bergen-li/huis-schilderslaan-94/43006511/

Description
Aan de rustige en groene Schilderslaan in Bergen staat deze verzorgde twee-onder-een-kapwoning met alles wat je zoekt: ruimte, comfort en een open, moderne sfeer.
De woning is degelijk en strak afgewerkt, keurig onderhouden. Binnen vind je een lichte woonkamer die overgaat in de moderne keuken en aangebouwde serre, Boven vind je twee slaapkamers, een moderne badkamer met inloopdouche en middels vaste trap te bereiken multifunctionele zolderverdieping.
Achter de woning geniet je van een zonnige, onderhoudsvriendelijke tuin op het westen met vrije achterom. Voor de vrijstaande stenen garage ligt een oprit met nieuwe carport (2025).
De ligging is ideaal: een brede straat met weinig verkeer, in een nette woonwijk waar het heerlijk wonen is. Op loopafstand vind je basisscholen, sportverenigingen en winkelvoorzieningen. Daarnaast sta je binnen no time in de uitgestrekte natuur van Nationaal park de Maasduinen. Ook auto(snel)wegen richting Venray, Nijmegen en Duitsland zijn goed bereikbaar, waardoor je rustig woont zonder afgelegen te zitten.
Een complete, instapklare woning op een mooie plek in Limburg – klaar voor een nieuwe stap.
bouwjaar: 1990,
perceel: 201 m²,
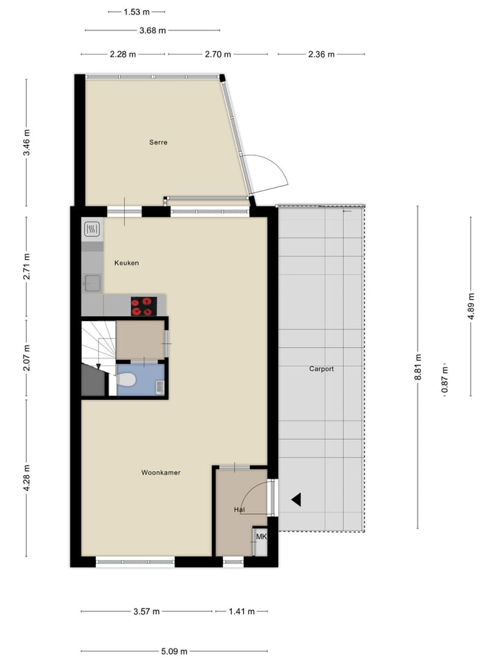
woonoppervlakte: ca. 111 m²,
gebouwgebonden buitenruimte: ca. 23 m²,
overig inpandige ruimte: ca. 6 m²,
externe bergruimte: ca. 23 m²,
inhoud: ca. 383 m³.
Download de brochure voor meer informatie!
Features
Transfer of ownership
- Last asking price
- € 365,000 kosten koper
- Asking price per m²
- € 3,288
- Status
- Sold
Construction
- Kind of house
- Single-family home, double house
- Building type
- Resale property
- Year of construction
- 1990
- Type of roof
- Gable roof covered with roof tiles
Surface areas and volume
- Areas
- Living area
- 111 m²
- Other space inside the building
- 6 m²
- Exterior space attached to the building
- 23 m²
- External storage space
- 23 m²
- Plot size
- 201 m²
- Volume in cubic meters
- 383 m³
Layout
- Number of rooms
- 4 rooms (3 bedrooms)
- Number of bath rooms
- 1 bathroom and 1 separate toilet
- Bathroom facilities
- Shower, toilet, and washstand
- Number of stories
- 3 stories
- Facilities
- Air conditioning, outdoor awning, mechanical ventilation, rolldown shutters, and solar panels
Energy
- Energy label
- A
- Insulation
- Roof insulation, energy efficient window, insulated walls and floor insulation
- Heating
- CH boiler
- Hot water
- CH boiler
- CH boiler
- Nefit Trendline II HRC 30 (gas-fired combination boiler from 2016, in ownership)
Cadastral data
- BERGEN LIMBURG D 6196
- Cadastral map
- Area
- 201 m²
- Ownership situation
- Full ownership
Exterior space
- Location
- Alongside a quiet road and in residential district
- Garden
- Back garden and front garden
- Back garden
- 34 m² (8.50 metre deep and 4.00 metre wide)
- Garden location
- Located at the west with rear access
Garage
- Type of garage
- Detached brick garage
- Capacity
- 1 car
- Facilities
- Electrical door, loft, electricity, heating and running water
- Insulation
- Roof insulation
Parking
- Type of parking facilities
- Parking on private property and public parking
Photos 41
© 2001-2025 funda








































