This house on Funda: https://www.funda.nl/en/detail/koop/bodegraven/huis-populierenhof-66/89616701/

Description
Tussenwoning met veel potentie op een groene locatie!
Stel je voor: een lichte woonkamer met uitzicht over het park, een zonnige tuin op het zuidoosten om in te ontspannen, en vier slaapkamers die volop mogelijkheden bieden. Deze tussenwoning uit 1970 wacht op een nieuwe eigenaar die er zijn of haar eigen stijl in kan aanbrengen. Met een opfrisbeurt en modernisering kun je van deze woning een warm en sfeervol thuis maken, op een plek waar scholen, speelzones en groen letterlijk om de hoek liggen.
Alle pluspunten op een rijtje:
• Bouwjaar: 1970
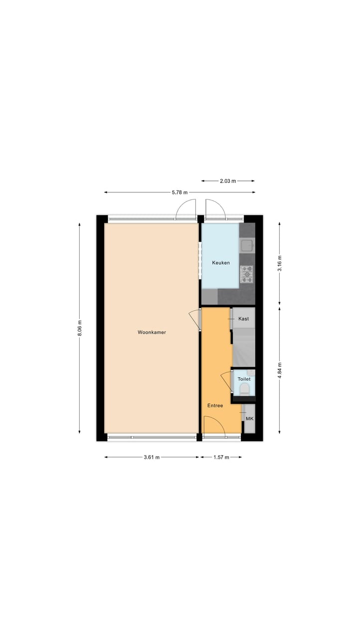
• Woonoppervlakte: 116 m²
• Perceeloppervlakte: 126 m²
• Gezellige woonkamer: veel lichtinval en een prachtig uitzicht over de groenzone en het park aan de voorkant. Ideaal om vanuit je favoriete bank te genieten van rust en natuur
• Halfopen keuken: netjes onderhouden en functioneel ingericht
• Drie slaapkamers op de eerste verdieping: allemaal voorzien van rolluiken. Eén slaapkamer beschikt over handige vaste kasten voor extra opbergruimte
• Eenvoudige badkamer
• Vierde slaapkamer op zolder: voorzien van een dakkapel aan de achterzijde en veel bergruimte achter de knieschotten. Perfect als extra slaapkamer, werkkamer of hobbyruimte
• Diepe voortuin: grenst aan een groene strook, voor extra rust en privacy
• Zonnige achtertuin op het zuidoosten: achterom bereikbaar en voorzien van een vrijstaande stenen berging met aangrenzende overkapping – ideaal voor het stallen van fietsen
• Uitstekende locatie: groen voor de deur, speelzone en skatepark in de buurt, en drie scholen op loopafstand
Omgeving.
De woning ligt in de Dronenwijk en deze is goed bereikbaar via de Goudseweg. Via deze straat zijn de A12 en de N11 binnen enkele autominuten bereikbaar. Het station van Bodegraven ligt op wandelafstand. Vanuit hier ben je met de trein in ca. 20 minuten in Leiden of in Utrecht. De Dronenwijk is een kindvriendelijke wijk. Voorzieningen als scholen en sportverenigingen bevinden zich op wandelafstand. Het centrum van Bodegraven, met gezellige winkels en restaurants is gemakkelijk bereikbaar met de fiets.
Kijken?
Maak een afspraak om deze mooie woning in het echt te bewonderen. Dit kan door te reageren via de woning op Funda, we nemen dan contact met je op om een afspraak in te plannen. We sturen je dan ook meer informatie over deze woning toe, zodat jij je goed kan voorbereiden op de bezichtiging en gerichte vragen kunt stellen.
Deze informatie is door ons met de nodige zorgvuldigheid samengesteld. Er wordt echter geen enkele aansprakelijkheid aanvaard voor enige onvolledigheid, onjuistheid of anderszins, dan wel de gevolgen daarvan. Alle opgegeven maten en oppervlakten zijn indicatief.
Features
Transfer of ownership
- Listed since
- Acceptance
- Available in consultation
- Asking price
- € 415,000 kosten koper
- Asking price per m²
- € 3,578
- Status
- Sold under reservation
Construction
- Kind of house
- Single-family home, row house
- Building type
- Resale property
- Year of construction
- 1970
- Specific
- With carpets and curtains
- Type of roof
- Gable roof covered with roof tiles
Surface areas and volume
- Areas
- Living area
- 116 m²
- External storage space
- 10 m²
- Plot size
- 126 m²
- Volume in cubic meters
- 393 m³
Layout
- Number of rooms
- 5 rooms (4 bedrooms)
- Number of stories
- 3 stories
- Facilities
- Outdoor awning, skylight, optical fibre, passive ventilation system, and rolldown shutters
Energy
- Energy label
- Insulation
- Mostly double glazed and insulated walls
- Heating
- CH boiler
- Hot water
- CH boiler
- CH boiler
- Intergas (gas-fired combination boiler from 2006, in ownership)
Cadastral data
- BODEGRAVEN C 6041
- Cadastral map
- Area
- 126 m²
- Ownership situation
- Full ownership
Exterior space
- Location
- In residential district
- Garden
- Back garden and front garden
Storage space
- Shed / storage
- Detached brick storage
- Facilities
- Electricity
Parking
- Type of parking facilities
- Public parking
Photos 43
© 2001-2026 funda










































