This house on Funda: https://www.funda.nl/en/detail/koop/de-meern/huis-evenaar-171/43225769/

Description
In de kindvriendelijke en populaire wijk 't Weer ligt deze keurige tussenwoning met vier slaapkamers, een ruime woonkamer, moderne keuken en badkamer, plus een zonnige voor- en achtertuin met berging en achterom. Dankzij de dakkapellen (2023) voor én achter en de gunstige oriëntatie geniet je de hele dag door van veel licht.
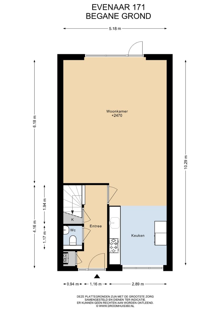
Via de voortuin op het zuiden, ideaal voor een gezellig zitje, bereik je de entree. In de hal tref je het toilet, praktische bergruimte en de trap naar boven. De lichte keuken ligt aan de voorzijde en is voorzien van alle gewenste inbouwapparatuur, met een groot raam voor veel daglicht. De uitgebouwde woonkamer biedt een ruime zithoek én een apart eetgedeelte. De grote raampartij aan de achterzijde en de deur naar de tuin maken deze leefruimte extra prettig en verbonden met buiten.
Op de eerste verdieping bevinden zich drie slaapkamers en de moderne badkamer (verbouwd in 2020). De slaapkamer aan de voorzijde beschikt over elektrische screens. Aan de achterzijde bevinden zich twee slaapkamers, waaronder de hoofdslaapkamer, beide uitgevoerd met een dakkapel, wat zorgt voor extra ruimte en licht. De badkamer is voorzien van een inloopdouche, tweede toilet, wastafelmeubel, een raam voor daglicht en ventilatie en vloerverwarming.
Via de vaste trap bereik je de tweede verdieping. Hier vind je een ruime slaapkamer met dakkapel (2023) voorzien van kunststof kozijnen en elektrische rolluiken, nette weggewerkte opbergruimtes, aansluitingen voor wasmachine en droger, de stookruimte, een dakraam en extra bergruimte.
De achtertuin is goed onderhouden, sfeervol aangelegd en voorzien van een onderhoudsvrije groenstrook. Er is volop ruimte voor een gezellige zithoek, een vrijstaande houten berging en achterom.
De ligging is ideaal: in de groene en kindvriendelijke wijk 't Weer met speeltuin in de buurt en vrij uitzicht aan de voorzijde. Het Máximapark ligt om de hoek – perfect voor wandelen, fietsen of sporten. Scholen, sportclubs, winkelcentrum Mereveldplein en Vleuterweide zijn binnen handbereik. Het moderne Leidsche Rijn Centrum en het bruisende centrum van Utrecht bereik je eenvoudig met fiets, bus of trein (meerdere stations nabij). De uitvalswegen (A2/A12) liggen vlakbij voor snelle verbindingen naar de Randstad.
Bijzonderheden:
- Tussenwoning met 108 m² woonoppervlak;
- Vier slaapkamers;
- Energielabel A;
- Moderne badkamer (verbouwd 2020);
- Dakkapellen voor én achter (2023);
- Vrijstaande houten berging met achterom;
- Gelegen in de geliefde wijk 't Weer, op korte afstand van Máximapark;
- Speeltuin in de buurt en vrij uitzicht aan de voorzijde;
- Uitstekende bereikbaarheid naar Utrecht en uitvalswegen;
Interesse in deze woning? Neem je eigen NVM-aankoopmakelaar mee!
Features
Transfer of ownership
- Listed since
- Acceptance
- Available in consultation
- Asking price
- € 529,000 kosten koper
- Asking price per m²
- € 4,898
- Status
- Available
Construction
- Kind of house
- Single-family home, row house
- Building type
- Resale property
- Year of construction
- 1992
- Specific
- Partly furnished with carpets and curtains
- Type of roof
- Gable roof covered with roof tiles
Surface areas and volume
- Areas
- Living area
- 108 m²
- External storage space
- 6 m²
- Plot size
- 130 m²
- Volume in cubic meters
- 370 m³
Layout
- Number of rooms
- 5 rooms (4 bedrooms)
- Number of bath rooms
- 1 bathroom and 1 separate toilet
- Bathroom facilities
- Shower, double sink, walk-in shower, toilet, underfloor heating, and washstand
- Number of stories
- 3 stories
- Facilities
- Skylight, mechanical ventilation, passive ventilation system, rolldown shutters, and TV via cable
Energy
- Energy label
- Insulation
- Roof insulation, double glazing, insulated walls, floor insulation and completely insulated
- Heating
- CH boiler and partial floor heating
- Hot water
- CH boiler
- CH boiler
- Intergas Kombi Kompact HR28 (gas-fired combination boiler from 2014, in ownership)
Cadastral data
- VLEUTEN F 3493
- Cadastral map
- Area
- 130 m²
- Ownership situation
- Full ownership
Exterior space
- Location
- In residential district
- Garden
- Back garden and front garden
- Back garden
- 42 m² (7.71 metre deep and 5.51 metre wide)
- Garden location
- Located at the north with rear access
Storage space
- Shed / storage
- Detached wooden storage
- Facilities
- Electricity
- Insulation
- No insulation
Parking
- Type of parking facilities
- Public parking
Photos 42
© 2001-2026 funda









































