This house on Funda: https://www.funda.nl/en/detail/koop/delfzijl/appartement-waterstraat-26/43199645/

Waterstraat 269934 AV DelfzijlCentrum-Delfzijl
€ 250,000 k.k.
Eye-catcherRoyale maisonette met 3 slaapkamers, dakterras en tuin!
Description
Midden in het centrum van Delfzijl bevindt zich deze ruim opgezette bovenwoning, type maisonette. Het betreft een sfeervol appartement met een uiterst royale woonkamer en 3 slaapkamers op de tweede verdieping. Aan de achterzijde bevindt zich een royaal dakterras, gesitueerd op het zuidoosten. Wat het geheel uniek maakt, is het feit dat er zich aan de achterzijde op de begane grond een tuin bevindt met een stenen berging. Daarbij zijn alle voorzieningen van Delfzijl op loopafstand te bereiken waaronder supermarkten, een gevarieerd winkelaanbod, meerdere restaurants en terrassen.
De afgelopen jaren heeft Delfzijl een metamorfose ondergaan die nog steeds in uitvoering is. Onderdeel hiervan is de herstructurering van het stadscentrum geweest. Overigens, ten dele nog steeds in volle gang. Het winkelcentrum is compacter en gezelliger gemaakt, iets wat dagelijks merkbaar is. Ook het NS-station en het vergrote zeestrand met -dijk zijn binnen een minuut of vijf te voet te bereiken.
Indeling:
Begane grond:
Entree/trapopgang met meterkast.
Eerste verdieping:
Overloop met aangrenzend woonkamer (ca. 24 m²) met elektrische haard, middels suitedeuren te bereiken eetkamer (ca. 30 m²) en keuken (ca. 6,5 m²; met hoekopstelling voorzien van koel-/vriescombinatie, oven, 5-pits gaskookplaat, afzuigkap, vaatwasser en toegang naar het dakterras (ca. 23 m²). Tevens vanuit de hal te bereiken toilet, badkamer (ca. 5 m²; met ligbad, douche en wastafelmeubel) en opgang naar de tweede verdieping.
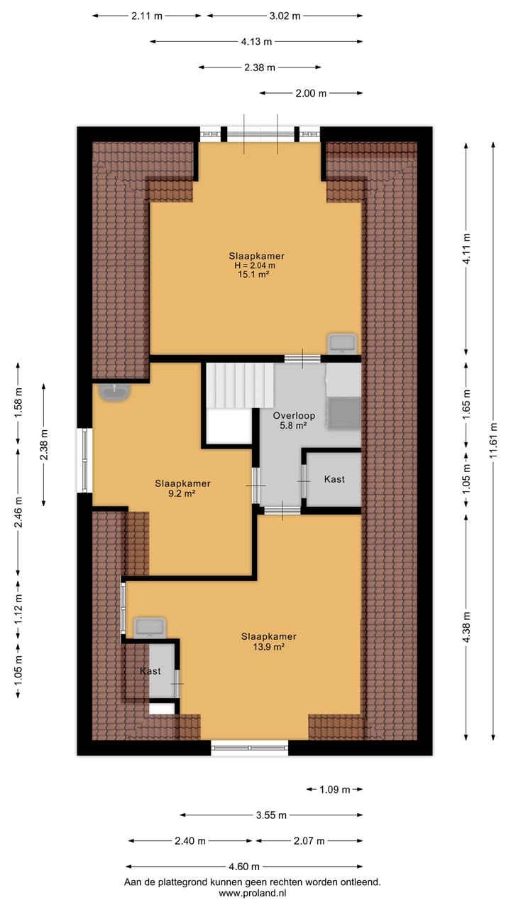
Tweede verdieping:
Middels vaste trap te bereiken overloop met witgoedaansluitingen, kastruimte en aangrenzend slaapkamer (ca. 15 m²), slaapkamer (ca. 9 m²) en slaapkamer (ca. 14 m²).
Buiten:
- Dakterras (ca. 23 m²);
- Bergruimte (ca. 13,5 m²);
- Besloten tuin (ca. 65 m²).
Extra informatie:
- Verwarming en warmwatervoorziening middels cv-combiketel Nefit Proline NXT CW4, bouwjaar 2024, eigendom;
- Voorzien van kunststof kozijnen met HR++ beglazing;
- Geen actieve V.V.E. Bijdrage opstalverzekering €25,89 per maand.
Features
Transfer of ownership
- Listed since
- Acceptance
- Available in consultation
- Asking price
- € 250,000 kosten koper
- Asking price per m²
- € 1,880
- Status
- Available
- VVE (Owners Association) contribution
- € 25.89 per month
Construction
- Type apartment
- Maisonnette (apartment)
- Building type
- Resale property
- Year of construction
- 1971
- Specific
- Partly furnished with carpets and curtains
- Type of roof
- Hipped roof covered with roof tiles
Surface areas and volume
- Areas
- Living area
- 133 m²
- Other space inside the building
- 3 m²
- Exterior space attached to the building
- 23 m²
- External storage space
- 14 m²
- Volume in cubic meters
- 496 m³
Layout
- Number of rooms
- 6 rooms (3 bedrooms)
- Number of bath rooms
- 1 bathroom and 1 separate toilet
- Bathroom facilities
- Shower, bath, sink, and washstand
- Number of stories
- 2 stories
- Facilities
- Passive ventilation system and TV via cable
- Located at
- 1st floor
Energy
- Energy label
- D
- Insulation
- Energy efficient window and insulated walls
- Heating
- CH boiler
- Hot water
- CH boiler
- CH boiler
- Nefit Proline NXT CW4 (gas-fired combination boiler from 2024, in ownership)
Cadastral data
- DELFZIJL C 3780
- Cadastral map
- Ownership situation
- Full ownership
Exterior space
- Location
- In centre
- Garden
- Back garden
- Back garden
- 63 m² (9.00 metre deep and 7.00 metre wide)
- Garden location
- Located at the southeast with rear access
- Balcony/roof terrace
- Roof terrace present
Storage space
- Shed / storage
- Detached brick storage
Parking
- Type of parking facilities
- Resident's parking permits
VVE (Owners Association) checklist
- Registration with KvK
- Yes
- Annual meeting
- No
- Periodic contribution
- No
- Reserve fund present
- No
- Maintenance plan
- No
- Building insurance
- Yes
Photos 53
Floorplans 4
© 2001-2025 funda
























































