This house on Funda: https://www.funda.nl/en/detail/koop/den-haag/appartement-emmastraat-65/43252072/

Emmastraat 652595 EH Den HaagBezuidenhout-Midden
€ 750,000 k.k.
Description
Emmastraat 65, The Hague
Stylish living in the heart of Bezuidenhout, characteristic mansion with authentic details.
This characteristic mansion exudes history and comfort, with a beautiful combination of authentic ornaments and modern finishes. Located in the quiet, attractive Emmastraat, in the middle of the always bustling Bezuidenhout, you will experience the best of both worlds here: living in peace, but with all city conveniences within reach.
Authentic character & modern comfort
This beautiful double upstairs apartment has recently been renovated, with the original details lovingly preserved. High ceilings, decorative moldings and the stylish white marble fireplaces give every room a unique look. The imposing bay window at the front not only provides a sea of natural light, but is also a real eye-catcher. You will feel right at home here!
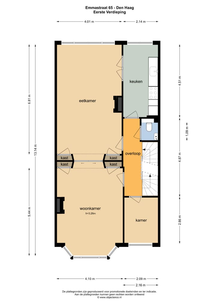
Layout
Enter through the spacious, bright entrance with chic marble floor. On the first floor you will find a luxuriously finished toilet and the spacious living and dining room en-suite. This space invites you to cozy evenings, with the marble fireplaces and the warm gas fireplaces as the atmospheric centerpiece.
The modern, semi-open kitchen is fully equipped and equipped with high-quality appliances, including a generous gas stove, large oven, dishwasher and a spacious fridge with freezer compartment. Thanks to the beautiful tiling and the sliding glass doors, cooking here is a real pleasure.
In addition, the house has a practical study at the front - ideal as a home office, hobby room or guest room.
On the second floor there are four well-sized bedrooms, as well as a luxurious bathroom with a spacious bath, walk-in shower and double sink. Through the landing or one of the bedrooms you have access to the sunny balcony on the southwest: here you can enjoy long evenings in the sun, a delicious cup of coffee or a good glass of wine.
Details
- Characteristic mansion full of authentic details and ornaments
- Sunny outdoor terrace/balcony on the southwest – fully enjoy the afternoon and evening sun
- Located in the popular, lively Bezuidenhout near the Theresiastraat, restaurants, cafes and shops
- Centrally located: close to Central Station, roads and the bustling city center
- Four spacious bedrooms – ideal for families or home workers
- En-suite living and dining room with attractive marble fireplaces
- Energy label D
- Actieve VvE, payment € 197 per month
- Age, non-occupancy and materials clause applicable
- Delivery in consultation
The measurement instruction is based on BBMI (Branchebrede Meetinstructie) and is intended to provide a standardized method for measuring and indicating usable floor area. However, differences in measurements may occur due to variations in interpretation, rounding, or practical limitations during measurement.
This information has been compiled by us with the necessary care. However, we do not accept any liability for any incompleteness, inaccuracy or otherwise, or the consequences thereof.
Features
Transfer of ownership
- Listed since
- Acceptance
- Available in consultation
- Asking price
- € 750,000 kosten koper
- Asking price per m²
- € 4,777
- Status
- Available
- VVE (Owners Association) contribution
- € 197.02 per month
Construction
- Type apartment
- Upstairs apartment (double upstairs apartment)
- Building type
- Resale property
- Year of construction
- 1906
- Type of roof
- Flat roof covered with asphalt roofing
- Quality marks
- Energie Prestatie Advies
Surface areas and volume
- Areas
- Living area
- 157 m²
- Other space inside the building
- 4 m²
- Exterior space attached to the building
- 8 m²
- Volume in cubic meters
- 588 m³
Layout
- Number of rooms
- 6 rooms (4 bedrooms)
- Number of bath rooms
- 1 bathroom and 2 separate toilets
- Bathroom facilities
- Shower, double sink, and bath
- Number of stories
- 2 stories
- Located at
- 2nd floor
Energy
- Energy label
- Not available
- Insulation
- Double glazing
- Heating
- CH boiler
- Hot water
- CH boiler
- CH boiler
- Gas-fired combination boiler
Cadastral data
- DEN HAAG R 13775
- Cadastral map
- Ownership situation
- Ownership encumbered with long-term leaset
- Fees
- Bought off for eternity
Exterior space
- Location
- On the edge of a forest and alongside a quiet road
- Balcony/roof terrace
- Balcony present
Parking
- Type of parking facilities
- Paid parking, public parking and resident's parking permits
VVE (Owners Association) checklist
- Registration with KvK
- Yes
- Annual meeting
- Yes
- Periodic contribution
- Yes (€ 197.02 per month)
- Reserve fund present
- Yes
- Maintenance plan
- Yes
- Building insurance
- Yes
Photos 55
Floorplans 3
© 2001-2025 funda

























































