This house on Funda: https://www.funda.nl/en/detail/koop/deventer/huis-bergstraat-15/43052718/

Bergstraat 157411 ER DeventerBergkwartier
€ 995,000 k.k.
Eye-catcherWonen in hartje Deventer, in een monumentaal herenhuis met lift?
Description
WONEN IN HET BERGKWARTIER, HARTJE DEVENTER, IN EEN MONUMENTAAL HERENHUIS MET LIFT !
Dit prachtige, goed onderhouden, herenhuis, gelegen in het hart van Deventer,, is een lust voor het oog. Dit sfeervolle pand, vol karakter en allure, ligt aan de Bergstraat (het meest gefotografeerde straatje van Deventer) en biedt een unieke combinatie van historisch charisma en modern comfort. Gebouwd in 1820 en met een riant woonoppervlakte van 217m2, is dit pand een juweel in ons aanbod. Opvallende bijzonderheid is de lift waardoor het wonen in dit grote huis met vier woonlagen als gelijkvloers wonen voelt. Het heeft vier slaapkamers en negen kamers in totaal, waardoor het ideaal is voor gezinnen of stellen die van ruimte houden.
Het huis ligt midden in het stadscentrum van Deventer, op loopafstand van winkels, scholen en sportscholen. Wandelliefhebbers kunnen genieten van de nabijgelegen IJssel en het Singelplantsoen. Voor uw dagelijkse boodschappen zijn er verschillende supermarkten in de buurt.
Kenmerken van dit luxe, monumentale pand zijn onder andere de statige uitstraling. Dit pand uit 1820 is voorzien van dakisolatie, muurisolatie, heeft voornamelijk dubbele beglazing (HR++), is gasloos en valt onder energieklasse B, wat u verzekert van een laag energieverbruik. Het pand is goed onderhouden, zowel binnen als buiten, en biedt een comfortabel en eigentijds interieur. De woonoppervlakte bedraagt 217m2 en het inhoud 870m3. Het object is voorzien van infrarood verwarming en biedt warm water via een warmtepompboiler en een elektrische boiler. In de woonkamer staat ook nog een gezellige houtkachel. Meer bijzonderheden van de woning zijn de drie badkamers, de vier slaapkamers en het riante dakterras dat aansluit op de tuinkamer/serre.
Op de begane grond is de pui opengewerkt zodat er veel daglichttoetreding is. De multifunctionele begane grond is nu in gebruik als gallery/kantoor en als tweede woonkamer met pantry en badkamer. De ruimte is ook weer aan te passen naar garage. Verder heeft deze ruimte vanaf de straat een eigen entree, de ingang van de lift, een vaste kast, de badkamer met douche, wastafel, toilet en bij de zithoek een pantry.
De woning heeft 4 woonlagen met ieder eigen unieke kenmerken. Zo heeft de eerste verdieping een overloop met toegang tot ruime woonkamer met een hoog plafond, houtkachel en lift. Aansluitend komt u in de moderne keuken (2023) met veel werkblad en via de schuifpui toegang tot de serre met eethoek. Het ruime dakterras biedt veel privacy en heeft uitzicht op de torens van de Bergkerk.
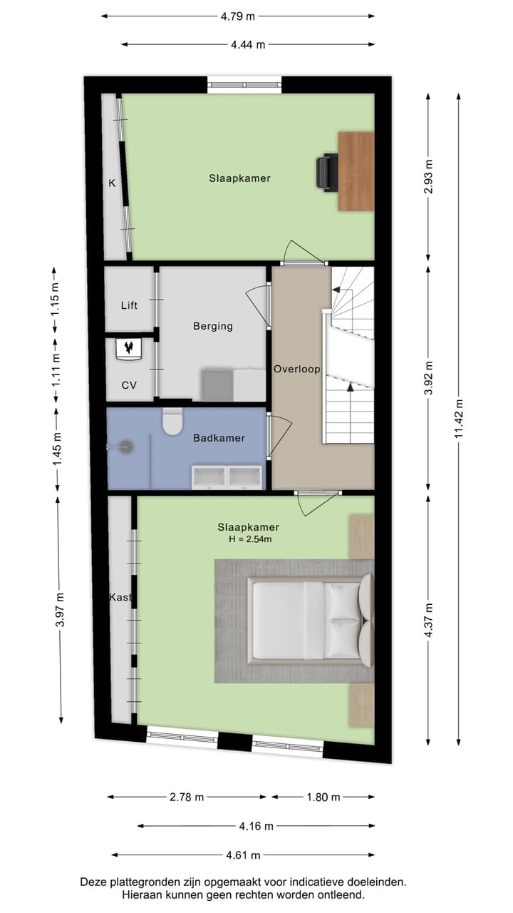
De tweede verdieping is een slaapetage met twee, ruime slaapkamers en een badkamer. De badkamer (2024) heeft een douche, een dubbele wastafel en een toilet. In de berging is de opstelling voor de wasmachine en de droger alsmede de lift en de cv ruimte met warmtepompboiler.
De zolderverdieping, de tweede slaapetage heeft ook een eigen badkamer en twee slaapkamers met vaste kasten. De badkamer (2023) heeft een toilet, een wastafel en een douche.
Nu de vraagprijs. Voor dit luxueuze, monumentale pand vragen wij € 1.100.000, - k.k. Wij nodigen u uit om dit unieke aanbod met eigen ogen te komen ervaren. Neem contact op voor een privébezichtiging en word verliefd op de eindeloze charme van deze woning. Deze woning is iets unieks en een kans die u niet mag missen!
WELKOM IN HET BERGKWARTIER.
Features
Transfer of ownership
- Original asking price
- € 1,100,000 kosten koper
- Listed since
- Acceptance
- Available in consultation
- Asking price
- € 995,000 kosten koper
- Asking price per m²
- € 4,585
- Status
- Available
Construction
- Kind of house
- Mansion, row house
- Building type
- Resale property
- Year of construction
- 1820
- Specific
- Protected townscape or village view (permit needed for alterations), double occupancy possible and monumental building
- Type of roof
- Gable roof covered with roof tiles
- Accessibility
- Accessible for people with a disability and accessible for the elderly
Surface areas and volume
- Areas
- Living area
- 217 m²
- Other space inside the building
- 25 m²
- Exterior space attached to the building
- 20 m²
- Plot size
- 102 m²
- Volume in cubic meters
- 870 m³
Layout
- Number of rooms
- 9 rooms (4 bedrooms)
- Number of bath rooms
- 3 bathrooms
- Bathroom facilities
- 3 showers, 3 toilets, 2 sinks, and double sink
- Number of stories
- 4 stories and a basement
- Facilities
- Skylight, optical fibre, elevator, mechanical ventilation, and sliding door
Energy
- Energy label
- B
- Insulation
- Roof insulation, mostly double glazed and insulated walls
- Heating
- Electric heating and wood heater
- Hot water
- Electrical boiler
Cadastral data
- DEVENTER E 2343
- Cadastral map
- Area
- 102 m²
- Ownership situation
- Full ownership
Exterior space
- Location
- In centre
- Balcony/roof terrace
- Roof terrace present
Storage space
- Shed / storage
- Built-in
Garage
- Type of garage
- Not yet present but possible
- Insulation
- Double glazing
Parking
- Type of parking facilities
- Paid parking, public parking, parking garage and resident's parking permits
Photos 77
Floorplans 5
© 2001-2025 funda

















































































