This house on Funda: https://www.funda.nl/en/detail/koop/dongen/huis-bas-dongen-7/43149440/

Bas Dongen 75101 BA DongenOud Dongen
€ 995,000 k.k.
Eye-catcherRust & luxe vlak bij het centrum – Bas Dongen 7
Description
Deze woning wordt te koop aangeboden via Van den Bosch makelaars.
Bas Dongen 7
In alle rust wonen, met het centrum van Dongen op loopafstand? Welkom aan Bas Dongen 7, een met zorg bewoonde en uitstekend onderhouden woning, gelegen in een rustige straat waar uitsluitend bestemmingsverkeer komt. De ligging, een zijstraat van de karakteristieke Kerkstraat, biedt een unieke combinatie van privacy, comfort en centrale bereikbaarheid.
De woning beschikt over een sfeervolle woonkamer, moderne keuken met Miele-apparatuur, vier slaapkamers, een verzorgde tuin met zwembad, sauna en diverse terrassen. Daarnaast is de woning energiezuinig uitgevoerd met onder meer zonnepanelen en een energielabel A.
De belangrijkste kenmerken op een rij:
- Zeer rustig gelegen in een autoluwe straat met veel privacy;
- Luxe, wellness en ontspanning in eigen huis;
- Op loopafstand van diverse sportverenigingen, het centrum en een basisschool;
- Alle kozijnen in kunststof uitgevoerd;
- Rolluiken (veelal elektrisch bedienbaar);
- Alarmsysteem aanwezig;
- Woning met zorg bewoond en onderhouden.
Indeling
Begane grond
Ruime entree met vide, meterkast en toilet met fontein en strak tegelwerk. Vanuit de hal toegang tot de keuken, woonkamer en de trapopgang naar de eerste verdieping.
De keuken ligt aan de achterzijde en is compleet uitgevoerd met 5-pits gasfornuis, vaatwasser en combi-oven (2024), RVS-afzuigschouw, koelkast, vriezer en ingebouwd koffiezetapparaat. Alle apparatuur is van Miele. De vloer is voorzien van tegels met vloerverwarming en de wanden en plafonds zijn strak gestuct.
Aangrenzend bevindt zich de kelder en een praktische bijkeuken met wasmachine- en drogeraansluiting.
De woonkamer is een prettige leefruimte met veel lichtinval, mede dankzij de drie dubbele openslaande deuren, een marmeren vloer, gashaard en vaste kasten. De afwerking is verzorgd met strak stucwerk op wanden en plafonds.
Aan de achterzijde bevindt zich de tuinkamer, uitgevoerd met massief houten vloer waarover nu tapijt is gelegd.
Eerste verdieping
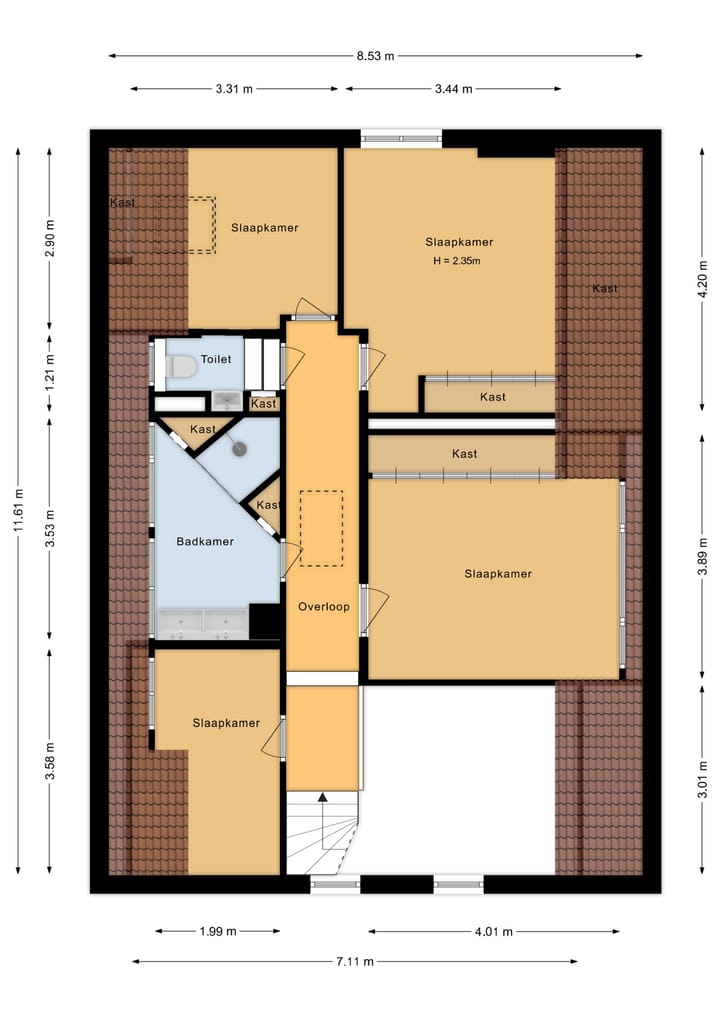
Overloop met toegang tot vier slaapkamers, badkamer en de toiletruimte.
De hoofdslaapkamer beschikt over een Frans balkon met uitzicht op de tuin, vaste kast, tapijtvloer, wanden met fijne korrel en een plafond met strak stucwerk.
De badkamer aan de achterzijde is modern uitgevoerd met dubbel wastafelmeubel, inloopdouche, praktische bergvakken, dakkapel en elektrische vloerverwarming.
Aan de voorzijde bevindt zich een tweede slaapkamer met dakkapel, bergkast en strak stucwerk. De derde slaapkamer aan de achterzijde heeft een dakraam met verduisteringsgordijn en eveneens een nette afwerking.
Zolder
Via vlizotrap bereikbare bergzolder met cv-installatie (voorbereid op hybride systeem) en extra bergruimte.
Tuin, garage en wellness
De tuin is met oog voor detail aangelegd en biedt optimale privacy. Verlichting is geautomatiseerd en verwerkt in het ontwerp, met fraaie tegelbestrating en meerdere terrassen.
Er is een royaal zwembad met buitendouche, een sauna met wastafelmeubel en toilet, en een garage voorzien van een betonvloer, ketel en zwembadinstallatie. De royale oprit met klinkerbestrating en carport biedt ruimte voor meerdere auto’s.
Duurzaamheid
- Dak-, gevel- en vloerisolatie;
- Kunststof kozijnen met isolerende beglazing;
- 37 zonnepanelen;
- Voorbereiding hybride cv-installatie;
- Energielabel A.
Enthousiast geworden?
Bel voor een vrijblijvende afspraak. We vertellen u graag meer over deze unieke woning aan de Bas Dongen!
Meer dan gemiddelde belangstelling:
Soms zijn er zo veel belangstellenden voor een woning, dat het moeilijk te bepalen is wie de meest geschikte koper is. Op dat moment kan de verkoper – in overleg met de makelaar – besluiten de (verkoop)procedure tussentijds te wijzigen.
De informatie is door ons met de nodige zorgvuldigheid samengesteld. Alle verstrekte informatie moet beschouwd worden als een uitnodiging tot het doen van een bod of om in onderhandeling te treden. Onzerzijds wordt echter geen enkele aansprakelijkheid aanvaard voor enige onvolledigheid, onjuistheid of anderszins, dan wel de gevolgen daarvan.
Alle opgegeven maten en oppervlakten zijn indicatief. Er is een meetrapport conform NEN2580 beschikbaar.
Features
Transfer of ownership
- Listed since
- Acceptance
- Available in consultation
- Asking price
- € 995,000 kosten koper
- Asking price per m²
- € 5,686
- Status
- Available
Construction
- Kind of house
- Villa, detached residential property
- Building type
- Resale property
- Year of construction
- 1985
- Type of roof
- Gable roof covered with roof tiles
Surface areas and volume
- Areas
- Living area
- 175 m²
- Other space inside the building
- 16 m²
- Exterior space attached to the building
- 29 m²
- External storage space
- 33 m²
- Plot size
- 1,040 m²
- Volume in cubic meters
- 725 m³
Layout
- Number of rooms
- 6 rooms (4 bedrooms)
- Number of bath rooms
- 1 bathroom and 1 separate toilet
- Bathroom facilities
- Sauna, double sink, walk-in shower, toilet, underfloor heating, and washstand
- Number of stories
- 2 stories, a loft, and a basement
- Facilities
- Air conditioning, alarm installation, skylight, french balcony, rolldown shutters, flue, sauna, and TV via cable
Energy
- Energy label
- A
- Insulation
- Roof insulation, energy efficient window, insulated walls and floor insulation
- Heating
- CH boiler
- Hot water
- CH boiler
- CH boiler
- Nefit (gas-fired combination boiler from 2023, in ownership)
Cadastral data
- DONGEN I 1679
- Cadastral map
- Area
- 997 m²
- Ownership situation
- Full ownership
- DONGEN I 1343
- Cadastral map
- Area
- 35 m²
- Ownership situation
- Full ownership
- DONGEN I 2399
- Cadastral map
- Area
- 8 m²
- Ownership situation
- Full ownership
Exterior space
- Balcony/roof garden
- French balcony present
- Location
- Alongside park, alongside a quiet road and in wooded surroundings
- Garden
- Surrounded by garden
Garage
- Type of garage
- Detached brick garage
- Capacity
- 1 car
- Facilities
- Electrical door, electricity, heating and running water
- Insulation
- Roof insulation, double glazing, insulated walls and floor insulation
Parking
- Type of parking facilities
- Parking on private property
Photos 50
© 2001-2025 funda

















































