This house on Funda: https://www.funda.nl/en/detail/koop/ede/appartement-valkestein-409/43267414/

Description
Gunstig gelegen appartement
Op de vierde verdieping van dit elf verdiepingen tellende appartementengebouw is dit leuke driekamerappartement in de verkoop gekomen. Dit appartement is gelegen aan een overdekte galerij, dichtbij de lift en het trappenhuis.
Uiteraard hoef je geen trappen te lopen, maar kun je één van de twee liften gebruiken. Voor de fiets is er plek in de gemeenschappelijke fietsenberging, daarnaast is er een aparte ruimte voor de afvalcontainers. Het appartement is voorzien van 2 slaapkamers, ruime woonkamer en een vernieuwde keuken en vernieuwd sanitair. Daarnaast beschikt het appartement over een gunstig gelegen balkon.
De ligging zal je zeker aanspreken; een groene woonomgeving met het Proosdijpark en mooie waterpartijen als achterburen. Bij het appartementengebouw is volop parkeergelegenheid en voor de dagelijkse boodschappen kun je terecht in winkelcentrum “Bellestein”, wat je lopend kunt bereiken. Via de Veenderweg loop of fiets je binnen tien minuten naar het centrum en het treinstation. De Proosdijerveldweg aan de oostzijde van het appartementengebouw heeft een goede aansluiting op de N224, de A12 en de A30.
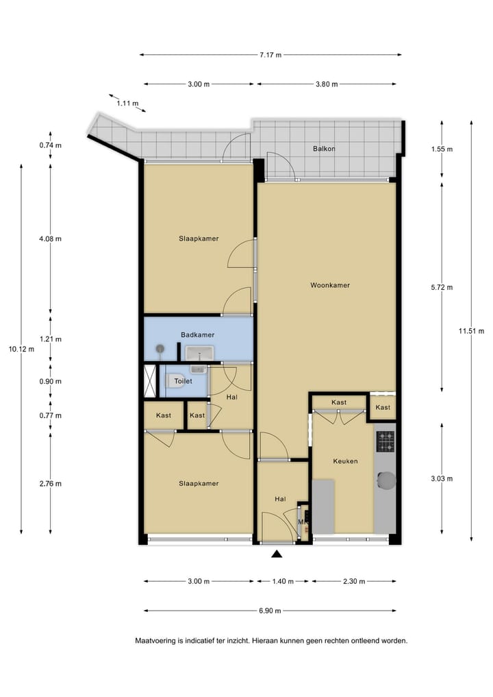
De indeling is als volgt:
Appartementengebouw:
De afgesloten entree met intercom geeft toegang tot de gemeenschappelijke hal, waar de brievenbussen, trappenhuis en de liften naar de verdiepingen zijn. Voor de fietsen zijn er in de onderbouw een gezamenlijke berging, daarnaast is er een aparte ruimte voor de afvalcontainers. Wat direct opvalt zijn de gemeenschappelijke ruimten die goed onderhouden zijn en periodiek worden schoongemaakt.
Appartement:
Het appartement ligt op de vierde verdieping en is via een overdekte galerij te bereiken. In de hal van het appartement is de meterkast en voldoende plek voor een kapstok.
De woonkamer is opvallend ruim, heeft veel lichtinval en is goed in te delen met een zit- en een eethoek. Twee vaste kasten in de woonkamer zorgen voor veel bergruimte voor bijvoorbeeld servies.
Naast de woonkamer is de hoofdslaapkamer, eveneens met een vaste kast. Het overdekte, zonnige balkon is vanuit de woonkamer en de hoofdslaapkamer te bereiken en een prima plek om met meerdere personen te zitten.
De keuken heeft een wandopstelling met diverse apparatuur en boven het aanrecht hangt de boiler ten behoeve van warm water. Vanuit de woonkamer heb je toegang tot een tussenportaal met de toiletruimte, een praktische vaste kast, tweede slaapkamer en de badkamer. De tweede slaapkamer ligt aan de galerijzijde en heeft een vaste kast. De badkamer heeft een inloopdouche en een wastafelmeubel.
Bijzonderheden:
- De servicekosten bedragen € 189,99 per maand inclusief huur boiler, voorschot stookkosten bedragen circa € 80,- per maand;
- Verwarming via blokverwarming, warm water via een individuele boiler;
- Voldoende openbare parkeergelegenheid voor het appartementengebouw;
- Gezamenlijke fietsenberging in de onderbouw, daarnaast heeft het appartement een privé berging op de verdieping;
- LET OP, de woning mag alleen verkocht worden aan personen voor zelfbewoning. Beleggers mogen de woning niet kopen!
- De woning wordt overgedragen door een projectnotaris verbonden aan notariskantoor Van Buttingha Wichers notarissen te ‘s-Gravenhage. Koper zal door een projectnotaris de hypotheekakte benodigd voor de financiering van het bij onderhavige akte gekochte registergoed doen verlijden bij Notariskantoor Posthuma Schutte Notariaat te Ede.
Features
Transfer of ownership
- Listed since
- Acceptance
- Available in consultation
- Asking price
- € 275,000 kosten koper
- Asking price per m²
- € 4,044
- Status
- Under offer
- Buyers program
- Is onderdeel uitpondproject
Construction
- Type apartment
- Galleried apartment (apartment)
- Building type
- Resale property
- Year of construction
- 1970
- Type of roof
- Flat roof covered with asphalt roofing
Surface areas and volume
- Areas
- Living area
- 68 m²
- Exterior space attached to the building
- 9 m²
- External storage space
- 6 m²
- Volume in cubic meters
- 197 m³
Layout
- Number of rooms
- 3 rooms (2 bedrooms)
- Number of bath rooms
- 1 bathroom and 1 separate toilet
- Bathroom facilities
- Walk-in shower and washstand
- Number of stories
- 1 story
- Facilities
- Elevator, mechanical ventilation, and TV via cable
- Located at
- 4th floor
Energy
- Energy label
- D
- Insulation
- Double glazing and energy efficient window
- Heating
- Communal central heating
- Hot water
- Electrical boiler (rental)
Cadastral data
- EDE F 3458
- Cadastral map
- Ownership situation
- Full ownership
Exterior space
- Location
- Alongside a quiet road, in residential district and unobstructed view
- Balcony/roof terrace
- Balcony present
Storage space
- Shed / storage
- Storage box
Parking
- Type of parking facilities
- Public parking
VVE (Owners Association) checklist
- Registration with KvK
- Yes
- Annual meeting
- Yes
- Periodic contribution
- Yes
- Reserve fund present
- Yes
- Maintenance plan
- Yes
- Building insurance
- Yes
Photos 32
© 2001-2025 funda































