This house on Funda: https://www.funda.nl/en/detail/koop/eijsden/huis-putstraat-27/43881915/

Description
Deze klus woning biedt jullie vele mogelijkheden en is gelegen op een perceel van maar liefst 887m2 in Eijsden- Oost Maarland aan putstraat 27. Oost-Maarland is gelegen tussen Maastricht en Eijsden en is gunstig gelegen t.o.v. de A2. Het wandelgebied de oosterbeemden is op loopafstand te bereiken.
Kelder: In de kelder bevindt zich de gasaansluiting.
Begane grond:
Entree/gang, trap naar de 1e verdieping, woonkamer 4.90 x 3.55 met gaskachel en meterkast. De woonkamer is v.v. van vloerbekleding. Onder de vloerbekleding bevindt zich een tegelvloer. Eetkamer 2.60 x 4.90, keuken 4.90 x 2.74 met eenvoudige keukenaanbouw en toegang tot de kelder via een aparte halletje. Toilet ruimte. Toegang tot de tuin. 2 bergingen van respectievelijk
3.64 x 2.64 en 2.90 x 5.29, garage, 3.02 x 5.29. Overkapping, berging 1.72 x 1.39.
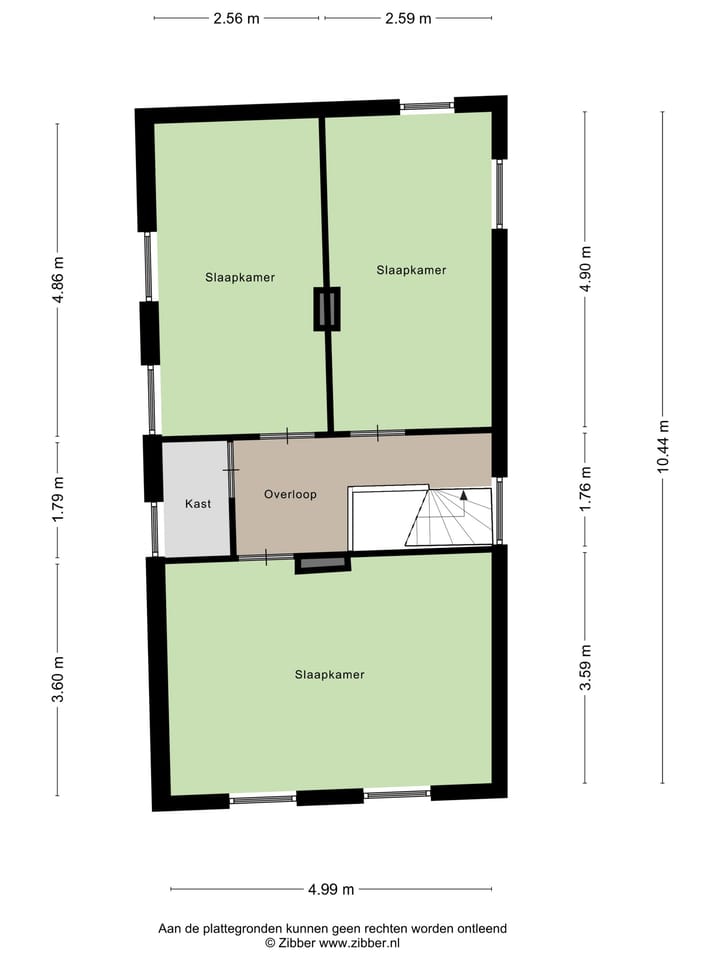
1e verdieping:
Overloop. Toegang tot de zolder. Drie slaapkamers, respectievelijk 4.90x 2.59, 4.86 x 2.56 en 4.99 x 3.59, eenvoudige doucheruimte.
2e verdieping:
Hier bevindt zich de zolderruimte
Bijzonderheden:
- 4 groepen
- Houten kozijnen welke in een slechte staat verkeren met enkel glas.
- Kozijn met HR glas
- Energielabel G 03-01-2035
Alle aangegeven maatvoeringen betreffen circa maten.
Voor meer informatie of voor het maken van een afspraak tot bezichtiging kunt u contact opnemen ons kantoor tel. nr.: 088-4504666.
Nadere informatie / disclaimer:
- Ter bescherming van de belangen van zowel koper als verkoper, wordt uitdrukkelijk gesteld dat een koopovereenkomst met betrekking tot deze onroerende zaak eerst dan tot stand komt nadat koper en verkoper de koopovereenkomst hebben getekend (“schriftelijkheidsvereiste”).
- De termijn die wordt opgenomen voor eventuele (overeengekomen) ontbindende voorwaarden (bv. Financiering) is in de regel 4 tot 6 weken na het sluiten van de mondelinge wilsovereenkomst.
- De waarborgsom/bankgarantie is 10% van de koopsom. De koper dient deze 2 weken ná het vervallen van de ontbindende voorwaarden bij de desbetreffende notaris te deponeren.
- Koper is te allen tijde gerechtigd voor eigen rekening een bouwkundige keuring te (laten) verrichten dan wel andere adviseurs te raadplegen teneinde een goed inzicht te verkrijgen over de staat van onderhoud.
- Deze informatie is door ons met de nodige zorgvuldigheid samengesteld. Onzerzijds wordt echter geen enkele aansprakelijkheid aanvaard voor enige onvolledigheid, onjuist of anderszins, dan wel de gevolgen daarvan.
- Alle opgegeven maten en oppervlakten zijn indicatief. Van toepassing zijn de NVM voorwaarden.
Features
Transfer of ownership
- Last asking price
- € 315,000 kosten koper
- Asking price per m²
- € 2,788
- Status
- Sold
Construction
- Kind of house
- Single-family home, detached residential property
- Building type
- Resale property
- Year of construction
- 1930
- Type of roof
- Gable roof covered with roof tiles
Surface areas and volume
- Areas
- Living area
- 113 m²
- Other space inside the building
- 57 m²
- Exterior space attached to the building
- 22 m²
- External storage space
- 7 m²
- Plot size
- 887 m²
- Volume in cubic meters
- 631 m³
Layout
- Number of rooms
- 4 rooms (3 bedrooms)
- Number of bath rooms
- 1 separate toilet
- Number of stories
- 2 stories and a basement
Energy
- Energy label
- G
- Heating
- Gas heaters
Cadastral data
- EIJSDEN A 2081
- Cadastral map
- Area
- 887 m²
- Ownership situation
- Full ownership
Exterior space
- Garden
- Back garden and side garden
- Back garden
- 675 m² (50.00 metre deep and 13.50 metre wide)
- Garden location
- Located at the southwest
Storage space
- Shed / storage
- Attached brick storage
- Facilities
- Electricity
- Insulation
- No insulation
Garage
- Type of garage
- Attached brick garage
- Capacity
- 1 car
- Facilities
- Electricity
- Insulation
- No insulation
Parking
- Type of parking facilities
- Parking on private property and public parking
Photos 39
© 2001-2025 funda






































