This house on Funda: https://www.funda.nl/en/detail/koop/eindhoven/huis-italielaan-10/43139351/

Description
Zoek jij een ruime eindwoning met volop potentie op een fijne locatie in Eindhoven? Dan is deze woning aan de Italielaan 10 perfect voor jou. Deze lichte woning is ideaal voor gezinnen of doorstromers die op zoek zijn naar comfort, ruimte, en vier slaapkamers. Met een ruime voortuin en volop parkeerplaatsen aan de straat, ervaar je hier direct een prettige thuiskomst.
BEGANE GROND
Via het overdekte entree stap je binnen in een ruime, lichte hal. De hal is voorzien van een tegelvloer en houten schrootjes aan het plafond, en biedt toegang tot de mooie houten trap naar de eerste verdieping. Hier vind je ook een provisiekast onder de trap, ideaal voor je garderobe. De toiletruimte, bereikbaar vanuit de hal, is netjes afgewerkt met moderne tegels, een hangend toilet en een fonteintje.
Vanuit de hal kom je in de grote en lichte keuken terecht. De keuken is uitgerust met een praktische wandopstelling en beschikt over moderne inbouwapparatuur, waaronder een koelkast, een combioven, een inductiekookplaat en een vaatwasser, aangevuld met diverse onder- en bovenkastjes.
De keuken staat in open verbinding met de woonkamer via een grote doorgang. De woonkamer is een heerlijke, lichte leefruimte met een lichtkleurige tegelvloer en een gezellige houtkachel. Aan de voorzijde geniet je van veel lichtinval door een groot, erkerachtig raam, terwijl je aan de achterzijde via een groot raam met deur direct de tuin in loopt.
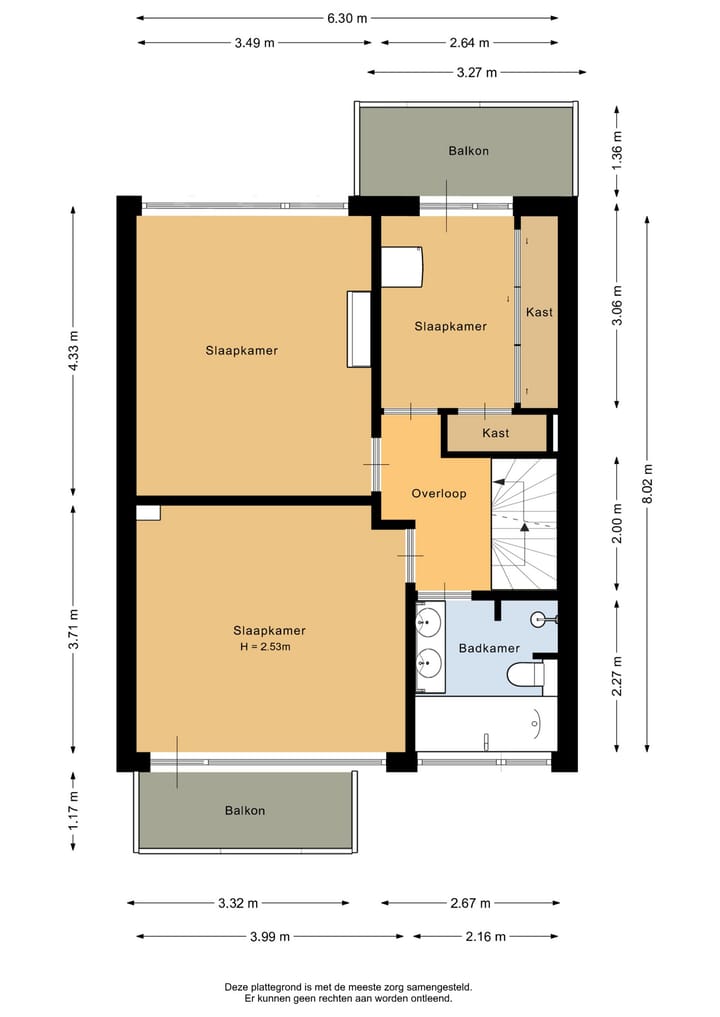
EERSTE VERDIEPING
Via de vaste houten trap bereik je de eerste verdieping. De overloop biedt toegang tot drie slaapkamers, de badkamer en de trapopgang naar de tweede verdieping.
Aan de achterzijde bevinden zich twee kamers: een wat kleinere kamer met een ingebouwde kast en schuifkastenwand, en vanuit hier stap je zo op een balkon. De tweede kamer aan de achterzijde is een hele ruime slaapkamer. Aan de voorzijde ligt de derde ruime slaapkamer, welke toegang geeft tot een ruim tweede balkon. Alle slaapkamers zijn afgewerkt met een lichtkleurige laminaatvloer met houtprint en structuurverf op de wanden.
De badkamer is aan de voorzijde gelegen en volledig betegeld tot aan het plafond in een neutrale kleurstelling. Je beschikt hier over een douchecabine, een ligbad, een toilet en een wastafelmeubel met twee wastafels.
TWEEDE VERDIEPING
De zolder is bereikbaar via een vaste trap en begint met een ruime voorzolder. Hier vind je de aansluitingen voor je wasmachine en droger, en hangt de CV-ketel. Er is hier een dakraam en slimme bergruimte gecreëerd onder de schuinte door middel van schuifdeuren.
Vanuit de voorzolder bereik je de ruime vierde slaapkamer. Deze kamer is voorzien van een groot dakraam, laminaatvloer, behangen wanden, schrootjes in de schuinte en is uitgerust met een vaste wastafel met warm en koud water. Ideaal als hoofdslaapkamer, gastenkamer of thuiskantoor!
TUIN
De achtertuin is gericht op het oosten en is zowel vanuit de woonkamer als de keuken bereikbaar. Je geniet hier van een fijne, mooie overkapping waar je heerlijk beschut kunt zitten. Achter in de tuin staat een grote berging die voorzien is van elektriciteit. Een praktisch detail: de achtertuin biedt ook toegang tot het zijgangetje.
BIJZONDERHEDEN
- Woonoppervlakte circa 135 m²
- Vrijstaande stenen berging van circa 10 m²
- Houten kozijnen voorzien van isolerende beglazing
- Prettige overkapping in de tuin aanwezig
Features
Transfer of ownership
- Listed since
- Acceptance
- Available in consultation
- Asking price
- € 450,000 kosten koper
- Asking price per m²
- € 3,333
- Status
- Sold under reservation
Construction
- Kind of house
- Single-family home, corner house
- Building type
- Resale property
- Year of construction
- 1972
- Type of roof
- Gable roof covered with roof tiles
Surface areas and volume
- Areas
- Living area
- 135 m²
- Exterior space attached to the building
- 27 m²
- External storage space
- 10 m²
- Plot size
- 192 m²
- Volume in cubic meters
- 486 m³
Layout
- Number of rooms
- 5 rooms (4 bedrooms)
- Number of bath rooms
- 1 bathroom and 1 separate toilet
- Bathroom facilities
- Shower, bath, toilet, and washstand
- Number of stories
- 3 stories
- Facilities
- Outdoor awning, skylight, optical fibre, passive ventilation system, and flue
Energy
- Energy label
- C
- Insulation
- Double glazing and insulated walls
- Heating
- CH boiler and fireplace
- CH boiler
- Vailliant (gas-fired combination boiler from 2006, in ownership)
Cadastral data
- WOENSEL C 2170
- Cadastral map
- Area
- 192 m²
- Ownership situation
- Full ownership
Exterior space
- Location
- On the edge of a forest and in residential district
- Garden
- Back garden and front garden
- Back garden
- 45 m² (7.07 metre deep and 6.40 metre wide)
- Garden location
- Located at the east with rear access
- Balcony/roof terrace
- Balcony present
Storage space
- Shed / storage
- Detached brick storage
- Facilities
- Electricity
Parking
- Type of parking facilities
- Public parking
Photos 54
Floorplans 5
© 2001-2025 funda


























































