This house on Funda: https://www.funda.nl/en/detail/koop/enschede/huis-deurningerstraat-288/43121319/

Description
Sommige huizen hoef je niet te begrijpen — je voelt ze. En dat is precies de reden dat wij zo enthousiast zijn over deze charmante helft van dubbel uit de jaren ‘30.
De sfeer, het licht, de details: alles klopt. Een huis waar karakter en comfort elkaar moeiteloos vinden.
Binnen is de tijd zorgvuldig bewaard. Paneeldeuren, een granitovloer, glas-in-loodramen, een erker en een kamer-en-suite met schouw in zowel de voor- als achterkamer — ze geven het huis die herkenbare jaren ’30 ziel. Tegelijkertijd is het wooncomfort eigentijds: dak- en muurisolatie, zonnepanelen, isolatieglas, kunststof kozijnen en een nieuwe cv-ketel en airco, zorgen dat het hier behaaglijk wonen is, in elk seizoen.
De voor- en de achterkamer lopen fijn in elkaar over. Een geheel, maar toch ook te scheiden van elkaar met die prachtige suite deuren, als dat even beter uit komt. Dankzij de dubbele tuindeuren aan de achterzijde stroomt het licht binnen en is de diepe achtertuin een fijn verlengstuk van de woonkamer. De tuin biedt veel zon, privacy en een geliefde overkapping — dé plek voor lange avonden buiten. De keuken is licht van kleur en netjes onderhouden, voorzien van inbouwapparatuur en tijdloos van uitstraling: prima om nog een tijdje mee vooruit te kunnen.
Boven is de ruimte opvallend royaal. Door de slimme uitbouw zijn er nu vier slaapkamers op de eerste verdieping, en op ruime, open zolder is ruimte voor een vijfde. De badkamer is modern uitgevoerd en voldoet helemaal aan de huidige trends en met een fraaie mozaikvloer, echt prachtig! Hij bevindt zich op de begane grond — misschien even anders dan verwacht, maar ruimschoots gecompenseerd door het aantal slaapkamers én een toilet boven.
Daarnaast is er volop praktische bergruimte: een kelder, inbouwkasten, zolderruimte en een schuur zorgen dat alles een eigen plek krijgt.
En dan die ligging: in het noorden van Enschede, precies tussen het centrum en het buitengebied. Je fietst zo het groen in en diverse parken liggen in de directe omgeving. Maar je bent ook binnen mum van tijd in de stad of op de snelweg. Voor de dagelijkse boodschappen ligt Roombeek op steenworp afstand, maar ook winkelcentrum Deppenbroek is een logische keuze.
Een huis dus dat klopt, tot in de details.
Vol karakter, goed onderhouden, duurzaam en warm van sfeer
en… klaar voor een nieuw hoofdstuk met nieuwe bewoners!
Zoals we al zeiden: dit is een huis dat zich laat voelen, niet uitleggen. Wees daarom vooral welkom voor een bezichtiging, we durven te wedden dat jij net zo enthousiast bent als wij!
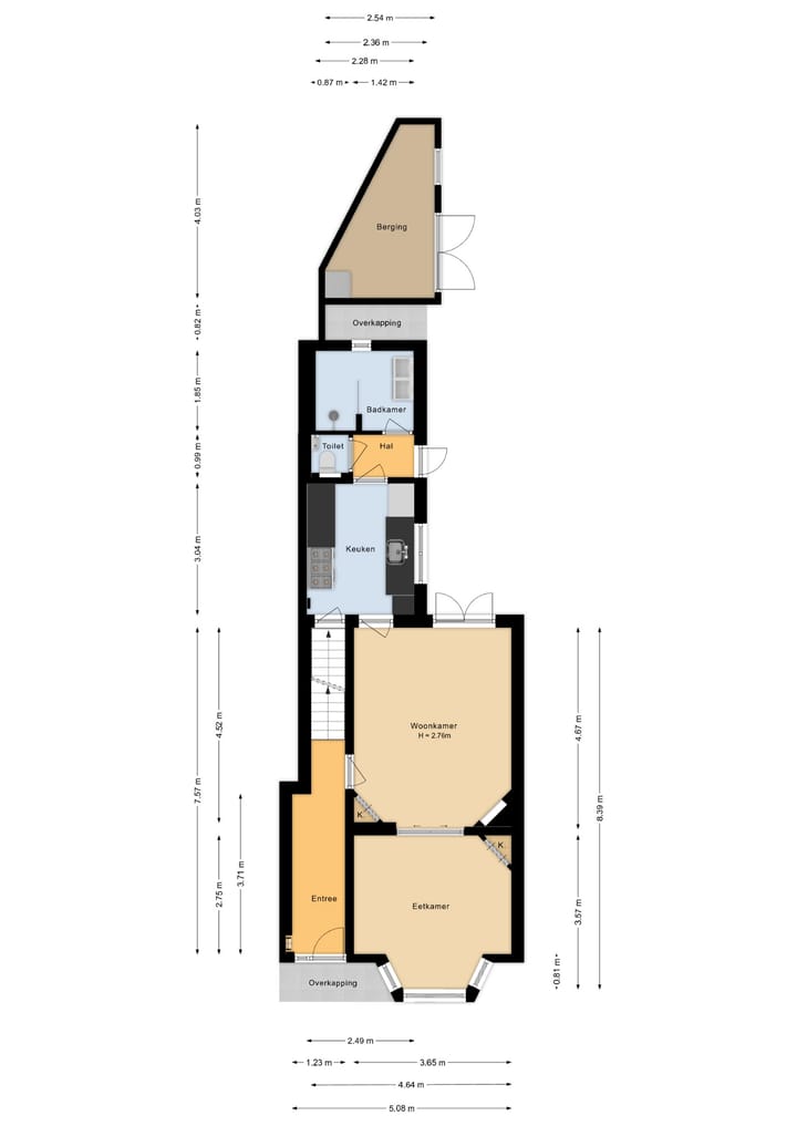
Indeling
- Begane grond: entree, hal met meterkast en trapopgang. Woonkamer en-suite, dichte keuken, achterportaal, toilet en badkamer.
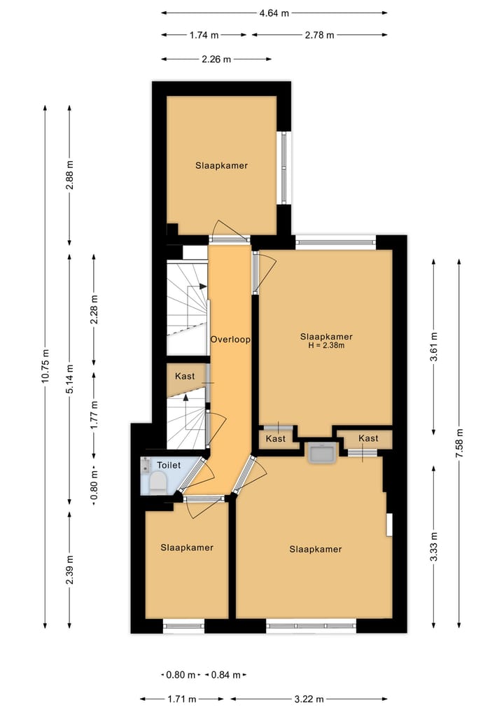
- 1e verdieping: overloop met toilet, 4 slaapkamers waarvan de kleinste is ingericht als inloopkast. Vaste trap naar:
- 2e verdieping: ruime zolder ruimte.
Bijzonderheden
- Verwarming en warmwatervoorziening d.m.v. CV combi-ketel, Nefit, 2022.
- De zonnepanelen (11x) zijn geplaatst in 2020, hetzelfde jaar als waarin de airco is geplaatst.
- De woning is netjes onderhouden, zo is bijvoorbeeld het buitenschilderwerk uitgevoerd in 2024 professioneel geschilderd.
- De kozijnen zijn grotendeels van kunststof, wat het onderhoud makkelijker maakt.
- De keuken is voorzien van inbouwapparatuur: gasfornuis (5 pits) met oven, vaatwasser, koelkast en vriezer.
- De badkamer is ingericht met inloopdouche, breed wastafelmeubel met dubbele kraan en designradiator.
- De tuin heeft dus een heerlijk overdekt terras. Daarnaast is er nog een houten berging voor het plaatsen van de fietsen en een overkapping voor de bakfiets.
Bouwjaar: 1938
Perceel: 216 m²
Woonoppervlakte: 117 m²
Inhoud wonen: 429 m³
Aanvaarding: in overleg.
Energielabel: C (geldig tot 20-10-2035)
Waarborgsom/bankgarantie: is bij koop vereist en bedraagt 10% van de koopsom.
In de koopovereenkomst worden de volgende clausules opgenomen: ouderdomsclausule, asbestclausule.
Partijen zijn pas gebonden niet eerder dan dat er een schriftelijke koopovereenkomst is getekend door partijen (schriftelijkheidsvereiste).
Deze woning heeft een WOZ waarde die onder de € 365.000,- ligt. Dat betekent dat deze woning onder de ’opkoopbescherming’ van de Gemeente Enschede valt en alleen aangekocht kan worden voor eigen bewoning. Deze regeling vind je op of bel met ons kantoor voor meer informatie.
Interesse in dit huis? Schakel uw eigen NVM-aankoopmakelaar in. Hij of zij komt op voor uw belangen als koper en bespaart u tijd, geld en zorgen.
Features
Transfer of ownership
- Listed since
- Acceptance
- Available in consultation
- Asking price
- € 415,000 kosten koper
- Asking price per m²
- € 3,547
- Status
- Sold under reservation
Construction
- Kind of house
- Single-family home, double house
- Building type
- Resale property
- Year of construction
- 1938
- Type of roof
- Hipped roof covered with roof tiles
Surface areas and volume
- Areas
- Living area
- 117 m²
- Exterior space attached to the building
- 4 m²
- External storage space
- 7 m²
- Plot size
- 216 m²
- Volume in cubic meters
- 429 m³
Layout
- Number of rooms
- 7 rooms (5 bedrooms)
- Number of bath rooms
- 1 bathroom and 2 separate toilets
- Bathroom facilities
- Double sink and walk-in shower
- Number of stories
- 2 stories and an attic
- Facilities
- Air conditioning, skylight, mechanical ventilation, rolldown shutters, and solar panels
Energy
- Energy label
- C
- Insulation
- Roof insulation, mostly double glazed and insulated walls
- Heating
- CH boiler
- Hot water
- CH boiler
- CH boiler
- Nefit (gas-fired combination boiler from 2022, in ownership)
Cadastral data
- LONNEKER R 1917
- Cadastral map
- Area
- 216 m²
- Ownership situation
- Full ownership
Exterior space
- Location
- Alongside busy road and in residential district
- Garden
- Back garden
- Back garden
- 140 m² (20.00 metre deep and 7.00 metre wide)
- Garden location
- Located at the east with rear access
Storage space
- Shed / storage
- Detached wooden storage
Parking
- Type of parking facilities
- Public parking
Photos 46
Floorplans 5
© 2001-2025 funda


















































