
Satijnhof fase 2 - Type F (Bouwnr. 19)7513 ET EnschedeVeldkamp-Getfert-West
Under option
€ 495,000 v.o.n.
Description
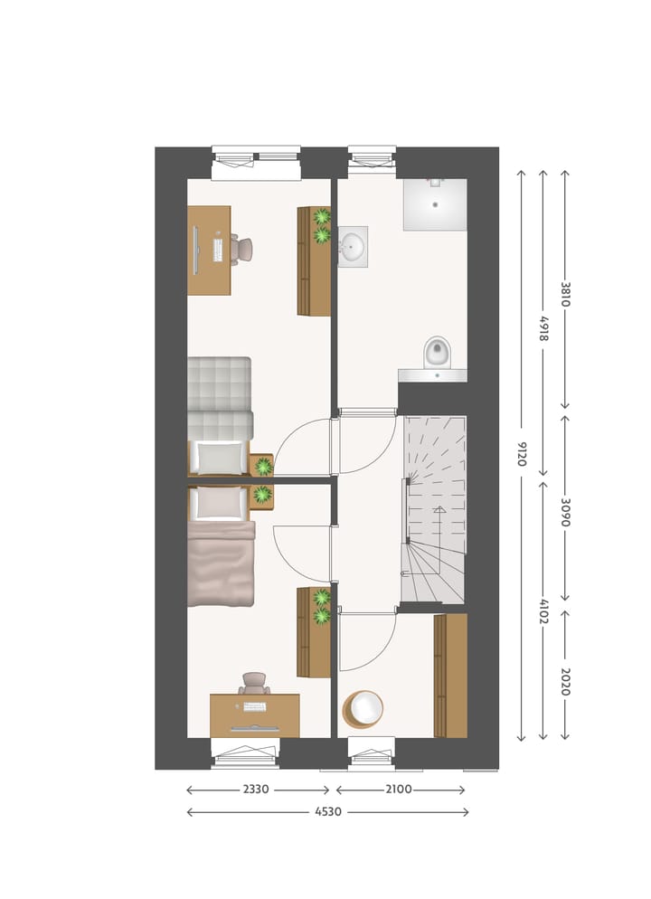
Woningtype F bestaat uit drie woningen, waaronder één hoekwoning. Met vier bouwlagen en volop indelingsvrijheid zijn dit huizen die met je mee kunnen groeien. De leefkeuken ligt op de begane grond, de woonkamer op de eerste verdieping heeft een vide en hoge raampartijen, wat zorgt voor veel licht en een prettig gevoel van ruimte.
Standaard beschik je over drie slaapkamers, maar op de derde verdieping kun je eenvoudig nog extra kamers creëren. Denk aan een hobbyruimte, werkkamer of logeerkamer, er is ruimte genoeg. De tuin ligt op het westen en heeft een berging voor je fietsen en tuinspullen. Parkeren doe je op je eigen plek in de binnenhof. Een huis met mogelijkheden, klaar voor jouw plannen.
Features
Transfer of ownership
- Listed since
- Acceptance
- Available in consultation
- Asking price
- € 495,000 vrij op naam
- Asking price per m²
- € 3,194
- Status
- Under option
Construction
- Kind of house
- Single-family home, row house
- Building type
- New property
- Year of construction
- 2026
- Type of roof
- Flat roof covered with asphalt roofing
- Quality marks
- Woningborg Garantiecertificaat
Surface areas and volume
- Areas
- Living area
- 155 m²
- Plot size
- 84 m²
- Volume in cubic meters
- 527 m³
Layout
- Number of rooms
- 7 rooms (3 bedrooms)
- Number of bath rooms
- 1 bathroom and 1 separate toilet
- Bathroom facilities
- Shower, toilet, and sink
- Number of stories
- 4 stories
- Facilities
- Balanced ventilation system and solar panels
Energy
- Energy label
- A+++
- Insulation
- Completely insulated
- Heating
- District heating and partial floor heating
- Hot water
- District heating
Cadastral data
- ENSCHEDE
- Cadastral map
- Area
- 84 m²
Exterior space
- Location
- In residential district
Storage space
- Shed / storage
- Attached wooden storage
- Facilities
- Electricity
- Insulation
- Completely insulated
Parking
- Type of parking facilities
- Parking on private property
Photos 7
© 2001-2025 funda






