This house on Funda: https://www.funda.nl/en/detail/koop/froombosch/huis-langewijk-22/43762963/

Description
Aan een doorgaande weg van Sappemeer naar Froombosch is deze vrijstaande woning met grote loods gelegen op een zeer ruime kavel (4845m2). Op eigen terrein kunnen eenvoudig meerdere auto's geparkeerd worden. Achter het is een overkapping gemaakt voor het bergen van tuingereedschap.
OMGEVING:
De Langewijk is een straat die aan een kanaal gelegen is en Sappemeer verbindt met Froombosch. Het is landelijk gelegen met vrij uitzicht over de landerijen. Froombosch voorziet in verschillende verenigingen, een dorpshuis en bezit een ijsbaan en de bushalte. Sappemeer is met de auto snel bereikbaar waar u voorzieningen vindt zoals winkels, scholen, kinderopvang enz. Vanuit deze woonplek is het heel fijn fietsen in de provincie met zijn mooie dorpjes.
BESCHRIJVING WONING:
Begane grond:
Aan de voorzijde komt u de woning binnen in een halletje met toegang tot de royale woonkamer (ca.55m2) met een houtkachel en open trap naar de verdieping. Grote woonkeuken (ca. 40m2) met eethoek uitkijkend op het achter terrein. Grote badkamer ca. 19m2) met ligbad, toilet, douchecabine en dubbele wastafel. Vanuit de keuken komt u in een ruimte wat als slaapkamer (ca. 10m2) kan dienen en van buitenaf is met de trap de verdieping te bereiken.
VERDIEPING;
vanuit de woonkamer met open trap komt u op de verdieping met overloop, een ruimte wat een slaapkamer kan worden (ca. 10m2) met een mogelijkheid met de trap naar buiten te kunnen, een slaapkamer (ca. 22m2), slaapkamer (ca. 20m2) en een toilet met wasbakje.
BUITEN:
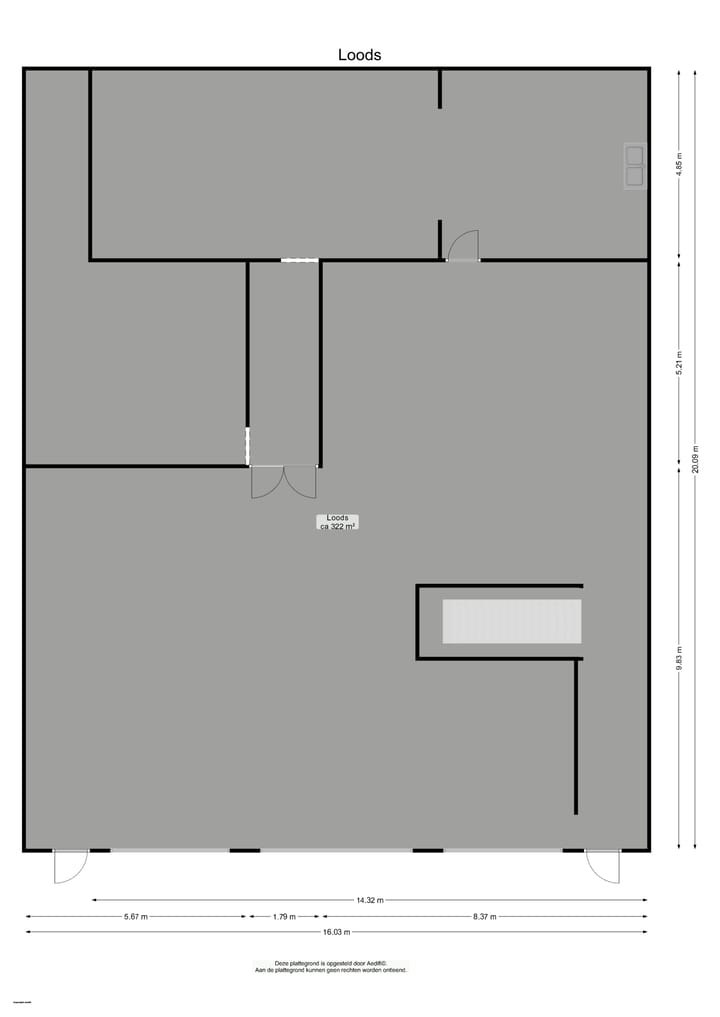
- De grote loods is voorzien van 3 roldeuren en 2 loop-deuren met een oppervlakte totaal van 322m2. Tevens een trap
naar de verdieping voor opslag ca. 242m2.
- Naast de loods staat een vrijstaande houten schuur met toilet ca. 39m2.
- Op het achter terrein is een overkapping gemaakt om gereedschappen, zoals grasmaaier onder te kunnen stallen.
- De grote, omringde tuin heeft in het midden een U-vormige vijver met fontein. Het terras is aangelegd aan de vijver.
INFO:
- zeer ruim perceel: 4845m2;
- grote loods met 3 roldeuren ca. 322m2 met verdieping ca. 242m2;
- houten schuur met toilet ca. 39m2;
- overkapping voor stallen gereedschappen ca. 10m lang, totaal ca. 27m2;
- veel parkeergelegenheid op eigen terrein;
- voorzieningen, zoals winkels, artsen, scholen per auto nabij;
Features
Transfer of ownership
- Original asking price
- € 525,000 kosten koper
- Last asking price
- € 475,000 kosten koper
- Asking price per m²
- € 3,146
- Status
- Sold
Construction
- Kind of house
- Single-family home, detached residential property
- Building type
- Resale property
- Year of construction
- 1931
- Specific
- Renovation project
- Type of roof
- Gable roof covered with roof tiles
Surface areas and volume
- Areas
- Living area
- 151 m²
- Other space inside the building
- 34 m²
- Exterior space attached to the building
- 5 m²
- External storage space
- 581 m²
- Plot size
- 4,845 m²
- Volume in cubic meters
- 612 m³
Layout
- Number of rooms
- 6 rooms (4 bedrooms)
- Number of bath rooms
- 2 bathrooms
- Bathroom facilities
- Shower, double sink, bath, 2 toilets, and sink
- Number of stories
- 2 stories
- Facilities
- Flue, sliding door, and TV via cable
Energy
- Energy label
- D
- Insulation
- Double glazing
- Heating
- CH boiler
- Hot water
- CH boiler
- CH boiler
- Intergas (gas-fired combination boiler from 2016, in ownership)
Cadastral data
- SLOCHTEREN P 105
- Cadastral map
- Area
- 1,105 m²
- Ownership situation
- Full ownership
- SLOCHTEREN P 104
- Cadastral map
- Area
- 3,740 m²
- Ownership situation
- Full ownership
Exterior space
- Location
- Alongside a quiet road and unobstructed view
- Garden
- Back garden, front garden, side garden and sun terrace
- Side garden
- 3,800 m² (71.00 metre deep and 56.00 metre wide)
- Garden location
- Located at the south
Storage space
- Shed / storage
- Detached wooden storage
- Facilities
- Electricity
Parking
- Type of parking facilities
- Parking on private property
Photos 93
© 2001-2025 funda




























































































