
Description
Op zoek naar een object met ruimte voor uw hobby’s? Of waar u dieren kunt houden? Aan dit adres kan het allebei!
Vrij gelegen woonboerderij met inpandige en aangebouwde schuur op een ruim perceel van maar liefst 8.094 m²!
Van het perceel met het oude boerenerf is circa 8.094 m² overgebleven met daarop in het midden de voormalige boerenbehuizing van omstreeks 1910. Het perceel is circa 118 meter breed en aan weerszijden van de boerderij is, naast de royale tuin, ruimte voor bijvoorbeeld een weiland. Aan de achterzijde, op het zuiden, is vrij uitzicht aanwezig.
De boerderij bestaat uit een oude gebintenconstructie met sporen kap en pannen dakbedekking. De gevels zijn steens en halfsteens opgetrokken en het voorhuis is voorzien van voorzetwanden. De kozijnen zijn van hout en uitgerust met dubbel glas. Het voorhuis wordt verwarmd middels infraroodpanelen en in de woonkamer is een pelletkachel aanwezig. Op het dak van de aangebouwde schuur liggen 22 zonnepanelen van 2015 op het zuiden, met een totale opbrengst van ruim 56.000 kWh tot dusver.
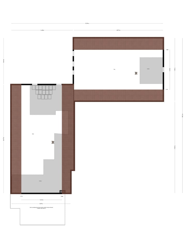
INDELING VAN DE WONING
Begane grond: Hal met entree en meterkast – slaapkamer met inbouwkasten – opkamer/slaapkamer met daaronder een kelder – kleine slaapkamer/berging – slaapkamer met aangrenzend een badkamer met ligbad, wastafel, inloopdouche en toilet – woonkamer met voorraadkast en pelletkachel – woonkeuken met gashaard en geiser – toilet met urinoir en wastafel – bijkeuken met wasmachine aansluiting – gang met achterom – inpandige schuur met koestal, opslagruimte en open zolder – aangebouwde schuur met elektrische overheaddeur.
OMGEVING
Het dorp Gasselternijveenschemond ligt in de gemeente Aa en Hunze, tegen de provinciegrens Drenthe/Groningen. Het dorp wordt gekenmerkt door de veenkoloniale lintbebouwing en telt bijna 700 inwoners. Het naastgelegen dorp Stadskanaal met een grote regiofunctie biedt een ruim aanbod aan voorzieningen. De plaatsen Assen, Emmen en Groningen liggen op circa 30 autominuten afstand.
ALGEMEEN
- Ruim en breed perceel van ± 8.094 m²
- Verwarming middels infraroodpanelen en pelletkachel
- Warm water middels geiser
- 22 zonnepanelen op de zuidkant van de aangebouwde schuur gelegen
- Krachtstroom, glasvezel en waterontharder aanwezig
Features
Transfer of ownership
- Last asking price
- € 475,000 kosten koper
- Asking price per m²
- € 2,582
- Status
- Sold
Construction
- Kind of house
- Converted farmhouse, detached residential property
- Building type
- Resale property
- Year of construction
- 1910
- Type of roof
- Gable roof covered with roof tiles
Surface areas and volume
- Areas
- Living area
- 184 m²
- Other space inside the building
- 724 m²
- Exterior space attached to the building
- 27 m²
- External storage space
- 8 m²
- Plot size
- 8,094 m²
- Volume in cubic meters
- 3,366 m³
Layout
- Number of rooms
- 6 rooms (4 bedrooms)
- Number of bath rooms
- 1 bathroom and 1 separate toilet
- Bathroom facilities
- Shower, bath, toilet, and sink
- Number of stories
- 1 story and a basement
- Facilities
- Optical fibre and solar panels
Energy
- Energy label
- G
- Insulation
- Double glazing and insulated walls
- Heating
- Electric heating and pellet burner
- Hot water
- Gas water heater
Cadastral data
- GASSELTE K 1236
- Cadastral map
- Area
- 8,094 m²
- Ownership situation
- Full ownership
Exterior space
- Location
- Rural and unobstructed view
- Garden
- Surrounded by garden
Storage space
- Shed / storage
- Attached brick storage
- Facilities
- Electricity
Garage
- Type of garage
- Built-in
- Capacity
- 4 cars
- Facilities
- Electricity
Parking
- Type of parking facilities
- Parking on private property
Photos 63
© 2001-2025 funda






























































