This house on Funda: https://www.funda.nl/en/detail/koop/groningen/appartement-rijnstraat-7-a/89534581/

Rijnstraat 7-A9725 EP GroningenRivierenbuurt
€ 395,000 k.k.
Eye-catcherTwee jaren 30 appartementen met balkon en heerlijk dakterras
Description
Twee karakteristieke jaren 30 appartementen op een ideale plek, vlakbij het Centraal Station, Zuiderpark en Stadspark!
Het betreft hier twee zelfstandige appartementen. Appartement 7a beschikt over een balkon en appartement 7b heeft een riant dakterras met fraai uitzicht over de stad.
De appartementen kunnen uiteraard verhuurd worden of zelf bewoond maar het is ook eenvoudig hier één grote bovenwoning van te maken.
In de buurt tref je tal van voorzieningen, waaronder winkels en een supermarkt. Daarnaast ligt het Centraal Station op loopafstand, de ringweg dichtbij en ben je op de fiets in een paar minuten in de bruisende binnenstad.
Klik op de 3d-tour om het bovenste appartement alvast van binnen te bekijken!
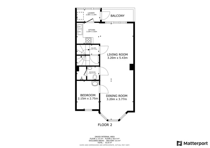
Indeling appartement 7a:
Portiek met trapopgang naar de entree van het appartement op de tweede verdieping. Je komt binnen op de overloop met hier een deur naar de woonkamer met eetgedeelte en open keuken. De woonkamer beschikt over een sfeervolle erker en kent veel lichtinval door de raampartijen aan beide zijden. Vanuit de keuken is er toegang tot een wasruimte met de witgoedaansluitingen en deur naar het balkon aan de achterzijde.
Aan de voorzijde is er vanuit de woonkamer toegang tot de slaapkamer en badkamer.
Indeling appartement 7b:
Het appartement op de derde en vierde verdieping heeft een eigen entree en is volledig voorzien van kunststof kozijnen. Je komt binnen in de hal met hier handige bergkasten, het toilet, berging, toegang tot de badkamer, de keuken en deur naar de woonkamer. De woonkamer met eetgedeelte beschikt over inbouwkasten. De badkamer is uitgerust met een douche, wastafelmeubel en witgoedaansluitingen.
Via de trapopgang in de keuken is er toegang tot de slaapkamer op de vierde verdieping. Deze beschikt over grote raampartijen en toegang tot het prachtige en ruime dakterras. Vanaf dit terras heb je een fraai uitzicht over de stad en kun je de hele dag van de zon genieten.
Bijzonderheden:
* Twee karakteristieke jaren 30 appartementen;
* Prachtig dakterras;
* Elektra, mechanische ventilatie en keuken vernieuwd in 2013;
* Cv-ketel uit 2013 in eigendom;
* Bovenste twee woonlagen voorzien van kunststof kozijnen;
* Wordt kadastraal gesplitst, reeds toestemming van gemeente verleend;
* Ideale ligging dichtbij binnenstad, station en voorzieningen.
Features
Transfer of ownership
- Listed since
- Acceptance
- Available in consultation
- Asking price
- € 395,000 kosten koper
- Asking price per m²
- € 3,657
- Status
- Available
Construction
- Type apartment
- Upstairs apartment (double upstairs apartment)
- Building type
- Resale property
- Year of construction
- 1937
- Specific
- Double occupancy present and double occupancy possible
- Type of roof
- Gable roof covered with asphalt roofing and roof tiles
Surface areas and volume
- Areas
- Living area
- 108 m²
- Exterior space attached to the building
- 27 m²
- External storage space
- 5 m²
- Volume in cubic meters
- 436 m³
Layout
- Number of rooms
- 4 rooms (2 bedrooms)
- Number of bath rooms
- 2 bathrooms and 1 separate toilet
- Bathroom facilities
- Walk-in shower, toilet, sink, shower, and washstand
- Number of stories
- 3 stories
- Facilities
- Mechanical ventilation, passive ventilation system, and TV via cable
- Located at
- 3rd floor
Energy
- Energy label
- B
- Insulation
- Energy efficient window
- Heating
- CH boiler
- Hot water
- CH boiler
- CH boiler
- Gas-fired combination boiler from 2013, in ownership
Cadastral data
- GRONINGEN C 11348
- Cadastral map
- Ownership situation
- Full ownership
- GRONINGEN C 9141
- Cadastral map
- Area
- Part of parcel
- Ownership situation
- Held in common ownership
Exterior space
- Location
- Alongside a quiet road and in residential district
- Balcony/roof terrace
- Roof terrace present and balcony present
Storage space
- Shed / storage
- Detached brick storage
VVE (Owners Association) checklist
- Registration with KvK
- Yes
- Annual meeting
- Yes
- Periodic contribution
- No
- Reserve fund present
- No
- Maintenance plan
- No
- Building insurance
- No
Photos 35
© 2001-2025 funda


































