This house on Funda: https://www.funda.nl/en/detail/koop/harderwijk/appartement-eendekamp-92/43253127/

Description
VOLLEDIG INSTAPKLAAR 3-KAMERAPPARTEMENT MET RUIM BALKON OP GROENE EN ZONNIGE LOCATIE
Ben jij op zoek naar een woning waar je zó in kunt trekken? Dan is Eendekamp 92 precies wat je zoekt! Dit instapklare en volledig gemoderniseerde 3-kamer appartement ligt op een prachtige, groene locatie aan de rand van de geliefde wijk Frankrijk. Hier is in 2023 werkelijk alles aangepakt — van vloer tot elektra, van keuken tot badkamer. Het resultaat: een fris, modern appartement waar comfort en sfeer samenkomen.
De woonkamer is heerlijk licht dankzij de grote raampartijen en openslaande deuren naar het ruime balkon. Hier geniet je van een groen, vrij uitzicht en zit je heerlijk beschut: een perfecte plek voor een kop koffie in de zon of een gezellige borrel met vrienden. De open keuken is gloednieuw en voorzien van diverse inbouwapparatuur. Hier kook je met plezier, terwijl er genoeg ruimte is om samen te tafelen of te borrelen. Alles voelt fris, eigentijds en direct klaar voor gebruik.
De badkamer is een echte eyecatcher: een inloopdouche, dubbel wastafelmeubel met verwarmde en verlichte spiegel, en een designradiator zorgen voor een spa-achtige sfeer. Daarnaast is er een separaat toilet en een praktische berging met wasmachine- en drogeraansluiting. De twee slaapkamers zijn prettig van formaat en licht afgewerkt — ideaal als slaap-, werk- of logeerkamer.
Het appartementencomplex is voorzien van een lift, een nette centrale entree met brievenbussen en bellentableau, en beschikt over een eigen (fietsen)berging op de begane grond.
De ligging? Ideaal! Aan het begin van de geliefde wijk Frankrijk, met het centrum van Harderwijk, de bossen van de Veluwe en de landelijke omgeving van Hierden allemaal op korte (fiets)afstand. Rustig wonen, maar toch overal dichtbij.
Van harte welkom voor een bezichtiging! Plan een afspraak via ons kantoor!
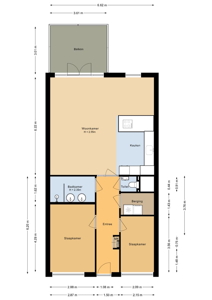
INDELING
Begane grond: via de centrale afgesloten ingang bereikt u het trappenhuis en de lift. Deze entree geeft tevens toegang tot de brievenbussen.
1e verdieping: entree met meterkast, 1e en 2e slaapkamer, berging met aansluiting wasmachine en opstelling HR cv-ketel, separaat toilet met fonteintje (2023), badkamer (2023) met inloopdouche, badmeubel met 2 waskommen, verwarmde en verlichte spiegel en designradiator, woonkamer met open keuken (2023) voorzien van diverse inbouwapparatuur, waaronder inductiekookplaat, afzuiging, oven, combi-oven, koelkast, vaatwasser en Quooker, openslaande deuren naar het balkon;
VOORZIENINGEN
De centrale verwarming en de warmwatervoorziening geschieden via de HR CV combiketel uit 2007. Verder is het appartement voorzien van een intercominstallatie, een mechanische ventilatie unit en uiteraard de liftinstallatie.
TERRAS/BALKON
De woning beschikt over een royaal terras. Door de tegenoverliggende groenstrook/bomen is het hier gedurende de dag heerlijk (privé) vertoeven
PARKEREN en BERGING
Aan de voorzijde van het appartementencomplex zijn er diverse openbare parkeervoorzieningen aanwezig en op de begane grond bevindt zich de eigen (fietsen-) berging.
De Vereniging van Eigenaren (VvE)
Als eigenaar van een appartement bent u met de mede-eigenaars in het gebouw verantwoordelijk voor het beheer, waaronder begrepen het klein en groot onderhoud en een aantal verzekeringen. De maandelijkse bijdrage aan de VvE bedraagt circa € 185,--.
BROCHURE
Van deze woning is een unieke woningwebsite (eendekamp92.nl) beschikbaar. Op deze website kunt u de brochure downloaden waar u alle gegevens van de woning kunt vinden.
Features
Transfer of ownership
- Listed since
- Acceptance
- Available in consultation
- Asking price
- € 419,500 kosten koper
- Asking price per m²
- € 5,116
- Status
- Sold under reservation
- VVE (Owners Association) contribution
- € 185.00 per month
Construction
- Type apartment
- Upstairs apartment (apartment)
- Building type
- Resale property
- Year of construction
- 1990
- Type of roof
- Flat roof covered with asphalt roofing
Surface areas and volume
- Areas
- Living area
- 82 m²
- Exterior space attached to the building
- 11 m²
- External storage space
- 4 m²
- Volume in cubic meters
- 257 m³
Layout
- Number of rooms
- 3 rooms (2 bedrooms)
- Number of bath rooms
- 1 bathroom and 1 separate toilet
- Bathroom facilities
- Shower and double sink
- Number of stories
- 1 story
- Facilities
- Outdoor awning, optical fibre, elevator, mechanical ventilation, flue, and TV via cable
- Located at
- 1st floor
Energy
- Energy label
- C
- Insulation
- Double glazing
- Heating
- CH boiler
- Hot water
- CH boiler
- CH boiler
- Remeha (gas-fired combination boiler from 2007, in ownership)
Cadastral data
- HARDERWIJK B 5178
- Cadastral map
- Ownership situation
- Full ownership
Exterior space
- Location
- In residential district
- Balcony/roof terrace
- Balcony present
Storage space
- Shed / storage
- Built-in
- Facilities
- Electricity
Parking
- Type of parking facilities
- Public parking
VVE (Owners Association) checklist
- Registration with KvK
- Yes
- Annual meeting
- Yes
- Periodic contribution
- Yes (€ 185.00 per month)
- Reserve fund present
- Yes
- Maintenance plan
- Yes
- Building insurance
- Yes
Photos 36
© 2001-2025 funda



































