This house on Funda: https://www.funda.nl/en/detail/koop/haren-gr/huis-heesterlaan-5/43108393/

Description
Ben je op zoek naar een ruime, perfect afgewerkte eengezinswoning op een fijne locatie in Haren?
Dit huis is instapklaar en volledig toekomstbestendig! De woning is volledig geïsoleerd, heeft 9 zonnepanelen en een energielabel A.
De woning beschikt over een diepe voor- en een zonnige achtertuin op het zuiden. De besloten achtertuin grenst aan een ideale parkeerplaats (alleen voor de directe bewoners), waardoor de auto dicht bij huis geparkeerd kan worden en de vrijstaande houten berging gemakkelijk achterom bereikbaar is.
De ligging in de buurt is ideaal: de straat is groen en je geniet aan de voorzijde van een vrij zicht. Essentiële voorzieningen zoals het winkelcentrum aan de Anjerlaan, diverse (basis)scholen, sportverenigingen en natuurgebied de Oosterpolder zijn op loopafstand.
Het huis is modern en in lichte kleurstellingen afgewerkt, met uitstekend onderhoud. De woning is over de gehele breedte uitgebouwd, wat heeft geresulteerd in een indrukwekkende, royale woonkamer met open keuken van maar liefst circa 50 m².
De moderne keuken is van alle luxe voorzien: ingebouwde koelkast, vriezer, oven, magnetron, 5-pits gaskookplaat, afzuigkap, een composiet aanrechtblad én een Quooker. De gehele begane grond is voorzien van een sfeervolle geoliede eikenhouten planken vloer.
Een extra pluspunt is de aangebouwde bijkeuken met tuindeur, ideaal voor extra witgoed.
De indeling van het huis is als volgt:
Begane grond:
Hal/entree, garderobe, meterkast, L-vormige woonkamer met open keuken (samen ca. 50 m²), bijkeuken met tuindeur. Tussenhal met toilet, trapopgang en een royale provisiekast vanuit de woonkamer.
1e verdieping:
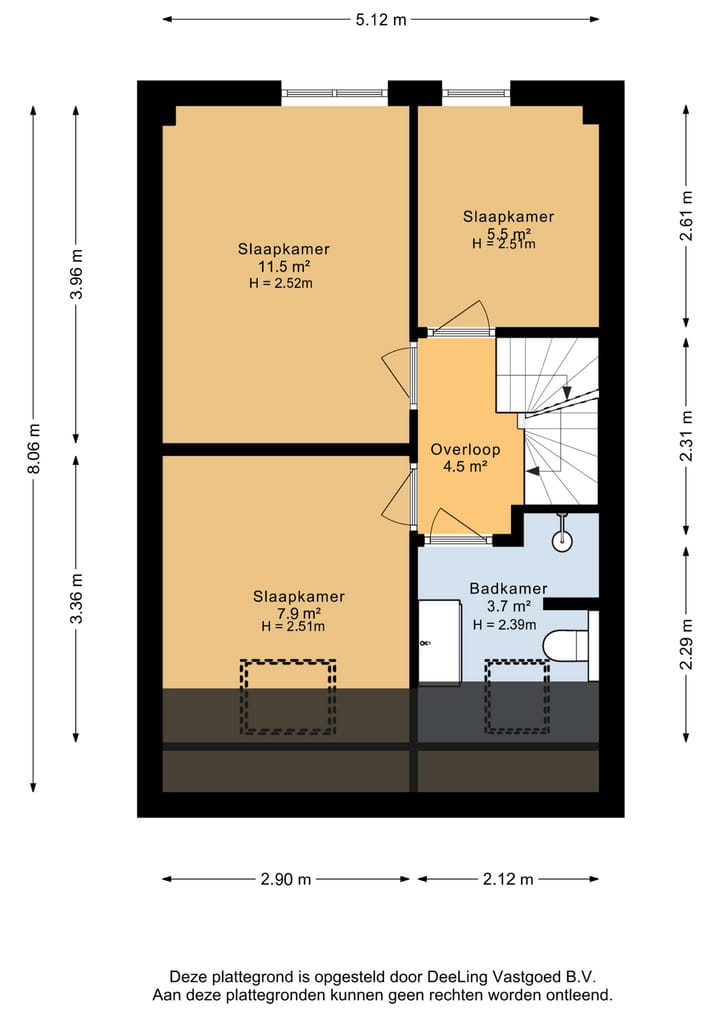
Overloop, 3 slaapkamers (ca. 12 m², 10 m² en 6 m²). Moderne badkamer met inloopdouche, wastafelmeubel, hangcloset en dakraam.
2e verdieping:
Overloop met was-/stookruimte en een ruime 4e slaapkamer van circa 12 m² met twee dakramen en slimme kastruimte achter de knieschotten. Via de 2e verdieping is de vliering bereikbaar met veel opbergruimte.
Kenmerken:
• Woonoppervlakte: 113 m²
• Perceeloppervlakte: 162 m²
• Bouwjaar: 1985
• Energielabel: A
Bijzonderheden:
• Uitgebouwde tussenwoning met achtertuin op het zuiden;
• Royale woonkamer met open keuken;
• 4 slaapkamers;
• Energielabel A en 9 zonnepanelen aanwezig (zeer lage energielasten!);
• Voorzien van nieuwe kozijnen met HR+++ beglazing (2022) Slimme thermostaat (2022);
• Volledig geïsoleerd (vloer, muur, dak en dubbel glas);
• Op korte afstand van winkelcentrum Anjerplein;
• Op korte afstand van het NS-station Haren;
• Achter de woning is een besloten parkeerplaats gelegen, alleen voor de directe bewoners;
• Vrijstaande houten berging;
• CV ketel Atag bouwjaar 2024;
• Bekijk alvast de woningvlog voor een eerste indruk van de binnenkant!
Features
Transfer of ownership
- Last asking price
- € 439,000 kosten koper
- Asking price per m²
- € 3,885
- Status
- Sold
Construction
- Kind of house
- Single-family home, row house
- Building type
- Resale property
- Year of construction
- 1985
- Type of roof
- Gable roof covered with roof tiles
Surface areas and volume
- Areas
- Living area
- 113 m²
- Other space inside the building
- 4 m²
- External storage space
- 7 m²
- Plot size
- 179 m²
- Volume in cubic meters
- 411 m³
Layout
- Number of rooms
- 5 rooms (4 bedrooms)
- Number of bath rooms
- 1 bathroom and 1 separate toilet
- Bathroom facilities
- Shower, toilet, and washstand
- Number of stories
- 3 stories
- Facilities
- Skylight, mechanical ventilation, and solar panels
Energy
- Energy label
- A
- Insulation
- Double glazing
- Heating
- CH boiler
- Hot water
- CH boiler
- CH boiler
- ATAG (gas-fired combination boiler from 2024, in ownership)
Cadastral data
- HAREN C 3376
- Cadastral map
- Area
- 162 m²
- Ownership situation
- Full ownership
- HAREN C 3575
- Cadastral map
- Area
- 17 m²
- Ownership situation
- Full ownership
Exterior space
- Location
- Alongside a quiet road and in residential district
- Garden
- Back garden and front garden
- Back garden
- 63 m² (11.50 metre deep and 5.50 metre wide)
- Garden location
- Located at the southeast with rear access
Parking
- Type of parking facilities
- Public parking
Photos 49
© 2001-2025 funda
















































