This house on Funda: https://www.funda.nl/en/detail/koop/hillegom/huis-van-den-endelaan-41/43279308/

Van den Endelaan 412182 ES HillegomLeidsestraat
€ 1,800,000 k.k.
Description
ENGLISH TEXT BELOW
Landhuis “Beekhoeve” – karakteristieke rietgedekte villa met garage
Deze charmante villa ligt op een rustige locatie aan een sloot en is bereikbaar via een afgesloten, op afstand bedienbaar sierhek en een verharde oprijlaan.
De trap en zowel de eerste als de tweede verdieping zijn recent volledig gerenoveerd, uitgevoerd onder architectuur en met gebruik van hoogwaardige materialen.
Begane grond;
Via de overdekte entree bereikt u de ruime hal, voorzien van een gastentoilet en meterkast. Vanuit de hal is toegang tot de ruime woonkamer met openhaard en openslaande deuren naar het zonnige terras. De hal en woonkamer zijn afgewerkt met een eikenhouten visgraatvloer. Aan de achterzijde bevindt zich de keuken in hoekopstelling met diverse Miele-inbouwapparatuur.
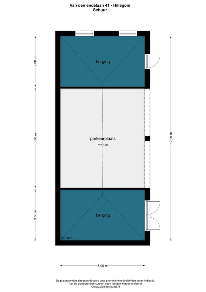
Achter de keuken zit de bijkeuken, ingericht met extra kastruimte, een tweede keukenopstelling en aansluitingen voor wasapparatuur. Vanuit hier is toegang tot zowel de voor- als achtertuin. De riante kelder is uitstekend geschikt als provisieruimte of wijnkelder. De bijkeuken biedt tevens toegang tot de aangebouwde garage met vliering en kantoorruimte. Naast de woning zit een carport met ruimte voor twee auto's en elektrapunten voor opladen. Ook zijn er twee schuren aanwezig bij de carports.
Eerste verdieping;
Via de trap bereikt u de overloop. De trap en de volledige eerste verdieping zijn recent volledig gerenoveerd, uitgevoerd onder architectuur en met gebruik van hoogwaardige materialen. Via de royale overloop heeft u toegang tot alle vertrekken op deze etage. Hier bevinden zich een separaat toilet, een zeer luxe badkamer en drie slaapkamers in verschillende afmetingen, 2 kamers zijn voorzien van diepe kasten en dakkapellen. Eén slaapkamer heeft toegang tot het balkon.
Tweede verdieping;
Via de vaste trap bereikt u de zolderverdieping. Ook de volledige tweede verdieping is recent gerenoveerd onder architectuur en met hoogwaardige materialen, geheel in lijn met de afwerking van de eerste verdieping. Er is een en-suite badkamer en een separaat toilet aanwezig. In het achterste deel bevindt zich een vierde ruime slaapkamer met bergruimte.
Tuin;
De fraai aangelegde tuin grenst aan een sloot en beschikt over een eigen aanlegsteiger. De toegang verloopt via een afsluitbaar sierhek met intercom.
Ligging;
De villa ligt beschut en biedt vrij uitzicht over de achterliggende bollenvelden. Tegelijkertijd zijn het strand, de duinen, het centrum van Hillegom en diverse uitvalswegen snel bereikbaar.
Bijzonderheden:
- Woonoppervlakte 200 m2;
- voorzien van kunststof kozijnen met HR++ glas;
- garage;
- carport voor 2 auto's en 2 buitenschuren;
- ruim parkeergelegenheid op eigen terrein.
- Energielabel D;
- Compleet nieuw en geïsoleerd rieten dak, in 2022 geplaatst met 5 nieuwe VELUX ramen;
- Rieten dak wordt jaarlijks onderhouden door een rietdekkersbedrijf;
- Sproeisysteem aanwezig over de gehele tuin, voorzien van een waterpomp;
- Tuin wordt jaarlijks onderhouden door een hoveniersbedrijf;
- Modern ventilatiesysteem op 1e en 2e verdieping;
- Hybride CV-ketel uit 2023;
- Vloerisolatie op begane grond;
- Vloerverwarming in de keuken;
- Vloerisolatie en vloerverwarming met zoneregeling per kamer op 1e en 2e verdieping;
- 4 airco units voor de 4 slaapkamers, voor zowel verwarmen als verkoelen;
- Oplevering in overleg.
De op deze website getoonde vrijblijvende informatie is met zorg door ons samengesteld op basis van gegevens van de verkoper en/of derden. Wij staan niet in voor de juistheid of volledigheid daarvan. Wij adviseren je om contact met ons op te nemen bij interesse in een van onze woningen of je door een eigen deskundige te laten bijstaan.
***ENGLISH****
Country House “Beekhoeve” – Characteristic Thatch-Roofed Villa with Garage
This charming villa is situated in a peaceful location along a waterway and is accessed via a secured, remote-controlled ornamental gate and a paved driveway.
The staircase, as well as the first and second floors, have recently been fully renovated under architectural supervision and with the use of high-quality materials.
Ground floor
Through the covered entrance, you enter the spacious hallway equipped with a guest toilet and meter cupboard. From the hallway there is access to the generous living room with fireplace and French doors leading to the sunny terrace. Both the hallway and living room feature an oak herringbone floor. At the rear, you will find the kitchen in a corner layout, equipped with various Miele built-in appliances.
Behind the kitchen is the utility room, fitted with additional cabinets, a second kitchen setup and connections for laundry equipment. From here, there is access to both the front and rear garden. The spacious cellar is perfectly suited for storage or as a wine cellar. The utility room also provides access to the attached garage with loft and office space. Next to the house is a carport with space for two cars and electrical charging points. There are also two storage sheds next to the carports.
First floor
The staircase leads to the landing. The staircase and the entire first floor have recently been fully renovated under architectural supervision and with high-end materials. The spacious landing provides access to all rooms on this floor. Here you will find a separate toilet, a very luxurious bathroom and three bedrooms in various sizes. Two bedrooms feature deep built-in wardrobes and dormer windows. One bedroom has access to the balcony.
Second floor
A fixed staircase leads to the attic floor. This entire level has also been recently renovated under architectural supervision and with premium materials, fully matching the finish of the first floor. There is an en-suite bathroom and a separate toilet. At the rear is a fourth spacious bedroom with storage space.
Garden
The beautifully landscaped garden borders a waterway and features a private landing dock. Access is through a secure ornamental gate with intercom.
Location
The villa offers privacy and unobstructed views over the surrounding flower fields. Despite its quiet setting, the beach, dunes, Hillegom town centre and various main roads are all within quick reach.
Details:
- Living area: 200 m²
- Fitted with PVC window frames and HR++ glass
- Garage
- Carport for 2 cars and 2 outdoor storage sheds
- Ample private parking
- Energy label: D
- Completely new insulated thatched roof installed in 2022, including 5 new VELUX windows
- Annual maintenance of thatched roof by a professional thatching company
- Irrigation system throughout the entire garden, equipped with a water pump
- Garden maintained annually by a landscaping company
- Modern ventilation system on the 1st and 2nd floors
- Hybrid central heating system (2023)
- Floor insulation on the ground floor
- Underfloor heating in the kitchen
- Floor insulation and underfloor heating with solar control per room on 1st and 2nd floors
- 4 air conditioning units in all bedrooms, suitable for both heating and cooling
- Delivery in consultation
The non-binding information displayed on this website has been compiled with care based on data provided by the seller and/or third parties. We do not guarantee its accuracy or completeness. We recommend contacting us if you are interested in one of our properties or seeking advice from your own expert advisor.
Features
Transfer of ownership
- Listed since
- Acceptance
- Available in consultation
- Asking price
- € 1,800,000 kosten koper
- Asking price per m²
- € 9,000
- Status
- Available
Construction
- Kind of house
- Villa, detached residential property
- Building type
- Resale property
- Year of construction
- 1950
- Type of roof
- Combination roof covered with cane
Surface areas and volume
- Areas
- Living area
- 200 m²
- Other space inside the building
- 67 m²
- Exterior space attached to the building
- 68 m²
- External storage space
- 61 m²
- Plot size
- 2,210 m²
- Volume in cubic meters
- 1,031 m³
Layout
- Number of rooms
- 5 rooms (4 bedrooms)
- Number of bath rooms
- 2 bathrooms and 3 separate toilets
- Bathroom facilities
- Double sink, 2 walk-in showers, bath, underfloor heating, 2 washstands, and sink
- Number of stories
- 4 stories
- Facilities
- Alarm installation, outdoor awning, mechanical ventilation, and flue
Energy
- Energy label
- D
- Insulation
- Double glazing
- Heating
- CH boiler, fireplace and partial floor heating
- Hot water
- Electrical boiler
- CH boiler
- Vaillant (gas-fired from 2024, in ownership)
Cadastral data
- HILLEGOM D 3439
- Cadastral map
- Area
- 2,210 m²
- Ownership situation
- Full ownership
Exterior space
- Location
- Alongside a quiet road, along waterway, alongside waterfront, rural and unobstructed view
- Garden
- Surrounded by garden
- Balcony/roof terrace
- Balcony present
Garage
- Type of garage
- Attached brick garage
- Capacity
- 1 car
- Facilities
- Electricity
- Insulation
- Roof insulation
Parking
- Type of parking facilities
- Parking on private property and public parking
Photos 44
© 2001-2025 funda











































