This house on Funda: https://www.funda.nl/en/detail/koop/hilversum/huis-diependaalselaan-187/43703959/

Description
Deze volledig GEMODERNISEERDE UITGEBOUWDE TUSSENWONING met heerlijke ZONNIGE ruime TUIN en ROYALE
BERGING met achterom is gelegen in het geliefde Hilversum-Zuid aan een doorgaande weg. Op loopafstand zijn de
winkels aan de Gijsbrecht van Amstelstraat te vinden maar ook de fraaie Hoorneboegse heide. Op fietsafstand zijn het gezellige centrum van Hilversum bereikbaar evenals, internationale (basis) scholen, kinderopvang en NS treinstation Hilversum Centraal. Met de auto ben je in no-time op de A27 richting Utrecht of de A1 richting Amsterdam.
I N D E L I N G
Entree/gang met trapkast en garderoberuimte, toegang tot de royale woon-/eetkamer die aan de achterzijde is uitgebouwd en voorzien van openslaande tuindeuren naar de prachtige, zonnige, diepe achtertuin. De half open moderne keuken met veel kastruimte is voorzien van diverse (inbouw)apparatuur waaronder een Amerikaanse koelkast, vaatwasser, magnetron en 6 pits RVS fornuis/oven. Het geheel is afgewerkt met een granieten aanrechtblad.
Tot slot is er nog een tussenhal met voorraadkast, afsluitbare wasmachine-/droger ruimte en modern toilet met fonteintje.
Op de verdieping biedt de ruime overloop toegang tot 2 ruime kamers waarvan één ingebouwde schuifwandkast, de moderne badkamer heeft een inloopdouche, wastafelmeubel en 2e toilet. De ruime overloop op deze verdieping biedt bovendien ruimte aan een grote werkplek!
Een vaste trap brengt ons naar de zolderverdieping, hier bevindt zich een 3e (kinder)slaapkamer met dubbele Velux dakramen.
T U I N / B E R G I N G e n A C H T E R O M
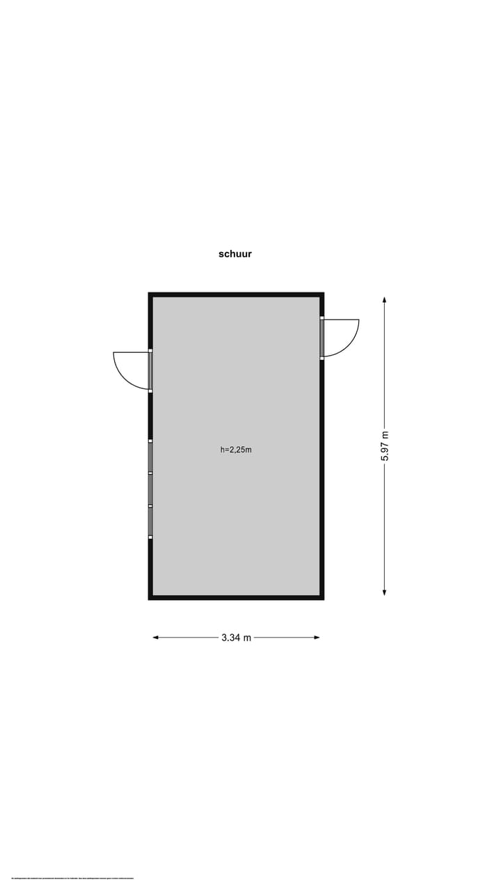
De tuin aan de voorzijde van de woning biedt voldoende afstand tot de stoep en de straat, de achtertuin is zeer ruim bemeten, rustig en goed op de zon (zuid) gelegen. Het terras aansluitend aan de openslaande deuren biedt voldoende plek voor een grote eettafel en biedt fraai zicht over het grasveld maar ook de planten/struiken in de tuin. Achterin staat over de geheel breedte een grote schuur (19m2) met elektra en achterom, hier kan indien gewenst een kleinere berging en een werkkamer worden gecreëerd.
O M G E V I N G
Zoals gezegd is de woning gelegen aan een doorgaande weg in het geliefde Hilversum Zuid. Hiervandaan is het 5 minuten lopen naar de winkels op de Gijsbrecht van Amstelstraat of de andere kant op richting de Hoorneboegse heide. Sportschool Van Hellemond, internationale (basis)scholen, centrum, treinstation en uitvalswegen zijn eveneens allemaal binnen korte afstand te vinden, ideaal dus!
B I J Z O N D E R H E D E N
- Uitgebouwde middenwoning;
- Moderne keuken;
- Openslaande tuindeuren;
- 3 slaapkamers;
- Moderne badkamer;
- Royale en rustig gelegen tuin op het zuiden;
- Grote berging (19m2) evt. deels om te bouwen naar werkkamer;
- Goed onderhouden en netjes afgewerkt;
- Airconditioning op de verdieping;
- Dichtbij alle denkbare voorzieningen.
- Woonoppervlakte 105m2 incl. zolder
- Energielabel C.
Features
Transfer of ownership
- Last asking price
- € 569,000 kosten koper
- Asking price per m²
- € 5,419
- Status
- Sold
Construction
- Kind of house
- Single-family home, row house
- Building type
- Resale property
- Year of construction
- 1925
- Type of roof
- Gable roof covered with roof tiles
Surface areas and volume
- Areas
- Living area
- 105 m²
- External storage space
- 20 m²
- Plot size
- 221 m²
- Volume in cubic meters
- 359 m³
Layout
- Number of rooms
- 5 rooms (3 bedrooms)
- Number of bath rooms
- 1 bathroom and 1 separate toilet
- Bathroom facilities
- Walk-in shower, toilet, and washstand
- Number of stories
- 2 stories and an attic
Energy
- Energy label
- C
- Insulation
- Roof insulation and double glazing
- Heating
- CH boiler
- Hot water
- CH boiler
- CH boiler
- Remeha (gas-fired combination boiler from 2012, in ownership)
Cadastral data
- HILVERSUM L 82
- Cadastral map
- Area
- 221 m²
- Ownership situation
- Full ownership
Exterior space
- Garden
- Back garden and front garden
- Back garden
- 90 m² (15.00 metre deep and 6.00 metre wide)
- Garden location
- Located at the south with rear access
Storage space
- Shed / storage
- Detached brick storage
- Facilities
- Electricity
Photos 26
© 2001-2025 funda

























