
Description
Unieke Bouwkavels te Koop in het Hart van Hoogeveen!
Droom jij van een prachtige 2-onder-1-kap woning in een bruisende omgeving? Dan is dit jouw kans! In het centrum van Hoogeveen, aan de Alteveerstraat, bieden wij twee unieke bouwkavels aan. Hier woon je op loopafstand van alle voorzieningen zoals winkels, supermarkten, scholen en gezellige restaurants. Een perfecte locatie voor wie van gemak en comfort houdt.
De Bouwkavels:
Alteveerstraat 132
• Grootte: 328 m²
• Koopsom: € 149.000,- exclusief 21% BTW
Alteveerstraat 132a
• Grootte: 286 m²
• Koopsom: € 129.000,- exclusief 21% BTW
Je kunt deze kavels afzonderlijk kopen, maar samenvoegen tot één royale bouwkavel is ook een optie. We zijn op zoek naar één of twee kopers die dit avontuur willen aangaan. Hierbij heb je de vrijheid om je eigen aannemer te kiezen en je droomwoning te realiseren.
Wat Maakt Deze Kavels Bijzonder?
• Uitstekende Ligging: Op loopafstand van het centrum van Hoogeveen.
• Voorzieningen in de Buurt: Winkels, supermarkten, scholen, en restaurants.
• Vrijheid in Bouw: Zelf je aannemer kiezen.
• Positieve Conceptaanvraag: Goedkeuring van Gemeente Hoogeveen.
• Inclusief Onderzoeken: Geluidsonderzoek, bodemrapport, en sonderingsonderzoek zijn al uitgevoerd.
Compleet Pakket:
De koopsommen zijn exclusief 21% BTW, echter de verkoper neemt de volgende kosten voor zijn rekening: notariskosten, kadasterkosten, omgevingsvergunning en architect kosten is. De projectnotaris is notariskantoor Stotijn in De Wijk, deze is door verkoper bepaald.
Als koper ben je verantwoordelijk voor de volgende kosten:
• Eventuele meerkosten voor wijziging van het huidige plan aan architect kosten
• Notariskosten voor hypotheekakte
• Hypotheekadvieskosten
• Eventuele overige financieringskosten
• 21% BTW over de koopsom, welke bij de notaris wordt verrekend
• Aansluitkosten (bijvoorbeeld elektra, water, glasvezel, riool en kabel) vanaf de openbare weg naar de kavels
• Bouwkosten van de woning
Indeling van de Woning:
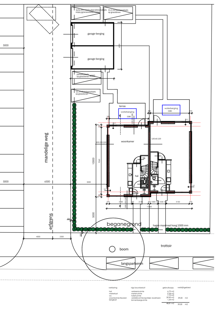
Stel je voor: een charmante 2-onder-1-kap woning met volop ruimte en comfort. De woningen hebben een ruim woonoppervlak, een eigen garage en twee parkeerplaatsen. De indeling is als volgt:
• Begane Grond: Een stijlvolle entree met een toiletruimte, meterkast, garderobe en trapopgang. De lichte woonkamer heeft een schuifpui en een aparte tuindeur, en de keuken bevindt zich aan de voorzijde van de woning.
• Eerste Verdieping: Een overloop met separaat toilet, een badkamer met ruimte voor een inloopdouche en wastafel, en drie ruime slaapkamers (14 m², 13 m² en 8 m²).
• Tweede Verdieping: Een via vaste trap bereikbare bergzolder met mogelijkheden voor een extra hobbykamer.
• Tuin: De voortuin krijgt een sierlijke inrichting met maximaal 1 meter hoge hagen. De achtertuin ligt op het westen en biedt volop zon, samen met twee eigen parkeerplaatsen en een garage.
Samen Werken aan Jouw Droomwoning:
Bij aankoop van deze kavels word je samen met je buren eigenaar van een mandelige weg van circa 80 m², met een wederzijds recht van overpad. Dit wordt vastgelegd in de akte bij de notaris.
Ben jij geïnteresseerd in deze unieke kans om jouw droomwoning te bouwen op een toplocatie? Neem dan contact met ons op en wij helpen je graag verder
Features
Transfer of ownership
- Listed since
- Acceptance
- Available in consultation
- Asking price
- € 129,000 vrij op naam
- Status
- Under offer
Construction
- Type of property
- Building plot
- Ready for construction
- No
Layout
- Plot size
- 286 m²
Cadastral data
- HOOGEVEEN O 9337
- Cadastral map
- Area
- 286 m² (part of parcel)
- Ownership situation
- Full ownership
Exterior space
- Location
- In centre
Photos 9
© 2001-2025 funda








