This house on Funda: https://www.funda.nl/en/detail/koop/hoorn-nh/appartement-houtzaagmolen-100/89586115/

Houtzaagmolen 1001622 HK Hoorn (NH)Grote Waal - Buurt 13 06
€ 325,000 k.k.
Eye-catcherZeer centraal gelegen benedenwoning met garage!
Description
Houtzaagmolen 100 te Hoorn
Zeer centraal gelegen benedenwoning met garage.
Een ideaal appartement voor starters of degene die kleiner wil gaan wonen met een tuin en parkeren op eigen terrein.
De woning heeft een slaapkamer met een en-suite badkamer aan de voorzijde. De woonkamer met open keuken bevindt zich aan de achterzijde met een ruime onderhoudsvriendelijke tuin gelegen op het zonnige zuiden.
De eigen garage waar eventueel uw auto in geparkeerd kan worden is zowel vanaf de straat- als vanuit de tuinzijde te bereiken.
De woning is strategisch gelegen nabij winkelcentrum 'De Grote Beer', uitvalsweg A7, op fietsafstand van de gezellige binnenstad van Hoorn en op loopafstand van het nieuwe stadsstrand.
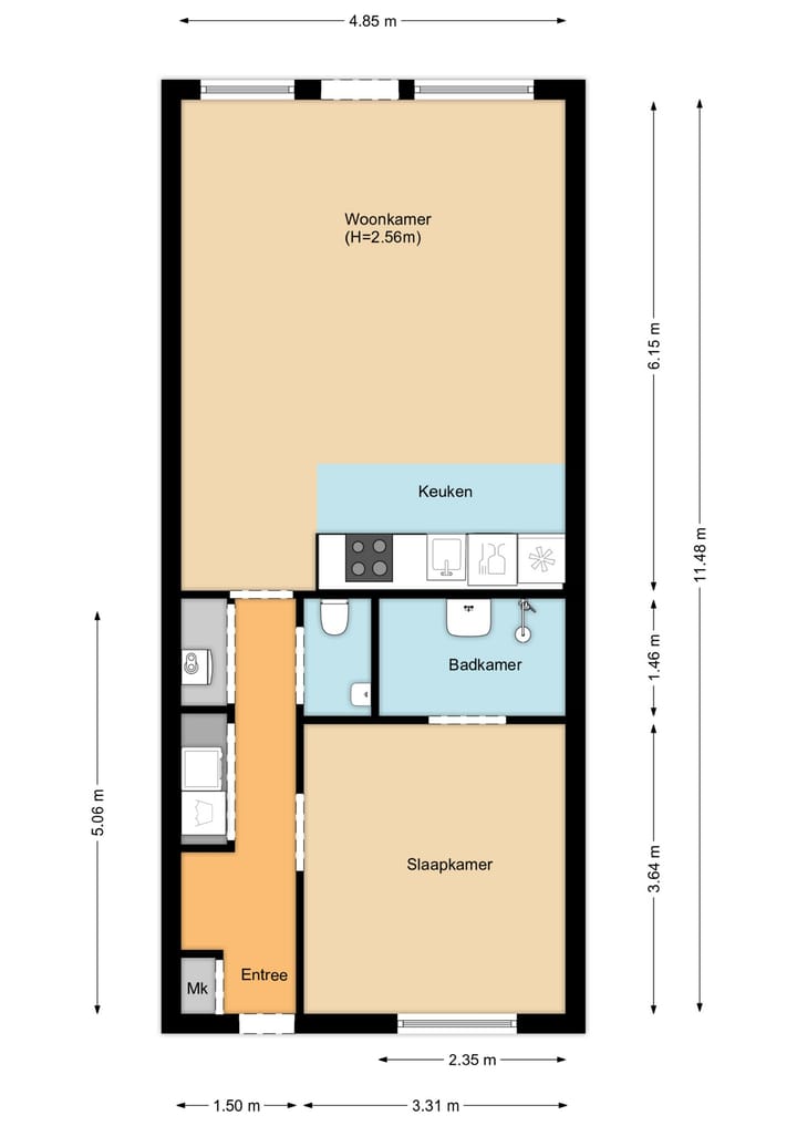
Indeling van de woning:
Entree, slaapkamer aan de rechterzijde met aansluitend de badkamer voorzien van een douche, wastafelmeubel en een wasmachine aansluiting, toilet, entree naar de woonkamer/ keuken voorzien van een koelkast met vriesvak, vaatwasser, combi magnetron, 4-pits gasfornuis en afzuigkap.
Bijzonderheden:
-De kans met name voor starters
-Energielabel A
-Nabij het stadstrand
-Winkelcentrum op loopafstand
-Strategisch gelegen
-De niet-bewoningsclausule is hier van toepassing
-Het betreft een bieden vanaf prijs.
Features
Transfer of ownership
- Listed since
- Acceptance
- Available in consultation
- Asking price
- € 325,000 kosten koper
- Asking price per m²
- € 5,804
- Status
- Available
- VVE (Owners Association) contribution
- € 90.00 per month
Construction
- Type apartment
- Ground-floor apartment (apartment)
- Building type
- Resale property
- Year of construction
- 1979
- Type of roof
- Gable roof covered with roof tiles
Surface areas and volume
- Areas
- Living area
- 56 m²
- External storage space
- 15 m²
- Volume in cubic meters
- 146 m³
Layout
- Number of rooms
- 2 rooms (1 bedroom)
- Number of bath rooms
- 1 bathroom and 1 separate toilet
- Bathroom facilities
- Shower, sink, and washstand
- Number of stories
- 1 story
- Facilities
- Mechanical ventilation and passive ventilation system
- Located at
- Ground floor
Energy
- Energy label
- A
- Insulation
- Energy efficient window and insulated walls
- Heating
- CH boiler
- Hot water
- CH boiler
- CH boiler
- Gas-fired combination boiler, in ownership
Cadastral data
- HOORN C 1806
- Cadastral map
- Ownership situation
- Full ownership
- HOORN C 2491
- Cadastral map
- Ownership situation
- Full ownership
Exterior space
- Location
- Alongside a quiet road and in residential district
- Garden
- Back garden
- Back garden
- 65 m² (13.00 metre deep and 5.00 metre wide)
- Garden location
- Located at the south with rear access
Garage
- Type of garage
- Detached brick garage
- Capacity
- 1 car
- Facilities
- Electricity
Parking
- Type of parking facilities
- Parking on private property and public parking
VVE (Owners Association) checklist
- Registration with KvK
- Yes
- Annual meeting
- Yes
- Periodic contribution
- Yes (€ 90.00 per month)
- Reserve fund present
- Yes
- Maintenance plan
- Yes
- Building insurance
- Yes
Photos 35
Floorplans 2
© 2001-2025 funda




































