This house on Funda: https://www.funda.nl/en/detail/koop/hulsberg/huis-sportparklaan-11/43875374/

Description
Ruime 2-onder-1-kapwoning gelegen op een toplocatie in Hulsberg!
Ben jij op zoek naar een ruime gezinswoning met potentie om volledig naar eigen smaak te moderniseren? Deze goed onderhouden 2-onder-1-kapwoning ligt op een uitstekende locatie, op loopafstand van het goed ontwikkelde centrum van Hulsberg. Dit maakt het een ideaal project voor wie op zoek is naar een huis met karakter en potentie gelegen op de juiste locatie in Hulsberg.
INDELING:
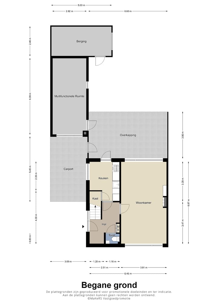
Begane grond
de hal entree met meterkast (slimme meter, 6 groepen en 1x aardlek) biedt toegang tot het toilet, de keuken en de woonkamer. Het toilet is geheel betegeld en ingericht met een staand closet en een fonteintje.
De woonkamer met laminaatvloer is daglicht-rijk te noemen door het doorzon-karakter en staat door de aanwezige buitendeur in direct contact met de achtertuin.
De keuken met PVC-vloer is een gesloten ruimte en is net zoals de woonkamer uitgerust met een buitendeur. Tevens is er toegang tot de trappenkast welke op zijn beurt weer toegang biedt tot de kruipruimte. De aanwezige keukeninstallatie is recht opgesteld met diverse inbouwapparatuur, wel te verstaan een afzuiging, een gaskookplaat, een koelkast (met vershoudzone), een combi-oven en een vaatwasser.
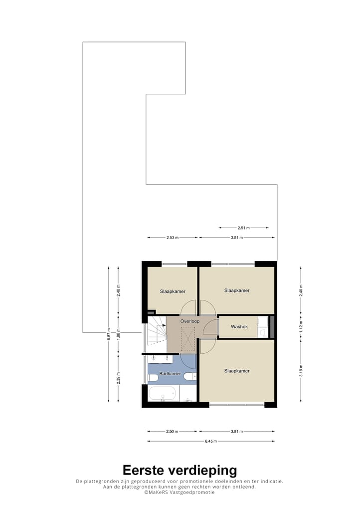
Eerste verdieping
de overloop met airco biedt toegang tot 3 slaapkamers, een waskamer en een badkamer, respectievelijk groot:
– slaapkamer 1: 3.16 x 3.81m, gelegen aan de voorzijde van de woning
– slaapkamer 2: 2.40 x 3.81m, gelegen aan de achterzijde van de woning
– slaapkamer 3: 2.40 x 2.40m, gelegen aan de achterzijde van de woning
– waskamer: 1.12 x 2.51, met aansluitpunten voor het witgoed
– geheel betegelde badkamer (2.39 x 2.50m) welke is ingedeeld met een ligbad, een douchecabine, een toilet, een bidet en een dubbele wastafel verwerkt in een meubel.
De gehele verdieping is (m.u.v. de badkamer) afgewerkt met laminaatvloer.
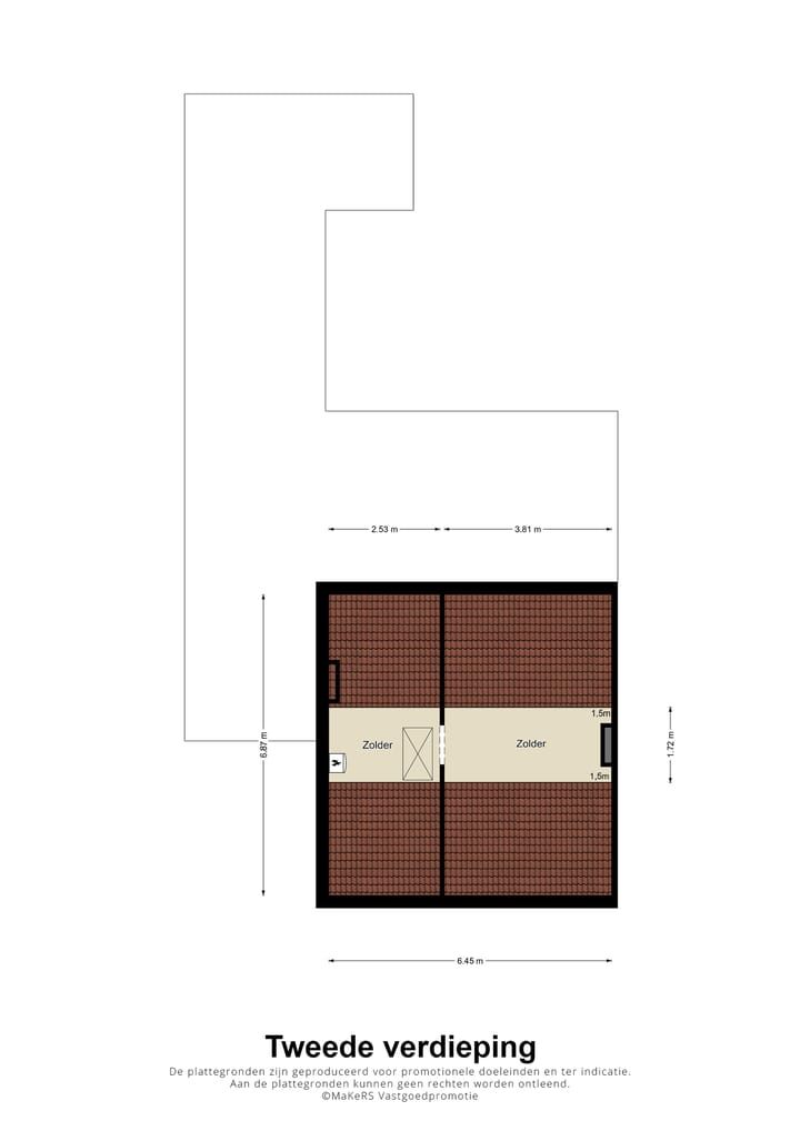
Zolder
middels een vlizotrap bereikbare bergzolder waar tevens de Cv-installatie is geplaatst.
Tuin
de achtertuin is mooi en praktisch te noemen. De tuin is gesitueerd op het oosten, onderhoudsvriendelijk aangelegd en biedt een ruime buitenberging voor fietsen of tuingereedschap. Tevens is een deel van het terras overdekt en afsluitbaar waardoor het het hele jaar door mogelijk is buiten te vertoeven. Vanuit het straatbeeld is de achtertuin ook zelfstandig achterom bereikbaar.
Garage
de voormalige garage is volledig omgeturnd tot extra woonruimte. De ruimte is volledig afgewerkt, geïsoleerd en toegankelijk middels de voorgelegen oprit met carport.
BIJZONDERHEDEN
– het pand is gelegen uiterst gewilde locatie
– het pand is v.v. een kruipruimte
– het pand wordt gekenmerkt door de vrije ligging aan de voorzijde
– het pand is gelegen op een perceel met een oppervlakte van 246m2
– het pand is v.v. een woonoppervlakte van ca. 89m2
– het pand is voorzien van betonnen- en houten verdiepingsvloeren
– het pand is uitgerust met kunststof kozijnen met HR-beglazing
– het pand is uitgerust met rolluiken
– het pand is gelegen nabij het goed ontwikkelde centrum van Hulsberg
– door de aanwezigheid van uitvalswegen in de directe nabijheid zijn onder andere Heerlen en Maastricht in circa 15 (auto)minuten te bereiken
– Cv-installatie, merk: Intergas, bj. 2018 (huur)
INTERESSE? MAAK DAN EEN AFSPRAAK MET WAGEMANS WONEN VOOR EEN BEZICHTIGING OF VRIJBLIJVEND FINANCIEEL ADVIES
– Uitdrukkelijk wordt gesteld dat een koopovereenkomst met betrekking tot deze onroerende zaak eerst dan tot stand is gekomen nadat alle partijen de koopovereenkomst hebben getekend, de zogenaamde “schriftelijkheidsvereiste” is in dezen van toepassing.
– De waarborgsom/bankgarantie bedraagt 10% van de koopsom en is een uitdrukkelijk onderdeel van de koopovereenkomst. De koper dient deze binnen 3 dagen ná het vervallen van de eventuele ontbindende voorwaarden bij de transporterende notaris te deponeren.
– Koper is gerechtigd voor zijn rekening een bouwkundige keuring te (laten) verrichten, dan wel adviseurs te raadplegen teneinde een goed inzicht te verkrijgen over de staat en het gebruik van deze onroerende zaak.
– Voor het optimaal behartigen van diens belangen adviseert Wagemans Wonen geïnteresseerden en kopers om een professionele aankoopmakelaar in te schakelen.
– De Meetinstructie is gebaseerd op de NEN2580. De Meetinstructie is bedoeld om een meer eenduidige manier van meten toe te passen voor het geven van een indicatie van de gebruiksoppervlakte. De Meetinstructie sluit verschillen in meetuitkomsten niet volledig uit, door bijvoorbeeld interpretatieverschillen, afrondingen of beperkingen bij het uitvoeren van de meting.
Features
Transfer of ownership
- Last asking price
- € 325,000 kosten koper
- Asking price per m²
- € 3,652
- Status
- Sold
Construction
- Kind of house
- Single-family home, double house
- Building type
- Resale property
- Year of construction
- 1969
- Type of roof
- Gable roof covered with roof tiles
Surface areas and volume
- Areas
- Living area
- 89 m²
- Other space inside the building
- 11 m²
- Exterior space attached to the building
- 42 m²
- External storage space
- 31 m²
- Plot size
- 246 m²
- Volume in cubic meters
- 366 m³
Layout
- Number of rooms
- 5 rooms (3 bedrooms)
- Number of bath rooms
- 1 bathroom and 1 separate toilet
- Bathroom facilities
- Bidet, shower, double sink, bath, toilet, and washstand
- Number of stories
- 2 stories and an attic
- Facilities
- Outdoor awning, optical fibre, passive ventilation system, rolldown shutters, and TV via cable
Energy
- Energy label
- D
- Insulation
- Double glazing
- Heating
- CH boiler
- Hot water
- CH boiler
- CH boiler
- Intergas (gas-fired combination boiler from 2018, to rent)
Cadastral data
- HULSBERG E 342
- Cadastral map
- Area
- 246 m²
- Ownership situation
- Full ownership
Exterior space
- Location
- Alongside a quiet road and in residential district
- Garden
- Back garden and front garden
- Back garden
- 99 m² (11.00 metre deep and 9.00 metre wide)
- Garden location
- Located at the east with rear access
Storage space
- Shed / storage
- Detached brick storage
- Facilities
- Electricity
Garage
- Type of garage
- Carport and detached brick garage
- Capacity
- 1 car
- Facilities
- Electricity
- Insulation
- Roof insulation and insulated walls
Parking
- Type of parking facilities
- Parking on private property and public parking
Photos 34
© 2001-2025 funda

































