
Stuurboordstraat 281433 SC KudelstaartKudelstaart
€ 449,000 k.k.
Description
The location is ideal: a short distance from the village center of Kudelstaart with shops, restaurants, sports clubs, and the marina on the Westeinderplassen. Aalsmeer Center is only a 15-minute bike ride away. You can easily reach the surrounding cities via the A4, A5, A9, A44, N201, and N207.
Layout:
From the central hall on the ground floor with the mailboxes and intercom, you can reach the entrance of the apartment via the stairs.
First floor:
Hall with separate toilet and washbasin, bathroom with walk-in shower and sink, storage room with washing machine and dryer connections, and two bedrooms (one with air conditioning).
Second floor:
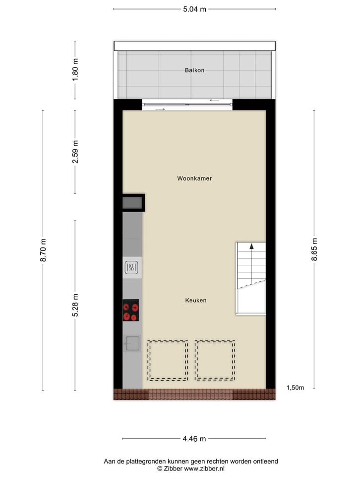
Spacious and bright living room with large Velux skylights, sliding doors to the balcony, and an open kitchen with various built-in appliances. The balcony offers unobstructed views and is wonderfully located on the southeast.
Details:
- Three-room maisonette (built in 2004)
- Bright living room with open kitchen and high ceiling
- Two bedrooms
- Sunny southeast-facing balcony
- Private (bicycle) storage room
- Energy label A
- Heat pump (2024) in living room and bedroom (3 split air conditioning)
- Possibility to install 4 solar panels
- Permission for additional skylights
- Homeowners' association contribution €147.11 per month
- Central heating boiler (2021)
- Convenient location near shops, sports facilities, and Westeinderplassen
Delivery in consultation
Features
Transfer of ownership
- Service charges
- € 147 per month
- Listed since
- Acceptance
- Available in consultation
- Asking price
- € 449,000 kosten koper
- Asking price per m²
- € 5,476
- Status
- Available
- VVE (Owners Association) contribution
- € 147.11 per month
Construction
- Type apartment
- Maisonnette (apartment)
- Building type
- Resale property
- Year of construction
- 2004
- Type of roof
- Gable roof covered with roof tiles
Surface areas and volume
- Areas
- Living area
- 82 m²
- Exterior space attached to the building
- 7 m²
- External storage space
- 6 m²
- Volume in cubic meters
- 355 m³
Layout
- Number of rooms
- 3 rooms (2 bedrooms)
- Number of stories
- 2 stories
- Facilities
- Air conditioning, skylight, mechanical ventilation, and sliding door
Energy
- Energy label
- A
- Heating
- CH boiler and heat pump
- Hot water
- CH boiler
- CH boiler
- Intergas Kombi HRE 36/30A (gas-fired from 2021, in ownership)
Cadastral data
- AALSMEER D 5522
- Cadastral map
- Ownership situation
- Full ownership
Exterior space
- Location
- Alongside park and alongside a quiet road
Storage space
- Shed / storage
- Detached wooden storage
- Facilities
- Electricity
Parking
- Type of parking facilities
- Public parking
VVE (Owners Association) checklist
- Registration with KvK
- Yes
- Annual meeting
- Yes
- Periodic contribution
- Yes (€ 147.11 per month)
- Reserve fund present
- Yes
- Maintenance plan
- Yes
- Building insurance
- Yes
Photos 38
© 2001-2025 funda





































