
Description
Wonen aan het water
Breekoever is een bijzonder nieuwbouwproject dat in drie fases wordt gerealiseerd. Met Breekoever3 wordt de laatste fase afgerond: een prachtig sluitstuk bestaande uit 8 royale herenhuizen en 10 levensloopbestendige woningen.
De woningen liggen in het gebied rondom de Kerkebreek, direct aan en bij het water. Hier komen eigentijdse woningen met een klassiek karakter, geïnspireerd op de historische Waterlandse bouwstijl en het dorpslint van Landsmeer. Iedere woning in Breekoever3 is uniek dankzij de variatie in gevelindelingen, kleuren, rabatdelen, makelaars en andere karakteristieke details.
Langs de fraai ingerichte kade geniet u straks van de levendigheid van wonen aan het water. Een plek waar bewoners elkaar ontmoeten, kinderen samen spelen in de natuurlijke speeltuin en waar u zelf tot rust komt met een kop koffie in de zon. Terwijl u uitkijkt op passerende sloepen en boten, kunt u er ook zelf voor kiezen het water op te gaan – misschien wel in uw eigen sloep.
De architectuur sluit naadloos aan bij de omgeving: rijkelijk gedetailleerde woningen die de sfeer van het oude Waterland ademen, maar dan in een hedendaagse uitvoering. Variatie binnen eenvoud, met oog voor klassieke details en een tijdloze uitstraling.
Dat is Breekoever3: de laatste fase van een uniek woonproject, en het kroonstuk van de buurt.
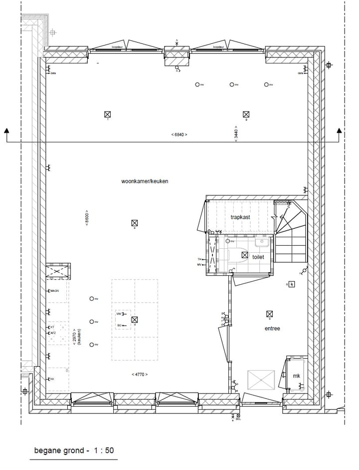
Herenhuis – Type A - bouwnummer 16
Aan de noord- en westzijde van Breekoever3 vindt u de statige herenhuizen van Type A. Vanuit de woonkamer en tuin kijkt u hier prachtig uit over het water van de Kerkebreek. Met een royaal woonoppervlak van ca. 158 m² en maar liefst 5 slaapkamers biedt deze woning volop ruimte voor het hele gezin.
De ligging van de tuin verschilt per bouwnummer:
- Bouwnummers 11 en 12: tuin op het oosten
- Bouwnummers 16, 17 en 18: tuin op het zuiden
Waar u ook kiest, u geniet altijd van veel ruimte en een heerlijke plek om buiten te leven.
Basisindeling:
- Beukmaat: 7,2 meter
- Ruime woonkamer met 4 openslaande deuren naar de tuin
- Open keuken aan de voorzijde van het huis
- Trapkast
- Toilet
- Drie slaapkamers op de eerste verdieping
- Badkamer met douche, ligbad en toilet
- Bergkast
- Twee slaapkamers op de zolderverdieping
- Techniekruimte met bodemwarmtepomp, warmte-terugwinventilatie, boiler en aansluiting voor wasmachine/droger
- Tuin met berging voorzien van sedumkruidendak
- Zonnepanelen
Optioneel:
- Achteruitbouw van 1,2 meter of 1,8 meter mogelijk (m.u.v. bouwnummer 12)
- Extra badkamer op de tweede verdieping
Features
Transfer of ownership
- Last asking price
- € 1,023,850 vrij op naam
- Asking price per m²
- € 6,480
- Status
- Sold
Construction
- Kind of house
- Single-family home, corner house
- Building type
- New property
- Year of construction
- 2026
- Type of roof
- Gable roof covered with roof tiles
Surface areas and volume
- Areas
- Living area
- 158 m²
- External storage space
- 5 m²
- Volume in cubic meters
- 413 m³
Layout
- Number of rooms
- 6 rooms (6 bedrooms)
- Number of bath rooms
- 1 bathroom and 1 separate toilet
- Bathroom facilities
- Shower, bath, toilet, and sink
- Number of stories
- 2 stories and an attic
Energy
- Energy label
- Insulation
- Completely insulated
- Heating
- Complete floor heating and heat pump
Exterior space
- Garden
- Back garden and front garden
- Back garden
- 59 m² (8.80 metre deep and 6.70 metre wide)
- Garden location
- Located at the south
Storage space
- Shed / storage
- Detached wooden storage
Photos 16
© 2001-2026 funda















