This house on Funda: https://www.funda.nl/en/detail/koop/leeuwarden/huis-emmakade-32/43182518/

Emmakade 328933 AS LeeuwardenOranjewijk
€ 675,000 k.k.
Eye-catcherPrachtig herenhuis met inpandige garage in de mooie Oranjewijk!
Description
Aan de zuidzijde van de Emmakade, met een prachtig uitzicht over het Nieuwe Kanaal en op loopafstand van de binnenstad van Leeuwarden, staat dit karakteristieke herenhuis met inpandige GARAGE en 4 slaapkamers. Het pand biedt een royaal woonoppervlak van 176 m², beschikt over drie nagenoeg recht opgetrokken verdiepingen en biedt bovendien de mogelijkheid om wonen en werken op een praktische manier te combineren.
Het herenhuis is gelegen aan de Emmakade. Dit deel van de stad is aangewezen als beschermd stadsgezicht. Vanuit hier zijn de historische grachten en het centrum van Leeuwarden eenvoudig te bereiken. Wonen aan de Emmakade is wonen op een gewilde, maar toch ook rustige woonlocatie, doordat er eigenlijk alleen bestemmingsverkeer rijdt. De rondweg is nabij evenals de Albert Heijn en overige voorzieningen.
INDELING
Begane grond:
Via de statige entree komt u in een hal die toegang geeft tot de trapopgang naar de verdiepingen, als ook tot de inpandige garage en achtergelegen slaapkamer met badkamer op de begane grond.
De garage is royaal opgezet (46,4 m²) en biedt niet alleen plaats voor een auto, maar ook volop bergruimte. Dankzij de eigen, dubbele toegangsdeur aan de voorzijde is de ruimte geschikt om te gebruiken als werkplek, praktijk of atelier.
Parkeren kan op de eigen oprit en voor de deur, dan met een parkeervergunning.
Aan de achterzijde, achter de garage, bevindt zich een slaapkamer en een badkamer. Deze badkamer is voorzien van een douche, wastafel en toilet. Vanuit de slaapkamer is er direct toegang tot de beschutte achtertuin, die voldoende privacy biedt en ruimte geeft om buiten te zitten. Naast de slaapkamer ligt een tussenhal met aansluitingen voor witgoed en extra bergruimte.
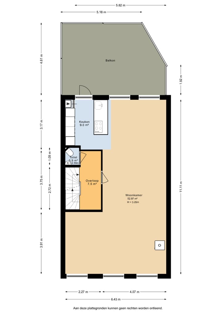
Eerste verdieping:
De eerste verdieping is de leefetage. Overloop met een toilet en trapopgang naar de 2e verdieping.
Aan de voorzijde ligt de woonkamer, die dankzij de grote raampartijen veel lichtinval heeft en uitzicht biedt over het water. De gashaard zorgt voor een sfeervol middelpunt in de ruimte. Aan de achterzijde bevindt zich de eethoek, die naadloos in verbinding staat met de open keuken, welke praktisch is ingedeeld met een vaste kastenwand en een schiereiland met kook- en spoelgedeelte. De keuken is compleet uitgerust met moderne inbouwapparatuur, waaronder een inductiekookplaat, combi oven/magnetron, stoomoven, koelkast, vriezer en vaatwasser. Vanuit de keuken is er toegang tot het zonnige dakterras op het zuiden, dat een fijn verlengstuk van de leefruimte is en voldoende plek biedt voor een zit- of eethoek in de buitenlucht.
Tweede verdieping:
Op de tweede verdieping bevinden zich drie slaapkamers van verschillende afmetingen. De grootste slaapkamer ligt aan de achterzijde. De andere twee slaapkamers liggen aan de voorzijde en bieden uitzicht over het Nieuwe Kanaal. De badkamer op deze verdieping is modern ingericht en uitgerust met een inloopdouche, wastafel met wastafelmeubel en toilet.
Goed om te weten:
- 176 m² woonoppervlakte
- geschikt voor wonen-werken
- ruime inpandige garage op de begane grond
- beschutte achtertuin én royaal dakterras op het zuiden
- 4 slaapkamers (waarvan één op de begane grond)
- recent buitenschilderwerk (2022)
- energielabel D
- aanvaarding op korte termijn mogelijk
Features
Transfer of ownership
- Listed since
- Acceptance
- Available in consultation
- Asking price
- € 675,000 kosten koper
- Asking price per m²
- € 3,835
- Status
- Available
Construction
- Year of construction
- Before 1906
- Kind of house
- Mansion, row house
- Building type
- Resale property
- Specific
- Protected townscape or village view (permit needed for alterations)
- Type of roof
- Combination roof
Surface areas and volume
- Areas
- Living area
- 176 m²
- Other space inside the building
- 29 m²
- Exterior space attached to the building
- 48 m²
- External storage space
- 169 m²
- Plot size
- 169 m²
- Volume in cubic meters
- 876 m³
Layout
- Number of rooms
- 6 rooms (4 bedrooms)
- Number of bath rooms
- 2 bathrooms and 1 separate toilet
- Bathroom facilities
- Shower, 2 toilets, 2 sinks, walk-in shower, and washstand
- Number of stories
- 3 stories
- Facilities
- Skylight, optical fibre, and TV via cable
Energy
- Energy label
- D
- Insulation
- Roof insulation and mostly double glazed
- Heating
- CH boiler and gas heater
- Hot water
- CH boiler and gas water heater
- CH boiler
- Nefit (gas-fired combination boiler from 2010, in ownership)
Cadastral data
- LEEUWARDEN G 6646
- Cadastral map
- Area
- 169 m²
- Ownership situation
- Full ownership
Exterior space
- Location
- Alongside waterfront, in residential district and unobstructed view
- Garden
- Back garden and front garden
- Back garden
- 35 m² (11.00 metre deep and 5.00 metre wide)
- Garden location
- Located at the south
- Balcony/roof terrace
- Roof terrace present
Parking
- Type of parking facilities
- Parking on private property and resident's parking permits
Photos 57
Floorplans 4
© 2001-2025 funda




























































