This house on Funda: https://www.funda.nl/en/detail/koop/leeuwarden/huis-honthorststraat-3/43056294/

Description
Op een rustige en kindvriendelijke locatie in Leeuwarden staat deze tussenwoning met verrassend veel ruimte en een fijne indeling. Ideaal voor starters of jonge gezinnen die op zoek zijn naar een betaalbare woning met karakter.
Indeling
Begane grond
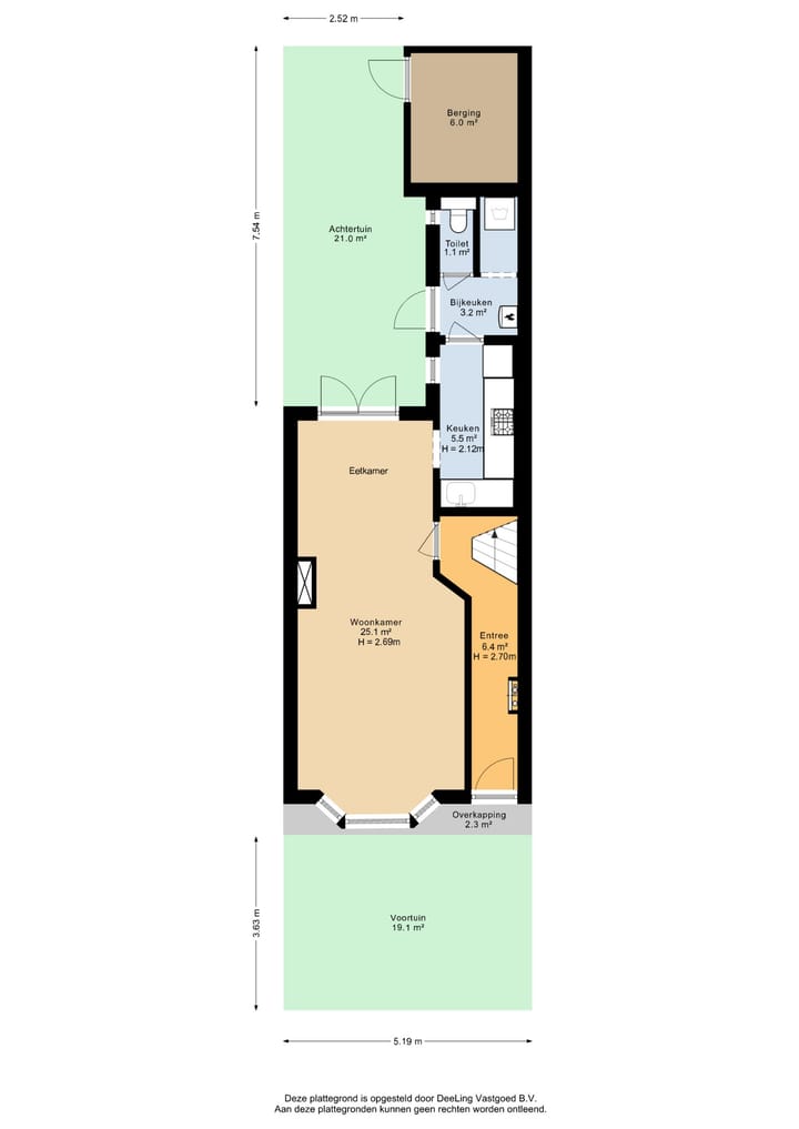
Via de hal met trapopgang betreed je de lichte woonkamer. De laminaatvloer en openslaande deuren naar de achtertuin zorgen voor veel natuurlijk licht.
Aan de achterzijde bevindt zich de open keuken, die circa 10 jaar geleden is geplaatst. Deze is voorzien van een kooktoestel, afzuigkap, oven en een koelkast/vriezer – alles wat je nodig hebt om direct aan de slag te kunnen in je keuken.
Bijkeuken met witgoedaansluiting en een toilet.
Achterin de tuin vind u een praktische berging voorzien van elektra, én een achterom – handig voor bijvoorbeeld de fiets of afvalcontainers.
Eerste verdieping
Op de eerste verdieping vind je twee slaapkamers, waarvan één toegankelijk vanuit de badkamer. En een ouder slaapkamer met fijne dakkapel. Daarnaast is er op de overloop een ruime kast voor extra opbergruimte.
De badkamer beschikt over een ligbad, aparte douche en een wastafel – ideaal voor mooie start van de dag.
Zolderverdieping
Via een vaste trap bereik je de zolderverdieping, deze is voorzien van dakisolatie. Kleine overloop. Ook is hier een derde slaapkamer gerealiseerd met een dakkapel uit 2012 – een heerlijke extra ruimte die gebruikt kan worden als slaapkamer, kantoor of hobbyruimte.
Bijzonderheden
Verwarming via een REMEHA cv-ketel (2012, huur via Energiewacht, €45,- p/m)
Achtertuin met berging en achterom
Nabij scholen, winkels en openbaar vervoer
Totale perceeloppervlakte 93 m² eigen grond
Een fijne, complete woning met volop mogelijkheden!
Benieuwd of dit uw nieuwe (t)huis wordt? Neem dan snel contact op voor een bezichtiging. Wacht niet te lang – woningen in deze prijsklasse zijn zó verkocht.
Features
Transfer of ownership
- Last asking price
- € 185,000 kosten koper
- Asking price per m²
- € 2,256
- Status
- Sold
Construction
- Kind of house
- Single-family home, row house
- Building type
- Resale property
- Year of construction
- 1932
- Type of roof
- Gable roof covered with roof tiles
Surface areas and volume
- Areas
- Living area
- 82 m²
- Other space inside the building
- 6 m²
- Exterior space attached to the building
- 2 m²
- Plot size
- 93 m²
- Volume in cubic meters
- 312 m³
Layout
- Number of rooms
- 4 rooms (3 bedrooms)
- Number of bath rooms
- 1 bathroom
- Bathroom facilities
- Shower, bath, and sink
- Number of stories
- 3 stories
- Facilities
- Passive ventilation system
Energy
- Energy label
- C
- Insulation
- Roof insulation, partly double glazed and insulated walls
- Heating
- CH boiler
- Hot water
- CH boiler
- CH boiler
- REMEHA (gas-fired combination boiler from 2012, to rent)
Cadastral data
- HUIZUM A 2269
- Cadastral map
- Area
- 93 m²
- Ownership situation
- Full ownership
Exterior space
- Location
- Alongside a quiet road and in residential district
- Garden
- Deck and front garden
- Deck
- 20 m² (4.00 metre deep and 5.00 metre wide)
- Garden location
- Located at the south with rear access
Storage space
- Shed / storage
- Detached wooden storage
- Facilities
- Electricity
Parking
- Type of parking facilities
- Public parking
Photos 41
© 2001-2025 funda








































