This house on Funda: https://www.funda.nl/en/detail/koop/leeuwarden/huis-kwelderstraat-52/43095178/

Description
Ruime en sfeervolle hoekwoning met garage op een fijne locatie in Nijlân. Ben je op zoek naar een comfortabele gezinswoning met veel licht, ruimte én een garage? Dan is deze hoekwoning aan de Kwelderstraat 52 zeker de moeite waard om te bekijken. Gelegen in een rustige woonwijk met veel groen, biedt deze woning extra privacy, een fijne tuin rondom én drie met mogelijkheid voor vier slaapkamers.
BEGANE GROND
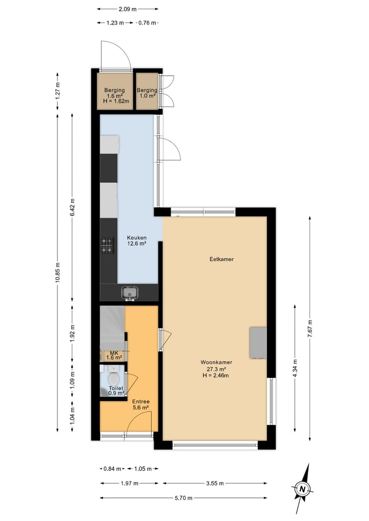
Via de eigen voortuin bereik je de voordeur. De entree komt uit in een lichte hal, waar zich het separate toilet bevindt. Vanuit hier stap je de royale doorzonwoonkamer binnen, die dankzij de grote raampartijen aan beide zijden baadt in natuurlijk licht. Voor en zijkant zijn voorzien van screens.
Aansluitend aan de woonkamer vind je de halfopen keuken, welke is doorgetrokken in de praktische bijkeuken. Deze ruimte is ideaal voor extra opslag of het plaatsen van witgoed. Vanuit de bijkeuken bereik je direct de achtertuin perfect om te ontspannen in de buitenlucht.
EERSTE VERDIEPING
De overloop op de eerste verdieping geeft toegang tot maar liefst drie slaapkamers: twee slaapkamers aan de voorzijde en een ruime over de volledige achterzijde. De ruime slaapkamer op de achterzijde kan weer teruggebracht worden naar twee slaapkamers.
De centraal gelegen badkamer is voorzien van een douche en een wastafel.
BUITEN
De onderhoudsvriendelijke achtertuin ligt op het noorden, de zijtuin op de zuidoost kant waardoor je de hele ochtend en middag kunt genieten van de zon. Via de praktische achterom is de tuin ook bereikbaar vanaf de buitenzijde.
De tuin beschikt over een vrijstaande stenen berging én biedt directe toegang tot de naastgelegen garage, ideaal voor de fietsen, hobbyruimte of extra opslag.
BIJZONDERHEDEN
+ Hoekwoning met extra buitenruimte;
+ Voorzijde en zijkant beneden voorzien van screens;
+ Drie met mogelijkheid tot vier slaapkamers;
+ Ruime doorzonwoonkamer;
+ Halfopen keuken met bijkeuken;
+ Zonnige zijtuin op het zuidoosten;
+ Stenen berging én garage aanwezig;
+ Deels kunststof kozijnen met HR++ glas aan de voorzijde;
+ Rustige ligging met winkels, scholen en OV in de buurt;
+ Niet zelf bewoningsclausule van toepassing.
DISCLAIMER
Deze informatie is met de nodige zorgvuldigheid samengesteld. Onzerzijds wordt echter geen aansprakelijkheid aanvaard voor enige onvolledigheid of onjuistheid, noch voor de gevolgen daarvan. Alle vermelde maten en oppervlakten zijn indicatief.
TOELICHTING NEN2580
De Meetinstructie is gebaseerd op de NEN2580 en bedoeld voor een eenduidige bepaling van gebruiksoppervlakten. Kleine verschillen kunnen echter voorkomen door interpretatie, afrondingen of meetbeperkingen.
Features
Transfer of ownership
- Last asking price
- € 265,000 kosten koper
- Asking price per m²
- € 2,819
- Status
- Sold
Construction
- Kind of house
- Single-family home, corner house
- Building type
- Resale property
- Year of construction
- 1963
- Type of roof
- Flat roof covered with asphalt roofing
Surface areas and volume
- Areas
- Living area
- 94 m²
- Other space inside the building
- 3 m²
- External storage space
- 25 m²
- Plot size
- 245 m²
- Volume in cubic meters
- 333 m³
Layout
- Number of rooms
- 5 rooms (3 bedrooms)
- Number of bath rooms
- 1 bathroom and 1 separate toilet
- Bathroom facilities
- Walk-in shower and sink
- Number of stories
- 2 stories
- Facilities
- Optical fibre, passive ventilation system, and TV via cable
Energy
- Energy label
- E
- Insulation
- Roof insulation and energy efficient window
- Heating
- CH boiler
- Hot water
- CH boiler
- CH boiler
- Remeha Avanta CW5 28C (gas-fired combination boiler from 2021, in ownership)
Cadastral data
- HUIZUM E 771
- Cadastral map
- Area
- 245 m²
- Ownership situation
- Full ownership
Exterior space
- Location
- Alongside a quiet road, in residential district and open location
- Garden
- Back garden, front garden and side garden
- Side garden
- 190 m² (13.44 metre deep and 14.12 metre wide)
- Garden location
- Located at the southeast
Storage space
- Shed / storage
- Detached brick storage
- Facilities
- Electricity
Garage
- Type of garage
- Garage
- Capacity
- 1 car
- Facilities
- Electricity, heating and running water
Parking
- Type of parking facilities
- Public parking
Photos 62
© 2001-2025 funda





























































