This house on Funda: https://www.funda.nl/en/detail/koop/maarn/huis-bakkersweg-30/43101394/

Eye-catchervrijstaand wonen in een bosrijke omgeving!
Description
Heerlijk vrijstaand wonen in bosrijke omgeving
Op een prachtige plek, aan de geliefde Bakkersweg ligt dit charmante VRIJSTAANDE WOONHUIS – een royale semi-bungalow - dat rust en ruimte moeiteloos combineert. Hier woon je op een prachtige bosrijke locatie, met een royaal perceel van maar liefst 985 m².
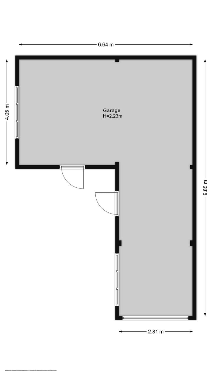
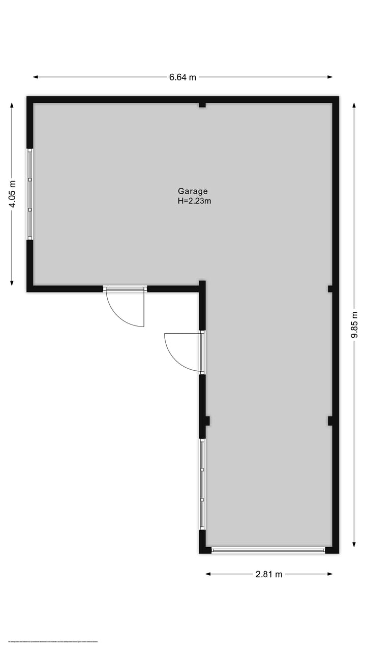
De woning beschikt over een ruime oprit met plek voor meerdere auto’s én een groot vrijstaand bijgebouw van 43 m² in L-vorm – perfect als garage, atelier of hobbyruimte.
Dankzij de slaap- en badkamer op de begane grond is dit huis bovendien levensloopbestendig, terwijl de drie slaapkamers op de verdieping volop ruimte bieden voor een gezin.
Een huis met mogelijkheden
Of u nu houdt van de natuur, ruimte zoekt voor een hobby, of droomt van vrijstaand wonen op een groot perceel – dit huis heeft het allemaal. Kom kijken en laat u verrassen door dit heerlijke thuis aan de Bakkersweg.
Een heerlijke plek om te wonen
Maarn staat bekend als een groen en vriendelijk dorp, gelegen aan de voet van de Utrechtse Heuvelrug. De woning ligt vlak bij uitgestrekte bossen, het natuurgebied de Koeheuvels en recreatiegebied het Henschotermeer. Ook het dorpscentrum met winkels, basisscholen, sportverenigingen en andere voorzieningen liggen eveneens binnen handbereik. Golfliefhebbers kunnen ook hun hart ophalen want Golfclub Anderstein ligt op korte afstand.
Bovendien is de bereikbaarheid van de woning uitstekend: met de A12 en een NS-station in de directe nabijheid bent u binnen no-time in steden als Utrecht, Amsterdam, Arnhem en Amersfoort.
Tuinliefhebbers opgelet
Houdt u ervan om lekker in de tuin bezig te zijn? Hier kunt u uw hun hart ophalen. De tuin is zeer royaal en rondom het huis gelegen. Hier geniet u van lange zomerdagen, een kop koffie in de ochtendzon en een goed glas wijn bij zonsondergang. Ook is er een tuinkas aanwezig. Dankzij het royale perceel ervaart u hier dagelijks het ultieme buitenleven.
Ruim en veelzijdig bijgebouw
Net achter de woning, aan de zijkant van het perceel, staat een functioneel bijgebouw dat uitstekend dienst kan doen als garage (geschikt voor 2 auto's), berging of hobbyruimte. Wie behoefte heeft aan nét dat beetje extra ruimte, vindt hier eindeloze mogelijkheden!
Indeling:
Begane grond
De entree is verrassend royaal, met een L-vormige hal en een prachtig hoog videplafond dat direct een gevoel van licht en ruimte geeft. De hardhouten trap leidt naar de verdieping. Vanuit de hal zijn de woonkamer, keuken, slaap- en badkamer bereikbaar, evenals het separate toilet met fontein.
Woonkamer, keuken, bijkeuken
De woonkamer ligt aan de voorzijde en is heerlijk licht dankzij ramen aan drie zijden. Op koudere dagen zorgt de open haard voor een warme, huiselijke sfeer.
De keuken in praktische L-opstelling is voorzien van inbouwapparatuur en biedt ruimte voor een eettafel. Aansluitend vindt u de bijkeuken met wasmachineaansluiting en toegang tot het terras aan de zijkant van de woning.
Slaapkamer, badkamer
De slaapkamer en badkamer op de begane grond maken dit huis uitermate geschikt voor gelijkvloers wonen. De badkamer is ruim en compleet met ligbad, douche en wastafelmeubel.
Eerste verdieping
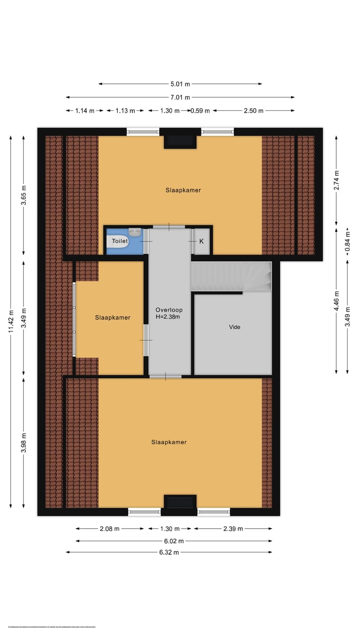
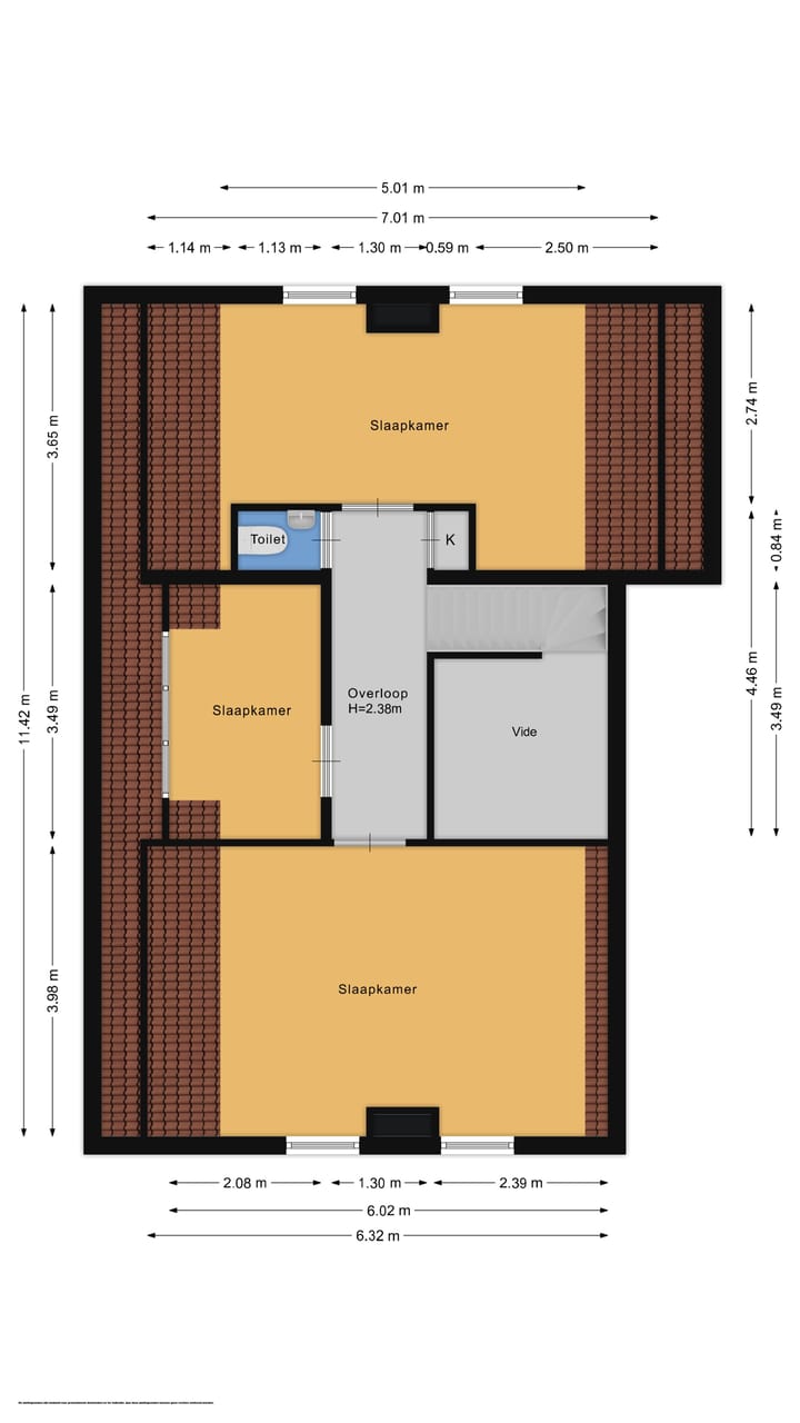
Boven bevinden zich drie slaapkamers, elk verschillend van afmeting. De kamers aan de voor- en achterzijde zijn bijzonder ruim; de achterkamer heeft bovendien een fraai uitzicht op de tuin en een eigen wastafel. De derde slaapkamer, aan de zijkant, is voorzien van een dakkapel. Op de overloop vind je een vaste kast en een toiletruimte met fontein.
BIJZONDERHEDEN:
• Bouwjaar 1975.
• Woonoppervlakte circa 135 m².
• Inhoud circa 529 m³.
• Berging circa 43 m².
• Zonligging: noordwesten.
• Verwarming: cv-gas combiketel (Nefit).
• Warmwatervoorziening: cv-gas combiketel.
• Isolatie: muurisolatie en grotendeels voorzien van dubbel glas.
• Energielabel: C.
• Inbouwapparatuur in de keuken bestaat uit: gasstel, afzuigkap, combimagnetron en koelkast.
• Kadastraal bekend Gemeente Maarn, sectie A, nummer 4496, groot 985 m².
• Er is een unieke website beschikbaar van de woning! Download de brochure!
• Er is ook een video beschikbaar van de woning.
• Bouwkundig rapport aanwezig.
•
Features
Transfer of ownership
- Listed since
- Acceptance
- Available in consultation
- Asking price
- € 975,000 kosten koper
- Asking price per m²
- € 7,222
- Status
- Sold under reservation
Construction
- Kind of house
- Single-family home, detached residential property
- Building type
- Resale property
- Year of construction
- 1975
- Type of roof
- Gable roof covered with roof tiles
- Quality marks
- Bouwkundige Keuring
- Accessibility
- Accessible for people with a disability and accessible for the elderly
Surface areas and volume
- Areas
- Living area
- 135 m²
- External storage space
- 43 m²
- Plot size
- 985 m²
- Volume in cubic meters
- 529 m³
Layout
- Number of rooms
- 5 rooms (4 bedrooms)
- Number of bath rooms
- 1 bathroom and 2 separate toilets
- Bathroom facilities
- Shower, bath, sink, and washstand
- Number of stories
- 2 stories
- Facilities
- Passive ventilation system and flue
Energy
- Energy label
- C
- Insulation
- Partly double glazed and insulated walls
- Heating
- CH boiler
- Hot water
- CH boiler
- CH boiler
- Neftit (gas-fired combination boiler, in ownership)
Cadastral data
- MAARN A 4496
- Cadastral map
- Area
- 985 m²
- Ownership situation
- Full ownership
Exterior space
- Location
- Alongside a quiet road, in wooded surroundings and in residential district
- Garden
- Surrounded by garden
Garage
- Type of garage
- Detached brick garage
- Capacity
- 2 cars
- Facilities
- Electricity
Parking
- Type of parking facilities
- Parking on private property
Photos 51
Floorplans 3
© 2001-2025 funda





















































