This house on Funda: https://www.funda.nl/en/detail/koop/maassluis/huis-marnixkade-4/43074603/

Marnixkade 43144 ER MaassluisKapelpolder
€ 1,100,000 k.k.
Eye-catcherEen zeldzaam juweel aan de haven – royaal, sfeervol én uniek.
Description
Monumentaal wonen aan de Marnixkade – een zeldzaam juweel in het historische hart van Maassluis
Wonen in een monument met allure, midden in het historische hart van Maassluis? Dat kan aan de Marnixkade 4 – een adembenemend rijksmonument uit circa 1675 met een woonoppervlakte van maar liefst 301 m², gelegen op een perceel van 358 m² eigen grond. Vanuit de sfeervolle woonkamer kijk je uit over de geliefde havenkom, met aan de andere zijde van de woning een weergaloos uitzicht op de Grote Kerk van Maassluis.
Of je nu op zoek bent naar een karakteristiek familiehuis, een woon-werkcombinatie, of een plek waar ruimte en geschiedenis hand in hand gaan: deze woning biedt het allemaal. Het pand ademt authenticiteit, maar is met zorg en aandacht aangepast aan de wensen van deze tijd – zonder de ziel van het huis te verliezen. Hier woon je niet alleen, hier beleef je.
Indeling
Begane grond
De entree bevindt zich in de voormalige kruidenierswinkel, een bijzonder sfeervolle ruimte die direct de rijke historie van het pand voelbaar maakt. Deze karaktervolle plek is uitermate geschikt als ontvangsthal, galerie, werkruimte of atelier en vormt een uniek begin van de rondleiding door het huis. Vanuit deze ruimte heb je toegang tot diverse vertrekken. Grenzend aan deze entree treft ook een volledig betegelde badkamer, voorzien van douche, ligbad en wastafel, evenals een separaat toilet – ideaal voor gasten of praktisch tijdens het tuinieren.
Aan de voorzijde bevindt zich de royale woonkamer, een ware blikvanger dankzij het prachtige uitzicht over de havenkom van Maassluis. De grote raampartijen zorgen hier voor een overvloed aan natuurlijk licht, terwijl de tegelvloer met comfortabele vloerverwarming én de houtkachel zorgen voor warmte en sfeer in elk seizoen. Het is een plek waar je tot rust komt, met een boek op de bank of simpelweg door te kijken naar het kabbelende water en het levendige straatbeeld.
Via de woonkamer bereik je een centrale hal die toegang biedt tot de tuin en de trapopgang naar de eerste verdieping.
Aan de achterzijde van de woning bevindt zich de ruime woonkeuken. Deze is groot genoeg voor een royale eettafel en vormt het kloppend hart van het huis, waar gekookt en geleefd wordt. De keuken is direct verbonden met de inpandige dubbele garage, een zeldzaam luxe voorziening in een historische binnenstadslocatie. In deze garage bevinden zich bovendien de aansluitingen voor de wasmachine en droger, evenals extra bergruimte.
Door de combinatie van open en gesloten ruimtes, historische details en hedendaags comfort, biedt de begane grond een unieke balans tussen functionaliteit en sfeer. Elke ruimte voelt logisch, doordacht en bovenal warm aan – alsof het huis je uitnodigt om te blijven.
Tuin – Groene oase in het hart van de stad
Een van de verborgen parels van dit huis is de verrassend ruime en goed onderhouden achtertuin. Gelegen op het noordwesten geniet je hier van zon in de middag en avond – perfect voor een borrel na het werk of een zomers diner in de open lucht.
De tuin is bereikbaar vanuit de centrale hal, de keuken en de garage, en biedt volop privacy dankzij de ligging en het volwassen groen. De indrukwekkende Grote Kerk vormt hier een majestueuze achtergrond – alsof je in een schilderij leeft. Met een riant oppervlak is er ruimte genoeg voor speeltoestellen, een buitenkeuken, een moestuin of zelfs een jacuzzi.
Eerste verdieping – Wonen en werken combineren
De eerste etage biedt plaats aan vier ruime slaapkamers en een royale werkkamer in de zijvleugel van de woning. Deze verdieping is zeer geschikt voor een gezin, maar ook voor wie een praktijk of kantoor aan huis wil realiseren.
Aan de voorzijde bieden de slaapkamers zicht op de levendige haven, terwijl de achterzijde juist rust en groen biedt met uitzicht op de tuin en de kerk. De master bedroom is riant en voorzien van veel kastruimte. Vrijwel alle slaapkamers beschikken over ingebouwde kasten. Daarnaast is er een apart toilet aanwezig op deze verdieping.
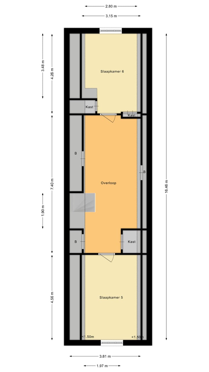
Tweede verdieping – Ruimte en mogelijkheden
De tweede etage is bereikbaar via een vaste trap en beschikt over een ruime overloop met opbergruimte aan weerszijden. Aan de voor- en achterzijde bevinden zich nog twee grote slaapkamers, ideaal voor logés, tieners of als atelier-/hobbyruimte. Ook hier zijn de originele details goed bewaard gebleven, zoals balken en raampartijen, wat de sfeer ten goede komt.
Bijzonderheden en pluspunten
- Bouwjaar circa 1675
- Gemeentelijk monument met rijke historie
- Woonoppervlak ca. 301 m²
- Perceeloppervlak ca. 358 m² (eigen grond)
- 8 kamers, waaronder 6 volwaardige slaapkamers en een kantoorruimte
- Overige inpandige ruimte van ca. 55 m² (garage en bergruimte)
- Riante tuin op het noordwesten
- Unieke ligging aan de haven en naast de Grote Kerk
- Dubbele garage met aansluitingen voor wasmachine/droger
- Woonkamer met houtkachel en vloerverwarming
- Vele originele details zoals balken, oude gevels en historische raampartijen
- Gelegen in het historische stadscentrum van Maassluis, op loopafstand van winkels, horeca en openbaar vervoer
- Ideaal voor wonen, werken of combineren van beiden
Oplevering: in overleg
In de koopovereenkomst wordt standaard een ouderdomsclausule opgenomen, omdat deze woning ouder is dan 20 jaar. Deze tekst is met zorg samengesteld. Voor de juistheid van de verstrekte informatie zijn wij in de regel in grote mate afhankelijk van derden. De vermelde informatie is van algemene aard en is niet meer dan een uitnodiging om in onderhandeling te treden. Aan de inhoud van deze informatie kunnen geen rechten worden ontleend.
Features
Transfer of ownership
- Listed since
- Acceptance
- Available in consultation
- Asking price
- € 1,100,000 kosten koper
- Asking price per m²
- € 3,654
- Status
- Available
Construction
- Kind of house
- Mansion, semi-detached residential property
- Building type
- Resale property
- Year of construction
- 1675
- Specific
- Listed building (national monument) and monumental building
- Type of roof
- Combination roof covered with asphalt roofing and roof tiles
Surface areas and volume
- Areas
- Living area
- 301 m²
- Other space inside the building
- 55 m²
- Plot size
- 358 m²
- Volume in cubic meters
- 1,345 m³
Layout
- Number of rooms
- 9 rooms (6 bedrooms)
- Number of bath rooms
- 1 bathroom and 2 separate toilets
- Bathroom facilities
- Shower, bath, sink, and washstand
- Number of stories
- 3 stories and a basement
- Facilities
- Skylight
Energy
- Energy label
- Not required
- Heating
- CH boiler
- Hot water
- Gas water heater
- CH boiler
- Atag (gas-fired combination boiler from 2019, in ownership)
Cadastral data
- MAASSLUIS D 10819
- Cadastral map
- Area
- 358 m²
- Ownership situation
- Full ownership
Exterior space
- Location
- Alongside waterfront and in centre
- Garden
- Back garden and side garden
- Back garden
- 148 m² (17.00 metre deep and 7.66 metre wide)
- Garden location
- Located at the northwest with rear access
Storage space
- Shed / storage
- Attached brick storage
- Facilities
- Electricity
Garage
- Type of garage
- Attached brick garage
- Capacity
- 2 cars
- Facilities
- Electricity and running water
Parking
- Type of parking facilities
- Parking on gated property, parking on private property and public parking
Photos 44
Floorplans 5
© 2001-2025 funda
















































