This house on Funda: https://www.funda.nl/en/detail/koop/megchelen/bouwgrond-julianaweg-37-b/43891326/

Description
ONDER ARCHITECTUUR ONTWORPEN NIEUWBOUWPLAN TE KOOP JULIANAWEG 37B EN 37C TE MEGCHELEN.
TWEE NOG TE REALISEREN HALFVRIJSTAANDE NIEUWBOUW WONINGEN IN DE VORM VAN BIOBASED SCHUURWONINGEN.
GELEGEN OP EEN LOCATIE DIE NOOIT VERVEELT.
WIE WIL DIT NOU NIET:
WONEN IN DE VRIJE NATUUR, IN EEN MODERNE WONING DIE VOLDOET AAN ALLE HEDENDAAGSE EISEN EN WENSEN QUA WOONCOMFORT.
Van sommige dingen in het leven weet u het zeker: dit kan niet veel beter.
Wonen in een huis dat speciaal voor u lijkt te zijn gemaakt. Inspirerend, eigenzinnig en succesvol. Net als u. Hier vindt u ongekend veel privacy, rust en ruimte. Maar ook nabij uitvalswegen, golfbanen, openbaar vervoer, scholen, sportverenigingen, restaurants en al het goede dat de Achterhoek te bieden heeft.
Het geheel is prachtig gelegen. Het begrip ‘onthaasten’ krijgt een geheel nieuwe dimensie in deze romantische, groene leefomgeving met een fraai landschap. De bossen bevinden zich op circa een kilometer afstand. Toch is de locatie aan de rand van het lieflijke dorpje Megchelen. Een locatie vol charme en omgeven door de natuur. Anderzijds heeft het buren op gepaste afstand nabij. Een betere locatie is er haast niet te bedenken.
Op deze plek kunt u een fantastisch half vrijstaand woonhuis realiseren, dat aan alle eisen van de hedendaagse tijd voldoet met gebruik van hoogwaardige materialen. Met een energielabel A++, warmtepomp en zonnepanelen, klaar voor de toekomst.
De locatie:
Wonen in een levendig dorp, en met de rust en ruimte van een prachtige landelijke omgeving. Dat kan in Megchelen. Binnen no time bereikt u de snelweg richting Arnhem en Utrecht (A12), Düsseldorf en Oberhausen (A3) en Doetinchem of Enschede (A18). De locatie zorgt voor de juiste mix tussen rust en vertier.
Megchelen is een gezellig dorp aan de rand van de Achterhoek, nabij de landsgrens met Duitsland. Hier kunt u optimaal genieten van alles wat de Achterhoek te bieden heeft en een landelijke bosrijke omgeving met alle ruimte. U kunt hier heerlijk wandelen, fietsen en genieten van de natuur. Het centrum van het levendige dorp Ulft ligt op fietsafstand en er is allerlei vertier te vinden in de omgeving.
Dit dorp herbergt drie prachtige rijksmonumenten, waaronder het schitterende Huis Landfort, een neoklassiek landhuis dat in 1814 werd gebouwd en een ware blikvanger vormt. Voor de liefhebbers van wandelen, fietsen en natuur biedt Megchelen een schat aan mogelijkheden om te verkennen en te genieten van de buitenlucht.
In het naburige Ulft vindt u de DRU-cultuurfabriek. Dit voormalig fabrieksgebouw is nu een populair cultureel centrum met tal van activiteiten, zoals concerten, festivals, theater- en filmvoorstellingen en exposities.
Het geheel ligt nabij de Duitse grens met Emmerich en het Duitse plaatsje Anholt. Ideaal om boodschappen te doen over de grens. Het plaatsje Anholt staat bekend om het prachtige kasteel, 'waterburcht' Slot Anholt.
Kortom, er is genoeg te zien en te beleven.
Dit is de kans om de woning van uw dromen te realiseren op een ideale locatie.
Algemeen:
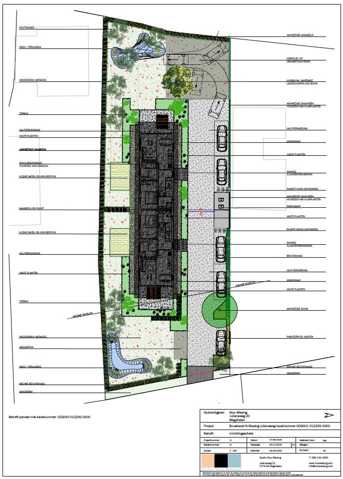
- Beiden op een perceeloppervlak van zo'n 650 m², of zoveel meer of minder als bij kadastrale uitmeting zal blijken;
- Volledig onder architectuur uitgewerkt bouwplan met begroting aanwezig;
- Het woonoppervlak van het aanwezige plan dat er ligt bedraagt circa 78 m² en de inhoud circa 350 m³;
- De inhoud mag maximaal 500 m³ per woning bedragen;
- Inclusief volledig onder architectuur ontworpen bouwplan en bouwvergunningen, waarvan de leges reeds zijn voldaan;
- Onder architectuur ontworpen tuinplan aanwezig, aanleg verharding en tuin dient nog wel te worden gedaan;
- Stroomaansluiting en water aansluiting Vitens is aanwezig;
- Riolering dient nog te worden aangelegd;
- Onder voorbehoud gunning verkoper.
Er is reeds een bouwvergunning afgegeven voor de woningen van circa 350 m³ zoals weergeven. De bijbehorende en overige kosten om in deze fase te komen, zijn reeds door verkoper voldaan. Leges zijn al betaald. De kavels worden verkocht exclusief de bouwkosten.
Aanvaarding in overleg, op korte termijn mogelijk.
KOOPSOM kavel Julianaweg 37B: (voorste kavel aan de straatzijde): € 155.000,00 k.k. exclusief bouwkosten;
KOOPSOM kavel Julianaweg 37C (achterste kavel): € 145.000,00. k.k. exclusief bouwkosten;
Belangstelling?
Heeft u belangstelling? Voor meer informatie kunt u contact opnemen met ons kantoor.
Features
Transfer of ownership
- Last asking price
- € 145,000 kosten koper
- Status
- Sold
Construction
- Type of property
- Building plot
- Ready for construction
- No
Layout
- Plot size
- 650 m²
Cadastral data
- GENDRINGEN I 1223
- Cadastral map
- Area
- 650 m² (part of parcel)
- Ownership situation
- Full ownership
Exterior space
- Location
- Alongside a quiet road, in wooded surroundings, rural and unobstructed view
Photos 7
© 2001-2025 funda






