This house on Funda: https://www.funda.nl/en/detail/koop/molenhoek/huis-berkenhof-2/43960725/

Description
*** GEZIEN DE GROTE BELANGSTELLING VOOR DEZE WONING IS HET NIET MEER MOGELIJK EEN BEZICHTIGING TE PLANNEN, INDIEN U UW GEGEVENS WILT ACHTERLATEN PLAATSEN WIJ U OP DE RESERVELIJST ***
Een prachtig gelegen hoekwoning aan de Berkenhof 2 in het mooie Molenhoek!
Deze verrassend lichte woning is de ideale plek voor starters en jonge gezinnen die op zoek zijn naar een heerlijk (t)huis.
Met maar liefst vier slaapkamers biedt deze woning voldoende ruimte voor een gezin. De natuurlijke lichtinval zorgt voor een zeer prettig gevoel in de leefruimtes.
De ligging van de woning is perfect: in een rustige en kindvriendelijke wijk, dichtbij basisschool, middelbare school en alle andere voorzieningen.
Kortom, deze hoekwoning aan de Berkenhof 2 is de ideale kans voor iedereen die een fijn (t)huis wenst.
Mis deze kans niet en kom snel een kijkje nemen!
Indeling:
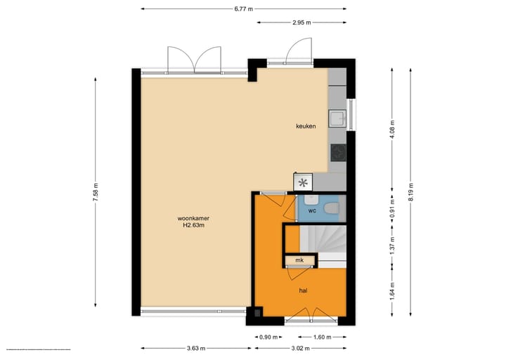
Bij binnenkomst in de woning stap je de entree/hal binnen, waar zich de meterkast en een net toilet met een fonteintje zich bevindt. Vanuit de hal heb je toegang tot de keuken/woonkamer, evenals de trap naar de eerste verdieping.
De hoekkeuken, bouwjaar 2003. Deze is uitgerust met diverse inbouwapparatuur, waaronder een inductiekookplaat, een afzuigkap, een vaatwasser, een magnetron, een keukenboiler en een oven. In deze keuken is het prettig koken want je hebt contact met de gehele woonkamer.
De gezellige woonkamer, voorzien van een houten vloer. Dankzij de airconditioning kun je het hele jaar door genieten van een aangename temperatuur, of het nu warm of koud is buiten. De grote schuifvouwwand aan de achterzijde van de woonkamer en de keukenpui bieden niet alleen een uitzicht op je eigen achtertuin, maar zorgen ook voor voldoende aan natuurlijk licht in de leefruimte.
Op de eerste verdieping van deze woning vind je drie slaapkamers. Daarnaast is er een praktische wasruimte met aansluitingen voor witgoed. De trap naar de tweede verdieping leidt je naar een verrassende ruimte die je niet wilt missen.
De moderne badkamer op de eerste verdieping is van fijn formaat. Met een ligbad, een groot wastafelmeubel dat voldoende opbergruimte biedt en een 2de toilet.
Op de tweede verdieping is een riante slaapkamer gecreëerd, dankzij de toevoeging van twee grote dakkapellen. Deze zorgen niet alleen voor een overvloed aan natuurlijk licht, maar zeker aan ruimte. De airconditioning op zowel de eerste als de tweede verdieping zorgt ervoor dat het in elke seizoen aangenaam is.
Kortom, deze woning biedt meer dan voldoende ruimte voor het hele gezin.
Tuin:
De zonnige tuin op het zuidwesten is onderhoudsarm en biedt een heerlijke plek om te ontspannen. Met een grote uitgebouwde garage is er meer dan voldoende bergruimte. De ligging nabij de bossen en het treinstation van Molenhoek maken deze woning ideaal voor natuurliefhebbers en forenzen.
Laat deze kans niet aan je voorbijgaan en maak snel een afspraak voor een bezichtiging.
Bijzonderheden:
Energielabel B
9 stuks zonnepanelen (2022)
Garage uitgebouwd (bouwjaar 2021)
Voorzien van een dakkapel aan de voor- en achterzijde van de woning (bouwjaar 2010)
Hardhouten kozijnen
Begane grond, 1ste en 2de verdieping voorzien van airconditioning.
Basisschool, kinderopvang, huisarts en openbaar vervoer zijn op loopafstand van de woning alsmede de bossen van o.a. Landgoed Mookerheide en de Heumense Schans.
Ligging
Molenhoek ligt grotendeels in de gemeente Mook en Middelaar.
De gemeente Mook en Middelaar is de noordelijkste gemeente van de provincie Limburg. De gemeente grenst aan de noordoostzijde aan de Gelderse gemeenten Heumen en Groesbeek. Westelijk bepaalt de Maas de gemeentegrens met het Noord-Brabantse Cuijk en ten zuiden ligt de gemeente Gennep. De totale oppervlakte bedraagt 1882 hectare. De gemeente Mook en Middelaar wordt wel de brug tussen Maas en heuvelland genoemd. De heuvels, bos en heide maken de gemeente grotendeels tot een bijzonder natuurgebied. 60 tot 80 meter boven N.A.P. kan de rustzoeker genieten van een uniek uitzicht over de Maasvallei, het Brabantse en Limburgse land en de Mookerplas. De Maas en de Mookerplas bieden watersporters tal van recreatiemogelijkheden. Toerisme en recreatie zijn de belangrijke pijlers van het gemeentelijk beleid.
Molenhoek beschikt over een winkelcentrum met o.a. een supermarkt, cafetaria, fietsenzaak, kapsalon en een praktijk voor tandheelkunde.
Basisschool, middelbare school, kinderopvang, huisarts en openbaar vervoer zijn op loopafstand van de woning, alsmede de bossen van o.a. Landgoed Mookerheide.
Daarnaast is Molenhoek gunstig gelegen t.o.v. Malden, Nijmegen en de op- afritten van de snelweg A73.
Features
Transfer of ownership
- Last asking price
- € 425,000 kosten koper
- Asking price per m²
- € 3,036
- Status
- Sold
Construction
- Kind of house
- Single-family home, corner house
- Building type
- Resale property
- Year of construction
- 1970
- Type of roof
- Combination roof covered with roof tiles
Surface areas and volume
- Areas
- Living area
- 140 m²
- External storage space
- 32 m²
- Plot size
- 178 m²
- Volume in cubic meters
- 478 m³
Layout
- Number of rooms
- 5 rooms (4 bedrooms)
- Number of bath rooms
- 1 bathroom
- Bathroom facilities
- Walk-in shower, bath, toilet, and washstand
- Number of stories
- 3 stories
- Facilities
- Air conditioning, sliding door, and solar panels
Energy
- Energy label
- B
- Insulation
- Roof insulation, double glazing, insulated walls and floor insulation
- Heating
- CH boiler
- Hot water
- CH boiler
- CH boiler
- Intergas HRE (gas-fired combination boiler from 2022, in ownership)
Cadastral data
- MOOK EN MIDDELAAR A 4065
- Cadastral map
- Area
- 178 m²
- Ownership situation
- Full ownership
Exterior space
- Location
- Alongside a quiet road and in residential district
- Garden
- Back garden and front garden
Garage
- Type of garage
- Detached brick garage
- Capacity
- 1 car
- Facilities
- Electricity
Parking
- Type of parking facilities
- Public parking
Photos 46
© 2001-2025 funda













































