This house on Funda: https://www.funda.nl/en/detail/koop/munnekezijl/huis-olde-borchweg-43/89526051/

Description
Op een royaal perceel van 690 m² staat deze vrijstaande woning met een prachtig vrij uitzicht. Aan de achterzijde grenst de tuin direct aan de weilanden en ook aan de voorzijde geniet u van een heerlijk vrij uitzicht. De woning is gebouwd in 2008, volledig geïsoleerd en voorzien van een energielabel A.
Dankzij de aanbouw (van 2013) is de woonkamer veel ruimer geworden en heeft de woning een bijzondere uitstraling verkregen. Er is een prachtige lichtinval door de vele ramen en de lichtkoepels. Tevens is er een directe verbinding met de ruime tuin door de tuindeuren. Deze fijne plek kan gedeeld worden met gasten, die van een eigen vrijstaand gastenverblijf kunnen genieten. Dit gastenverblijf is ook uitstekend te gebruiken als werkplek, hobbyruimte of atelier.
Zowel Groningen als Leeuwarden zijn gelegen op ongeveer 25 autominuten van Munnekezijl. Het dorp ligt op een steenworp afstand van het mooie Nationaal Park Lauwersmeer. Een natuurgebied waar u heerlijk kunt wandelen, fietsen en genieten van het water. De combinatie van rust en natuur maakt deze locatie zeer aantrekkelijk.
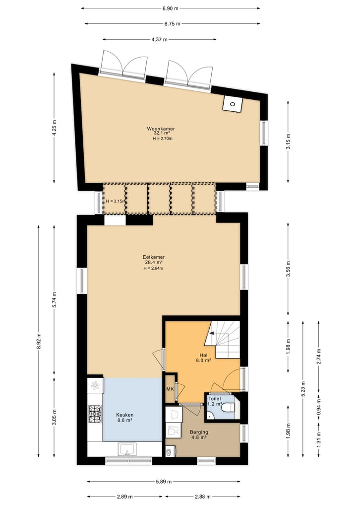
Indeling: entree met hal, trapopgang, meterkast en toegang tot de inpandige bijkeuken en de keuken. De inpandige bijkeuken heeft ruimte voor het witgoed, er is bergruimte en de cv-opstelling. De keuken is gelegen aan de voorzijde van de woning met vrij uitzicht over het land. Deze hoekkeuken (van 2015) is voorzien van een natuurstenenblad en inbouwapparatuur zoals een vaatwasser, oven en 6-pits gasfornuis.
De woonkamer en keuken zijn een geheel en samen ongeveer 69 m² groot. Vanuit hier kunt u genieten van het heerlijke uitzicht op eigen tuin en het achtergelegen weiland. Er zijn 2 paar tuindeuren die toegang geven naar het terras en de tuin.
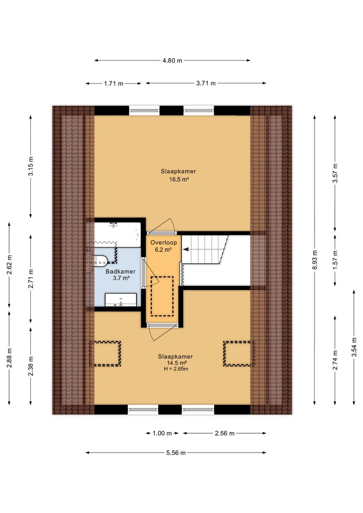
Verdieping: overloop, 2 slaapkamers en een badkamer. De badkamer is ingericht met een ligbad met douche, wastafel en een 2de toilet. De voorste slaapkamer is ongeveer 14,5 m² en kan eventueel opgesplitst worden naar 2 aparte slaapkamers. De achterste slaapkamer is ± 16,5 m² groot en voorzien van een vaste kast.
Via een vlizotrap is de zolderberging te bereiken. Een ruimte waar heel wat spullen bewaard kunnen.
-op eigen terrein is er ruim voldoende ruimte voor meerdere auto’s en er is een oplaadpaal aanwezig;
- de tuin is ideaal gelegen op het zuidwesten;
- er liggen 14 zonnepanelen op het huis;
- de woning is volledig geïsoleerd en is dan ook voorzien van energielabel A;
- naast de woning staat ook een vrijstaande houten berging met sauna, en voor fietsen en tuinspullen, deze is 4 bij 4 meter groot;
Het vrijstaande gastenverblijf is ingedeeld met een woonkamer met open keuken, een badkamer met douche en toilet en er is een losse trap naar de slaapzolder. Vanuit het gastenverblijf is er ook een heerlijk uitzicht over de tuin en het weiland.
Features
Transfer of ownership
- Last asking price
- € 399,000 kosten koper
- Asking price per m²
- € 3,117
- Status
- Sold
Construction
- Kind of house
- Single-family home, detached residential property
- Building type
- Resale property
- Year of construction
- 2008
- Type of roof
- Combination roof covered with asphalt roofing and roof tiles
Surface areas and volume
- Areas
- Living area
- 128 m²
- Other space inside the building
- 6 m²
- External storage space
- 36 m²
- Plot size
- 690 m²
- Volume in cubic meters
- 530 m³
Layout
- Number of rooms
- 3 rooms (2 bedrooms)
- Number of bath rooms
- 1 bathroom and 1 separate toilet
- Bathroom facilities
- Sauna, shower, bath, toilet, and sink
- Number of stories
- 2 stories and an attic
- Facilities
- Skylight, passive ventilation system, sauna, TV via cable, and solar panels
Energy
- Energy label
- A
- Insulation
- Roof insulation, double glazing, insulated walls, floor insulation and completely insulated
- Heating
- CH boiler
- Hot water
- CH boiler
- CH boiler
- Bosch (gas-fired combination boiler from 2008, in ownership)
Cadastral data
- BURUM B 615
- Cadastral map
- Area
- 375 m²
- Ownership situation
- Full ownership
- BURUM B 1040
- Cadastral map
- Area
- 315 m²
- Ownership situation
- Full ownership
Exterior space
- Location
- Rural and unobstructed view
- Garden
- Back garden, front garden and side garden
- Back garden
- 378 m² (21.00 metre deep and 18.00 metre wide)
- Garden location
- Located at the west
Storage space
- Shed / storage
- Detached wooden storage
- Facilities
- Electricity
Parking
- Type of parking facilities
- Parking on private property
Photos 48
© 2001-2025 funda















































