
Appartementen woongebouw 1 en 2 (Bouwnr. B1-4.)7161 DS NeedeNeede Centrum
€ 376,718 v.o.n.
Description
DE VERKOOP VAN HOF VAN NEEDE IS GESTART!
HEERLIJK WONEN IN HARTJE NEEDE
Op een schitterende locatie in het centrum van Neede bouwen we 30 bijzondere appartementen. Royale, stijlvolle woningen in verschillende typen en groottes. De woningen zijn levensloopbestendig en hebben minimaal 2 slaapkamers en een eigen tuin of balkon. Stelt u, net als wij, hoge eisen aan de kwaliteit van wonen?
Hof van Neede, dichtbij alles, alles dichtbij
We bouwen Hof van Neede verdeeld over 3 woongebouwen aan de Oudestraat en de Hofmaat in Neede. Dichtbij alles en alles dichtbij. Het centrum en alle dagelijkse voorzieningen bevinden zich op loopafstand van uw nieuwe woning. De rust en ruimte van de Achterhoek zijn in de buurt voor een fijne wandeling of fietstocht. Alles wat een woonomgeving comfortabel en uniek maakt, hoort standaard bij uw nieuwe woning. Een heerlijk vooruitzicht!
We bouwen 30 luxe en duurzame appartementen, verdeeld over 3 woongebouwen. Alle appartementen hebben 3 of 4 kamers. De woonoppervlakte varieert tussen 75 en 160 m². De meeste balkons zijn zuid- of tuingericht. De 4 penthouses, op de bovenste verdieping van elk woongebouw, zijn voorzien van meerdere grotere terrassen die in verschillende richtingen uitkijken.
De woningen
De hoofdentrees van de woongebouwen liggen aan de Hofmaat of aan de Oudestraat. Als bewoner heeft u bovendien een ingang aan de tuinzijde, dus direct bij de parkeerplaatsen en de bergingen. De twee appartementen op de begane grond aan de Oudestraat hebben een eigen voordeur én een tuin. De andere appartementen op begane grond worden ontsloten via de hoofdentrees van de woongebouwen.
Elk woongebouw heeft een eigen uitstraling, materiaalgebruik en details. Alle woningen zijn duurzaam, gasloos en voldoen aan de eisen van BENG (Bijna Energieneutraal). De houten bergingen worden uitgevoerd in stijlvolle en duurzame verticale houten delen.
Het plan Hof van Neede
Hof van Neede krijgt een hoogwaardige en duurzame architectuur. De bebouwing op de hoek van de Oudestraat en Hofmaat krijgt een markant karakter. Aan de Oudestraat sluit de bebouwing aan bij het dorpse karakter van de bestaande woningen. Aan de Hofmaat sluiten we juist aan bij de moderne, eigentijdse architectuur van de bestaande bebouwing daar.
Een groen hof met twee prachtige, bestaande bomen bevindt zich in het midden van het geheel. Deze binnentuin zullen we voorzien van diverse wandelpaden en een mooi groen gazon. Groene, volledig dichte erfafscheidingen ontnemen het zicht op het busplein, terwijl de fraaie houten bergingen het zicht op de parkeerplaatsen wegnemen. Hof van Neede wordt voor auto’s ontsloten via de Oudestraat en krijgt een eigen parkeerterrein, met ruime parkeerplaatsen.
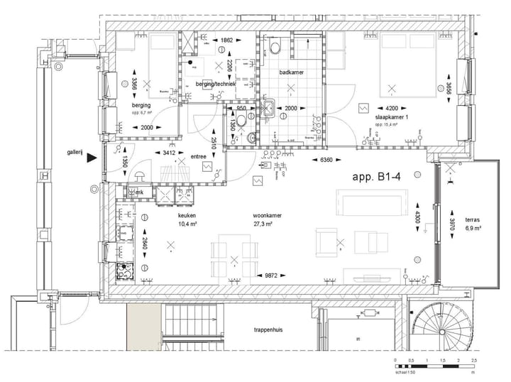
Appartement B1-4
3 kamer appartement 84 m²
Balkon van circa 7 m²
Gelegen op de 1e verdieping
Indeling:
Ruime entree/hal met toilet, slaapkamer/hobbykamer en toegang tot de berging/techniekruimte. Woonkamer met toegang tot het balkon. Royale slaapkamer met aangrenzende badkamer.
Koopsom: € 376.718,- v.o.n. inclusief één parkeerplaats
Technische omschrijving volgens standaard pakket
Features
Transfer of ownership
- Listed since
- Acceptance
- Available in consultation
- Asking price
- € 376,718 vrij op naam
- Asking price per m²
- € 4,485
- Status
- Available
Construction
- Type apartment
- Apartment with shared street entrance (apartment)
- Building type
- New property
- Year of construction
- 2025
- Accessibility
- Accessible for people with a disability and accessible for the elderly
Surface areas and volume
- Areas
- Living area
- 84 m²
- Exterior space attached to the building
- 7 m²
- External storage space
- 5 m²
- Volume in cubic meters
- 277 m³
Layout
- Number of rooms
- 3 rooms (2 bedrooms)
- Number of bath rooms
- 1 bathroom and 1 separate toilet
- Bathroom facilities
- Shower, toilet, and sink
- Number of stories
- 1 story
- Facilities
- Optical fibre, elevator, mechanical ventilation, and passive ventilation system
- Located at
- 2nd floor
Energy
- Energy label
- Insulation
- Roof insulation, insulated walls, floor insulation and completely insulated
- Heating
- Heat pump
- Hot water
- Electrical boiler
Exterior space
- Location
- In centre
Storage space
- Shed / storage
- Detached wooden storage
- Facilities
- Electricity
- Insulation
- No insulation
Parking
- Type of parking facilities
- Parking on private property and public parking
Photos 6
© 2001-2026 funda





