
Description
STARTERSWONING MET VEEL POTENTIE OP RUSTIGE LOCATIE
In een rustige en kindvriendelijke woonomgeving bieden wij namens Woningcorporatie “Oost West Wonen” deze ruime tussenwoning aan, gebouwd in 1985.
Dit is een prima basishuis dat met enkele persoonlijke aanpassingen kan worden omgetoverd tot een fijn thuis.
Met een vrije ligging aan de voorzijde, uitkijkend op een pleintje met alleen bestemmingsverkeer, en aan de achterzijde een ruim speelveld, biedt deze woning een ideale leefomgeving voor starters en gezinnen.
INDELING
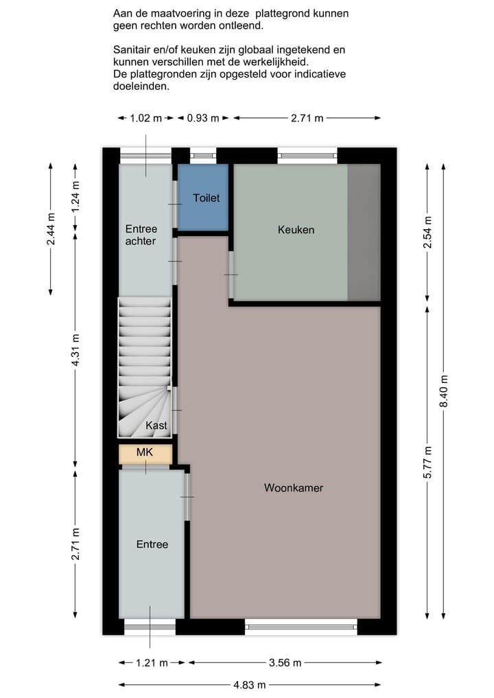
BEGANE GROND
Je betreedt de woning via de entreehal aan de voorzijde, deze is voorzien van de meterkast.
Aan de voorzijde bevindt zich de lichte woonkamer met uitzicht op het rustige pleintje. Hier kun je genieten van veel lichtinval en een prettig vrij uitzicht.
Er bevindt zich een royale trapkast, ideaal voor het opbergen van allerhande spullen.
De afsluitbare keuken is gelegen aan de achterzijde van de woning en voorzien van een lichte keukenopstelling, uitgerust met een oven, afzuigkap en gaskookplaat.
Vanuit de keuken kom je in het achterportaal met een vaste trap naar de eerste verdieping, toegang tot de tuin en een eenvoudig, doch functioneel toilet.
1E VERDIEPING
De overloop biedt toegang tot drie slaapkamers. De eenvoudig uitgevoerde badkamer is praktisch en geeft je de vrijheid om deze volledig naar eigen wens in te richten en af te werken. Denk bijvoorbeeld aan het plaatsen van een inloopdouche, dubbele wastafel of modern sanitair.
2E VERDIEPING
De tweede verdieping beschikt over een bergzolder met een dakvenster aan de achterzijde. Dit is een ideale ruimte voor opslag, hobby’s of wellicht een toekomstige extra kamer. Hier bevindt zich ook de opstelplaats voor de cv-combiketel.
TUIN EN BIJGEBOUW
De achtertuin biedt volop mogelijkheden voor zowel ontspanning als spelende kinderen. Creëer hier je eigen groene oase met een terras, tuinplanten of een gezellige loungehoek. Dankzij de ligging aan het speelveld is er bovendien veel ruimte voor kinderen om veilig buiten te spelen.
LIGGING EN OMGEVING
De woning ligt in een rustige wijk met voornamelijk bestemmingsverkeer, waardoor je hier volop kunt genieten van privacy en rust. Aan de voorzijde ligt een pleintje en aan de achterzijde een groot speelveld.
Middels het gemeenschappelijke pad aan de achterzijde kun je op eenvoudige wijze de fietsen stallen in de berging.
ALGEMENE KENMERKEN
- tussenwoning met stenen berging;
- bouwjaar 1985;
- kunststof ramen en kozijnen, waarin deels dubbele beglazing;
- voorzien van dak-/muur- en vloerisolatie;
- energielabel C;
- de vloeren van de begane grond en de verdiepingen zijn vervaardigd van beton;
- mogelijkheid om de woning geheel naar eigen wens de moderniseren;
- verwarming en warmwatervoorziening via Cv-combiketel (Nefit 2005);
- perceel: circa 147 m² eigen grond;
- gelegen in een rustige, kindvriendelijke woonomgeving;
- oplevering in overleg.
OVERIGE BEPALINGEN VAN TOEPASSING
Overdracht vindt plaats bij Benschop & Figee Netwerk Notarissen.
Zelfbewoningsplicht van toepassing.
Perceel grootte is circa weergegeven en zal zoveel meer of minder zijn als na kadastrale uitmeting zal blijken.
De kosten van het uitmeten bedragen circa € 1000,- en zijn voor rekening van koper.
De woning wordt verkocht middels uitponding, er is derhalve geen roerende goederenlijst en vragenformulier aanwezig.
In de koopovereenkomst wordt opgenomen dat indien Oost West Wonen onderhoud gaat uitvoeren aan goten, daken of andere zaken die bloksgewijs uitgevoerd worden, koper hieraan medewerking verleent en deelneemt.
Er wordt in de koopovereenkomst een eerste recht van terugkoop door Oost West Wonen opgenomen.
De Meetinstructie is gebaseerd op de NEN2580. De Meetinstructie is bedoeld om een meer eenduidige manier van meten toe te passen voor het geven van een indicatie van de gebruiksoppervlakte. De Meetinstructie sluit verschillen in meetuitkomsten niet volledig uit, door bijvoorbeeld interpretatieverschillen, afrondingen of beperkingen bij het uitvoeren van de meting.
Koper wordt geattendeerd op het feit dat verkoper het verkochte niet zelf heeft gebruikt/bewoond en dat hij derhalve koper niet heeft kunnen informeren over eigenschappen van c.q. gebreken aan het verkochte, waarvan hij op de hoogte zou zijn geweest als hij het verkochte zelf feitelijk had gebruikt.
In dit kader zijn partijen uitdrukkelijk overeengekomen dat dergelijke eigenschappen c.q. gebreken voor risico en rekening van koper komen
Gezien het bouwjaar van de onroerende zaak is het mogelijk dat er in het verleden in de onroerende zaak asbesthoudende stoffen/materialen zijn verwerkt. Vroeger was asbest een gebruikelijke toeslagmateriaal. Indien asbesthoudende stoffen/materialen aanwezig zijn dient de koper in geval van verwijdering hiervan die maatregelen en voorzieningen te treffen die de wetgeving voorschrijft. Koper verklaart met deze wetgeving bekend te zijn en vrijwaart de verkoper voor alle aansprakelijkheid die uit de aanwezigheid van enig asbesthoudende materialen in en/of de verwijdering van asbest en/of asbesthoudende materialen uit de desbetreffende onroerende zaak kan voortvloeien.
De kandidaat/koper verklaart ermee bekend te zijn dat indien het verkochte (en de bijgebouwen) circa 40 jaar oud zijn, de eisen die aan de bouwkundige kwaliteit gesteld mogen worden, lager liggen dan die voor nieuwere woningen. Verkoper staat niet in voor fundering, vloeren, leidingen van elektriciteit, water, gas, riolering en de aanwezigheid van doorslaand en/of optrekkend vocht. Bouwkundige gebreken worden geacht niet belemmerend te werken op het in artikel 6.3 (van de koopakte) omschreven (woon)gebruik en met ingang van de datum van de eigendomsoverdracht vrijwaart de koper de verkoper voor bekende en onbekende, zichtbare en onzichtbare gebreken.
Features
Transfer of ownership
- Last asking price
- € 220,000 kosten koper
- Asking price per m²
- € 2,716
- Status
- Sold
Construction
- Kind of house
- Single-family home, row house
- Building type
- Resale property
- Year of construction
- 1985
- Type of roof
- Gable roof covered with roof tiles
Surface areas and volume
- Areas
- Living area
- 81 m²
- Other space inside the building
- 9 m²
- External storage space
- 6 m²
- Plot size
- 147 m²
- Volume in cubic meters
- 305 m³
Layout
- Number of rooms
- 4 rooms (3 bedrooms)
- Number of bath rooms
- 1 bathroom and 1 separate toilet
- Bathroom facilities
- Shower and sink
- Number of stories
- 2 stories and an attic
- Facilities
- Outdoor awning and skylight
Energy
- Energy label
- C
- Insulation
- Roof insulation, partly double glazed, insulated walls and floor insulation
- Heating
- CH boiler
- Hot water
- CH boiler
- CH boiler
- Nefit ( combination boiler from 2005, in ownership)
Cadastral data
- NIEUWE TONGE B 1875
- Cadastral map
- Area
- 147 m² (part of parcel)
- Ownership situation
- Full ownership
Exterior space
- Location
- In residential district
- Garden
- Back garden
- Back garden
- 66 m² (13.00 metre deep and 5.05 metre wide)
- Garden location
- Located at the north with rear access
Storage space
- Shed / storage
- Detached brick storage
- Facilities
- Electricity
- Insulation
- No insulation
Parking
- Type of parking facilities
- Public parking
Photos 26
© 2001-2025 funda

























