This house on Funda: https://www.funda.nl/en/detail/koop/oosterend-nh/huis-peperstraat-28/88970301/

Peperstraat 281794 AL Oosterend (NH)Oosterend
Price on request
Description
MOMENTEEL GEEN BEZICHTIGINGEN MOGELIJK.
Gelegen in het hart van het dorpscentrum een royaal, karakteristiek, en keurig onderhouden woonhuis op een perceel eigen grond van 211 m². Met achtergelegen sfeervolle en goed verzorgde tuin, ligging op het zuiden, voorzien van diverse beplantingen en borders.
Indeling
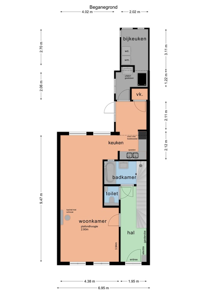
Sfeervolle hal/entree met statige trapopgang, modern vrij hangend toilet, een gezellige woonkamer voorzien van knusse houtkachel. Via de hal ook toegang tot de badkamer voorzien van ligbad, douche en wastafel. Een half open karakteristieke keuken voorzien van de benodigde inbouwapparatuur. Vanuit de keuken loopt u door naar de bijkeuken met opstelling voor wassen en drogen, tevens een bergzolder met nog voldoende opbergruimte.
Eerste verdieping
Op de verdieping: Een ruime overloop en 4 prima slaapkamers. Tevens op de verdieping een separaat toilet met wastafelmeubel en aansluiting voor een eventueel te plaatsen 2e douche, vaste trap naar zolder met kamer en veel bergruimte.
Tweede verdieping
Vaste trap naar zolder met kamer en veel bergruimte.
Tuin
In de beschutte achtergelegen tuin heeft u veel privacy en er bevindt zich een houten schuurtje/berging voorzien van elektra.
Er is een poort met toegang naar de Oranjestraat.
Bijzonderheden
Het woonhuis wordt verwarmd door middel van een HR CV ketel (2019) en tevens voorzien van nieuwe radiatoren. Een aansluiting voor vloerverwarming is aanwezig.
Dit sfeervolle woonhuis is voorzien van isolatie en rondom geschilderd in 2019.
Features
Transfer of ownership
- Listed since
- Acceptance
- Available in consultation
- Asking price
- Price on request
- Status
- Available
Construction
- Kind of house
- Single-family home, row house
- Building type
- Resale property
- Year of construction
- 1910
- Type of roof
- Gable roof covered with roof tiles
Surface areas and volume
- Areas
- Living area
- 169 m²
- External storage space
- 30 m²
- Plot size
- 211 m²
- Volume in cubic meters
- 534 m³
Layout
- Number of rooms
- 6 rooms (4 bedrooms)
- Number of bath rooms
- 2 bathrooms and 1 separate toilet
- Bathroom facilities
- Shower, bath, sink, toilet, and washstand
- Number of stories
- 3 stories
Energy
- Energy label
- Not available
- Heating
- CH boiler and wood heater
- Hot water
- CH boiler
- CH boiler
- Combination boiler from 2019
Cadastral data
- OOSTEREND D 4739
- Cadastral map
- Area
- 211 m²
Exterior space
- Garden
- Back garden
Photos 46
© 2001-2026 funda













































