This house on Funda: https://www.funda.nl/en/detail/koop/polsbroek/huis-damweg-237/42036142/

Description
KOMT HIER UW DROOMHUIS TE STAAN?
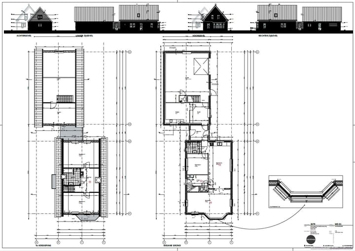
Op de kruising tussen de plaatsen Polsbroek, Benschop, Cabauw en Oudewater treft u deze vrijstaande woning op een perceel van circa 612 m2 groot. Gezien de huidige staat van de woning leent de locatie zich uitstekend om hier uw woondromen te verwezenlijken. Er is reeds een vergunning aanwezig voor het realiseren van een vrijstaande woning met een bijgebouw zoals afgebeeld in de presentatie.
Een ideale gelegenheid voor wie heerlijk landelijk wil wonen en toch alle voorzieningen dichtbij huis wil hebben. Oudewater ligt namelijk op fietsafstand.
Perceeloppervlakte:
Het perceel is ca. 612 m2 groot en zal nog definitief worden ingemeten.
Bestemmingsplan:
Conform de regels van het bestemmingsplan Damweg/Noordzijdseweg. Het volledige perceel heeft de bestemming Wonen. De afgebeelde voorbeeldwoning, waar reeds een omgevingsvergunning voor is afgegeven, heeft een inhoud van ca. 620 m3 en een woonoppervlakte van ca. 164 m2. Binnen de mogelijkheden van het bestemmingsplan kunt u ook voor een ander woningtype te kiezen.
Bijzonderheden:
- Het perceel zal nog kadastraal worden ingemeten.
- Een rapportage voor bodemonderzoek is reeds aanwezig.
- U koopt het perceel met de huidige opstallen en alles wat zich er verder bevindt.
- U koopt de woning en overige aanhorigheden in de staat “as is, where is”
- Verstoep Bouwadvies en Architectuur uit Schoonhoven heeft de eventueel nieuw te realiseren woning getekend.
- Voor een indruk van de bestaande woning verwijzen wij u graag naar de bijgevoegde plattegronden.
- De woning vormt een prima uitvalsbasis voor woon-werkverkeer richting de (grote) steden in de Randstad waaronder Woerden, Utrecht, Rotterdam en Den Haag met uitvalswegen zoals A12, A2 en diverse N-wegen in de directe omgeving. Het centrum van Lopik en Oudewater met een leuk winkel- en horeca aanbod bevindt zich op fietsafstand. Tevens een goede uitvalsbasis voor schitterende wandel- en fietsroutes.
- Aanvaarding: in overleg (kan spoedig)
Locatie:
Polsbroekerdam is een dorp in de gemeente Lopik en is gelegen in de polder van de Lopikerwaard. De gemeente Lopik ligt in het Groene Hart van Nederland en is met een oppervlakte van 7.940 ha één van de grootste gemeenten in de provincie Utrecht. Over een lengte van ongeveer 18 kilometer wordt de gemeente Lopik aan de zuidkant begrensd door de rivier de Lek met haar fraaie uiterwaarden, aan de noordkant door de Hollandsche IJssel waaraan gelegen Montfoort en Oudewater, aan de oostkant door IJsselstein en aan de westkant door Schoonhoven. Polsbroekerdam is gelegen aan een verkeersluwe weg en is op korte afstand aangesloten op het wegennet o.a. A12 en A2. De busverbinding is op loopafstand. Dichtstbijzijnde scholen voor lager onderwijs treft u op korte afstand in de dorpskernen van Polsbroek, Benschop, Oudewater en zelfs op loopafstand in Polsbroekerdam. Middelbaar Onderwijs vindt u in Schoonhoven en Woerden.
Toelichtingsclausule BBMI: de woning is ingemeten conform de branchebrede meetinstructies (BBMI), afgeleid van de NEN 2580 normering. De Meetinstructie is bedoeld om een meer eenduidige manier van meten toe te passen voor het geven van een indicatie van de gebruiksoppervlakte. De Meetinstructie sluit verschillen in meetuitkomsten niet volledig uit, door bijvoorbeeld interpretatieverschillen, afrondingen of beperkingen bij het uitvoeren van de meting.
Features
Transfer of ownership
- Last asking price
- € 380,000 kosten koper
- Asking price per m²
- € 2,123
- Status
- Sold
Construction
- Kind of house
- Single-family home, detached residential property
- Building type
- Resale property
- Year of construction
- 1930
- Type of roof
- Gable roof covered with roof tiles
Surface areas and volume
- Areas
- Living area
- 179 m²
- Other space inside the building
- 18 m²
- Plot size
- 612 m²
- Volume in cubic meters
- 720 m³
Layout
- Number of rooms
- 6 rooms (5 bedrooms)
- Number of bath rooms
- 1 bathroom and 1 separate toilet
- Bathroom facilities
- Bath
- Number of stories
- 2 stories and a loft
- Facilities
- Flue
Energy
- Energy label
- G
Cadastral data
- LOPIK D 33
- Cadastral map
- Area
- 612 m²
- Ownership situation
- Full ownership
Exterior space
- Location
- Rural and unobstructed view
- Garden
- Surrounded by garden
Storage space
- Shed / storage
- Attached wooden storage
Parking
- Type of parking facilities
- Parking on private property
Photos 19
© 2001-2025 funda


















