
Description
In het levendige centrum van Purmerend ligt dit verzorgde 2-kamerappartement (ca. 84 m²) met een zonnig dakterras op het zuidoosten. De woning beschikt over één slaapkamer (voorheen 2 slaapkamers), een lichte woonkamer met grote raampartijen, een moderne badkamer en een eigen berging. Dankzij het energielabel A en de centrale ligging is dit appartement zeer geschikt voor starters of een jong stel dat comfortabel en stedelijk wil wonen.
Alle voorzieningen liggen op loopafstand: winkels, restaurants, het treinstation en sportvoorzieningen zijn binnen handbereik. Ook met de auto bent u snel op de uitvalswegen richting Amsterdam en Zaandam.
De indeling is als volgt:
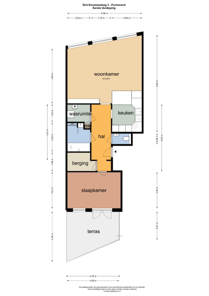
Via de gedeelde hoofdingang (slechts gedeeld met één andere woning) bereikt u het appartement. De entree leidt naar een hal met toegang tot alle vertrekken. De woonkamer is opvallend licht dankzij de grote raampartijen aan de voorzijde en de hoge plafonds. Vanaf hier heeft u uitzicht op het centrum van Purmerend. De royale open keuken is uitgevoerd in een rode kleurstelling en voorzien van diverse inbouwapparatuur.
De slaapkamer bevindt zich aan de rustige achterzijde. Vanuit hier heeft u toegang tot het dakterras. Dit terras ligt op het noordoosten en is een fijne plek om van de zon te genieten.
De moderne badkamer is uitgerust met een ligbad, een inloopdouche en een enkele wastafel. Het toilet is separaat. Verder is er nog een inloopbergkast en een technische ruimte met de meterkast en de cv-ketel.
Ook beschikt het appartement over een eigen berging met elektra, op de begane grond.
Bijzonderheden:
• Woonoppervlakte ca. 84 m²
• Energielabel A
• Grote raampartijen en hoge plafonds in de woonkamer met uitzicht op de winkelstraat
• Eén slaapkamer met directe toegang tot het dakterras
• Dakterras op het noordoosten
• Eigen berging op de begane grond
• Gedeelde entree met slechts één andere woning
• Gelegen in hartje Purmerend
• VVE aanwezig
• Servicekosten € 100,-- per maand
• Oplevering in overleg
Bent u op zoek naar een licht en efficiënt ingedeeld appartement met fijne buitenruimte op een toplocatie? Neem dan contact op met Teunisse Makelaars voor een bezichtiging. Wij laten u de woning graag zien.
Features
Transfer of ownership
- Service charges
- € 100 per month
- Last asking price
- € 365,000 kosten koper
- Asking price per m²
- € 4,345
- Status
- Sold
Construction
- Type apartment
- Upstairs apartment (apartment)
- Building type
- Resale property
- Year of construction
- 1998
- Specific
- Partly furnished with carpets and curtains
- Type of roof
- Hipped roof covered with roof tiles
- Quality marks
- Energie Prestatie Advies
Surface areas and volume
- Areas
- Living area
- 84 m²
- Exterior space attached to the building
- 16 m²
- External storage space
- 7 m²
- Volume in cubic meters
- 257 m³
Layout
- Number of rooms
- 2 rooms (1 bedroom)
- Number of bath rooms
- 1 bathroom and 1 separate toilet
- Bathroom facilities
- Shower, bath, and sink
- Number of stories
- 1 story
- Facilities
- Mechanical ventilation
- Located at
- 1st floor
Energy
- Energy label
- A
- Insulation
- Double glazing, insulated walls and floor insulation
- Heating
- CH boiler
- Hot water
- CH boiler
- CH boiler
- Vaiilant (gas-fired combination boiler from 2010, in ownership)
Cadastral data
- PURMEREND C 3923
- Cadastral map
- Ownership situation
- Full ownership
Exterior space
- Location
- In centre
- Garden
- Sun terrace
- Balcony/roof terrace
- Roof terrace present
Storage space
- Shed / storage
- Storage box
- Facilities
- Electricity
Parking
- Type of parking facilities
- Paid parking and resident's parking permits
VVE (Owners Association) checklist
- Registration with KvK
- Yes
- Annual meeting
- Yes
- Periodic contribution
- Yes
- Reserve fund present
- Yes
- Maintenance plan
- Yes
- Building insurance
- Yes
Photos 29
© 2001-2025 funda




























