This house on Funda: https://www.funda.nl/en/detail/koop/putten/huis-arkemheenseweg-6/43165895/

Arkemheenseweg 63882 NV PuttenVerspreide huizen Norden, Bijsteren en Hoef
€ 2,950,000 k.k.
Eye-catcherRietgedekte woonboerderij met diverse bijgebouwen
Description
BUITENGEWOON WONEN!
Bouwjaar: 1899 originele boerderij verbouwjaar 2005-2007
Inhoud: 1253 m³
Woonoppervlakte: 357 m²
Perceeloppervlakte: 21225 m²
Bijgebouwen: 642 m²
Harmonieuze mix van geschiedenis en moderniteit.
Ontdek de perfecte combinatie van historische charme en eigentijds comfort van deze unieke rietgedekte riante woonboerderij met diverse royale bijgebouwen.
Het landelijke perceel van maar liefst ruim 2 ha. is weldoordacht ingericht met de woonboerderij en loods/garage met aangrenzende carport en berging als middelpunt.
De indeling van het erf heeft een knusse uitstraling en tegelijkertijd een open karakter waar privacy, functionaliteit en bereikbaarheid zijn gecombineerd. Aan de achterzijde van het perceel bevinden zich de faciliteiten voor het hobbymatig houden van paarden/kleinvee, waaronder het royale bijgebouw met paardenstallen en fourage opslag. Aan de linkerzijde van de oprit bevindt zich een ruim bijgebouw (thans verhuurd), ideaal gelegen met veel privacy en eigen parkeergelegenheid.
De in 1899 gebouwde karakteristieke boerderij heeft in de periode 2005-2007 een complete metamorfose ondergaan, met een verbluffend eindresultaat. Er is op fantastische wijze met een moderne glazen doorgang/serre een verbinding gemaakt tussen de boerderij en het rietgedekte voormalige bijgebouw. Hierdoor heeft de stijlvolle, moderne woonboerderij een zee aan ruimte en een verrassende indeling gekregen. Een prachtig geheel waar historie, licht en leef comfort naadloos samenkomen op een fijne landelijke locatie.
Begane grond: de uitnodigende centrale hal heeft aan beide zijde dubbele taatsdeuren. In de fantastische woon-/leefruimte is een perfecte balans gecreëerd tussen het moderne hedendaagse comfort en de authentieke details met behoud van de uitstraling van een boerderij. Centraal in de royale leefruimte staat een mooi op maat gemaakt element met daarin de markante doorkijk gashaard, zo is het in de hele ruimte genieten van de gezellige warmte. Vanuit de centrale hal is via de indrukwekkende glazen doorgang/serre de luxueuze woonkeuken bereikbaar. Er is hier op sublieme wijze een verbinding met het voormalige bijgebouw en het buitenleven gecreëerd. Ook de keuken heeft een moderne look en is van alle gemakken en luxe voorzien. Daarnaast is er ook nog een praktische bijkeuken met achterentree.
De eigentijdse badkamer is zeer ruim van opzet en heeft mede door de dakconstructie een speelse vormgeving. Alle ingrediënten om te ontspannen en je op te frissen zijn hier aanwezig. Zo is er een whirlpool ligbad, stoom- douchecabine, sauna, 2 wastafels, designradiator en een vaste kastenwand.
De bijzondere Velux dakramen zorgen voor een heerlijke lichtinval. Ook zijn hier 4 unieke (slaap)kamers met eigen vaste trap naar een slaapvide. Alle kamers hebben een aangename frisse uitstraling en zijn afgewerkt in dezelfde moderne stijl met een gietvloer en betonlook stuc wanden.
Daarnaast beschikken alle kamers over een wastafel, vaste schuifkastenwand en een dakkapel.
Daarnaast bevinden zich nog 2 bijzondere vertrekken op de 1e verdieping. In de vide boven de keuken is een extra zithoek gesitueerd, deze is vanuit de keuken met een vaste trap bereikbaar. De royale, verrassende master bedroom is met een vaste trap vanuit de centrale hal te bereiken en bevindt zich boven de woon-/leefruimte.
Het royale bijgebouw met verdieping past perfect bij de uitstraling van de woonboerderij. Met een oppervlakte van ruim 225 m² en vele extra faciliteiten zijn de mogelijkheden hier talrijk. Het royale bijgebouw met paardenstallen, fourage opslag, buitenbak met verlichting en genoeg ruimte voor een weiland maken het zeer geschikt voor de paarden liefhebber. Maar uiteraard is dit bijgebouw ook, indien wenselijk voor andere doeleinden geschikt.
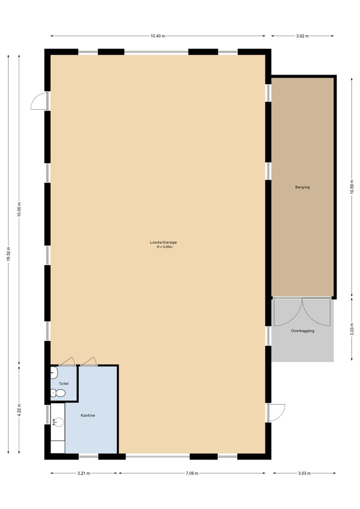
De royale loods/garage met aangrenzende berging en carport is voorzien van een aantal faciliteiten, te weten: elektra, krachtstroom, uitstortbak, gaskachel, vliering en grondwaterpomp voor beregening. De berging is zowel van binnenuit de loods/garage als van buitenaf via een aparte loopdeur toegankelijk.
Tevens bevindt zich op het perceel nog een derde royaal bijgebouw/loods met diverse faciliteiten. De gunstige ligging op het perceel en de bijbehorende parkeergelegenheid maken het uitermate geschikt voor (eventuele) verhuur. Maar uiteraard is de loods ook, indien wenselijk, voor eigen gebruik en/of andere doeleinden geschikt.
Features
Transfer of ownership
- Listed since
- Acceptance
- Available in consultation
- Asking price
- € 2,950,000 kosten koper
- Asking price per m²
- € 8,263
- Status
- Available
Construction
- Kind of house
- Converted farmhouse, detached residential property
- Building type
- Resale property
- Year of construction
- 1899
- Type of roof
- Combination roof covered with other, roof tiles and cane
Surface areas and volume
- Areas
- Living area
- 357 m²
- External storage space
- 642 m²
- Plot size
- 21,225 m²
- Volume in cubic meters
- 1,253 m³
Layout
- Number of rooms
- 7 rooms (5 bedrooms)
- Number of bath rooms
- 3 bathrooms
- Bathroom facilities
- Sauna, double sink, walk-in shower, bath, steam cabin, 2 toilets, 2 urinals, and 2 sinks
- Number of stories
- 2 stories
- Facilities
- Skylight, mechanical ventilation, flue, sauna, and sliding door
Energy
- Energy label
- D
- Insulation
- Roof insulation, mostly double glazed, insulated walls and floor insulation
- Heating
- CH boiler and gas heater
- Hot water
- CH boiler
- CH boiler
- Nefit Ecomline HR (gas-fired combination boiler from 2004, in ownership)
Cadastral data
- PUTTEN N 1888
- Cadastral map
- Area
- 4,500 m²
- Ownership situation
- Full ownership
- PUTTEN N 1889
- Cadastral map
- Area
- 11,300 m²
- Ownership situation
- Full ownership
- PUTTEN N 3921
- Cadastral map
- Area
- 5,425 m²
- Ownership situation
- Full ownership
Exterior space
- Location
- Outside the built-up area and rural
- Garden
- Surrounded by garden
Storage space
- Shed / storage
- Detached brick storage
- Facilities
- Loft, electricity, heating and running water
Garage
- Type of garage
- Detached brick garage
- Capacity
- 1 car
- Facilities
- Electrical door, loft, electricity, heating and running water
- Insulation
- Roof insulation and insulated walls
Parking
- Type of parking facilities
- Parking on private property
Photos 50
Floorplans 8
© 2001-2025 funda

























































