This house on Funda: https://www.funda.nl/en/detail/koop/retranchement/huis-dorpsstraat-41/43610079/

Dorpsstraat 414525 AG RetranchementRetranchement
€ 625,000 k.k.
Description
Deze goed onderhouden en instapklare vrijstaande woning, gelegen op een perceel eigen grond van 572 m², biedt een prachtig vrij uitzicht over het natuurgebied bij Retranchement. De woning is levensloopbestendig en beschikt over twee slaapkamers, twee badkamers, een serre en een vrijstaande garage.
Indeling:
Begane grond:
Bij binnenkomst treedt u binnen in een ruime hal met een sfeervolle houten vloer, een toiletruimte, en een trap naar de eerste verdieping. De L-vormige, lichte woonkamer biedt een schitterend uitzicht op het natuurgebied en is voorzien van een laminaatvloer en openslaande deuren naar de serre. De serre (2,8 x 5,1 m) is uitgerust met een tegelvloer en elektrische vloerverwarming, en heeft een schuifpui die toegang biedt tot de tuin. De keuken is voorzien van een losstaand elektrisch fornuis, een koelkast en een losse vaatwasser. Ook vanuit de keuken is de serre toegankelijk. Verder bevindt zich op de begane grond een slaapkamer en een badkamer met inloopdouche, wastafelmeubel en aansluiting voor de wasmachine.
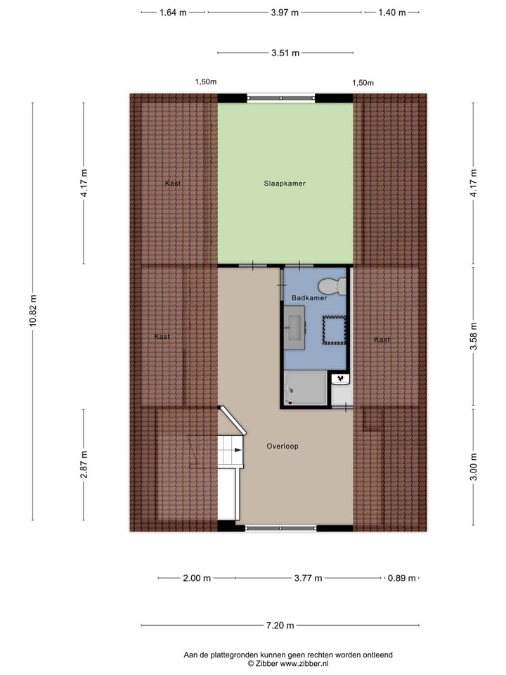
Eerste verdieping:
Op de eerste verdieping vindt u een ruime overloop met mogelijkheden voor extra slaapruimte, een royale slaapkamer en een badkamer met douche, wastafelmeubel en een tweede toilet. De badkamer is zowel bereikbaar via de overloop als de slaapkamer. Onder de schuine daken is extra bergruimte gecreëerd.
Tuin:
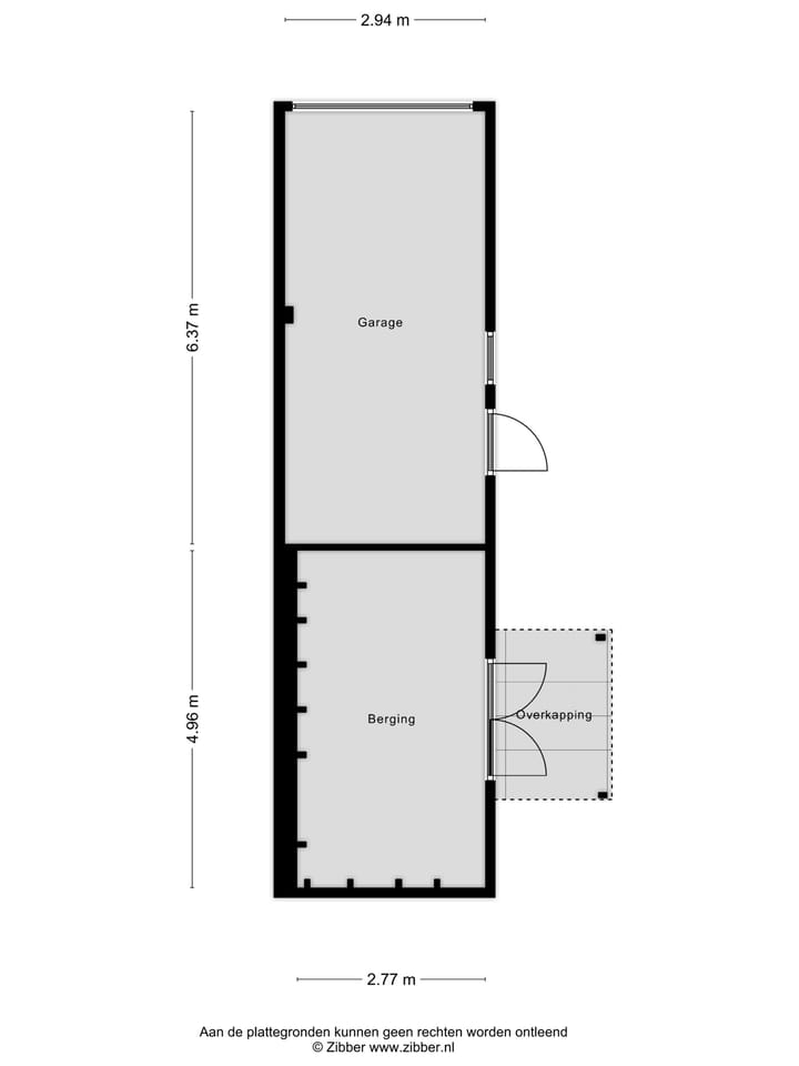
De achtertuin biedt veel privacy en aan de zijkant van de woning ligt de vrijstaande garage met elektrische roldeur en een berging met elektra, en een luifel. Aan de achterzijde van de woning is een elektrisch zonnescherm geïnstalleerd. De lange oprit biedt voldoende ruimte om meerdere auto's te parkeren.
Deze woning combineert comfort, ruimte en een prachtige ligging bij het natuurgebied
Bijzonderheden:
- CV-Ketel: HR Combi 2022
- Fantastisch vrij uitzicht naar natuurgebied
- Elektrische rolluiken aan zijkant woning
- Instapklaar
Features
Transfer of ownership
- Original asking price
- € 675,000 kosten koper
- Listed since
- Acceptance
- Available immediately
- Asking price
- € 625,000 kosten koper
- Asking price per m²
- € 5,252
- Status
- Available
Construction
- Kind of house
- Single-family home, detached residential property
- Building type
- Resale property
- Year of construction
- 1964
- Type of roof
- Gable roof covered with roof tiles
Surface areas and volume
- Areas
- Living area
- 119 m²
- External storage space
- 31 m²
- Plot size
- 572 m²
- Volume in cubic meters
- 425 m³
Layout
- Number of rooms
- 3 rooms (2 bedrooms)
- Number of bath rooms
- 2 bathrooms and 1 separate toilet
- Bathroom facilities
- Walk-in shower, 2 washstands, shower, and toilet
- Number of stories
- 2 stories
- Facilities
- Outdoor awning and rolldown shutters
Energy
- Energy label
- F
- Insulation
- Double glazing
- Heating
- CH boiler and partial floor heating
- Hot water
- CH boiler
- CH boiler
- HR Combi (gas-fired combination boiler from 2022, in ownership)
Cadastral data
- SLUIS K 47
- Cadastral map
- Area
- 572 m²
- Ownership situation
- Full ownership
Exterior space
- Location
- Alongside a quiet road, rural, open location and unobstructed view
- Garden
- Surrounded by garden
Storage space
- Shed / storage
- Outside plastic storage cabinet
- Facilities
- Electricity
Garage
- Type of garage
- Detached brick garage
- Capacity
- 1 car
- Facilities
- Electrical door and electricity
Parking
- Type of parking facilities
- Parking on private property and public parking
Photos 38
© 2001-2025 funda





































