This house on Funda: https://www.funda.nl/en/detail/koop/rheezerveen/huis-oldemeijerweg-6/43167303/

Description
Vrijstaande woning met bedrijfsgebouwen en perceel in bosrijk gebied
Deze woning met bijbehorende schuur (98 m²) en kantoorruimte (156 m²) is gelegen op een perceel van 4.420 m² in een bosrijk gebied, direct aan de provinciale weg tussen Hardenberg en Ommen. De locatie heeft de bestemming 'Maatschappelijk', waardoor het enkel geschikt is voor gebruikers uit de groene sector, zoals boomverzorging, hoveniersbedrijven en bosonderhoud. De woning beschikt over een woonbestemming en is eenvoudig van uitvoering.
Locatie:
De woning bevindt zich in een rustige, natuurlijke omgeving met uitzicht op het omliggende bos en ligt in de nabijheid van recreatieplas De Oldemeijer. De ligging biedt de mogelijkheid om te genieten van de natuurlijke omgeving en de rust die het gebied biedt.
Grond en erfpacht:
De grond waarop de woning en bedrijfsgebouwen staan, wordt uitgegeven in erfpacht op basis van de erfpachtvoorwaarden van Staatsbosbeheer 2022 (AV2022) voor een periode van 30 jaar. De eigendom van de grond blijft bij Staatsbosbeheer. De erfpachter betaalt jaarlijks een canon. Nadere informatie over de erfpachtvoorwaarden wordt tijdens de bezichtiging verstrekt.
Indeling woning:
Begane grond: hal, toilet, douche, woonkamer, slaap-/studeerkamer, kelder
Eerste verdieping: twee slaapkamers
Bedrijfsgebouwen;
De kantoorruimte bestaat uit vier vertrekken en is voorzien van drie toiletten. Op de zolderverdieping bevindt zich extra opslagruimte en een extra kantoorruimte. De bedrijfsgebouwen zijn in hout gebouwd en goed onderhouden. De werkschuur beschikt over drie roldeuren en een loopdeur, waardoor de bereikbaarheid uitstekend is.
Het perceel heeft een toegangsweg die verhard is met grasstenen, wat zorgt voor een goede toegang en gemakkelijke bereikbaarheid.
Verkoopprocedure:
Geïnteresseerden worden uitgenodigd om een schriftelijk bod met motivatie in te dienen. Bezichtigen kunnen plaatsvinden op nader te bepalen data voor gegadigden die met bedrijfsvoering en plannen passen binnen de bestemming en wensen van onze opdrachtgever. Dit wordt vooraf met u besproken.
Features
Transfer of ownership
- Listed since
- Acceptance
- Available in consultation
- Asking price
- € 325,000 kosten koper
- Asking price per m²
- € 3,095
- Status
- Under offer
Construction
- Kind of house
- Single-family home, detached residential property
- Building type
- Resale property
- Year of construction
- 1934
- Type of roof
- Gable roof
Surface areas and volume
- Areas
- Living area
- 105 m²
- External storage space
- 354 m²
- Plot size
- 4,420 m²
- Volume in cubic meters
- 362 m³
Layout
- Number of rooms
- 4 rooms (3 bedrooms)
- Number of bath rooms
- 1 separate toilet
- Number of stories
- 2 stories
Energy
- Energy label
- G
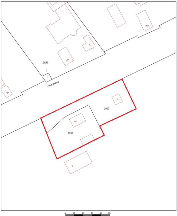
Cadastral data
- AMBT-HARDENBERG K 3097
- Cadastral map
- Area
- 2,350 m²
- Ownership situation
- Long-term lease
- AMBT-HARDENBERG K 3096
- Cadastral map
- Area
- 2,070 m²
- Ownership situation
- Long-term lease
Exterior space
- Location
- On the edge of a forest
- Garden
- Surrounded by garden
Storage space
- Shed / storage
- Detached wooden storage
- Facilities
- Loft, electricity, heating and running water
Garage
- Type of garage
- Detached wooden garage
- Capacity
- 4 cars
Parking
- Type of parking facilities
- Parking on private property
Photos 84
Floorplans 6
© 2001-2025 funda

























































































