
Description
Gelegen op de tweede verdieping van een goed onderhouden complex, biedt dit royale 2-kamerappartement een uitstekende combinatie van comfort, ruimte en een centrale ligging op de hoek van de Admiraal de Ruyterweg. Op korte loopafstand van de levendige Meent, bevindt u zich midden in het bruisende stadsleven met alle voorzieningen binnen handbereik. Het appartement beschikt over een ruime en lichte woonkamer met maar liefst 2,80 meter hoge plafonds, 2 balkons, een royale slaapkamer, een verzorgde keuken en een ruime badkamer. Daarnaast is er een praktische berging in de onderbouw aanwezig met een grote inbouwkast. Dankzij de dubbele beglazing, allemaal in 2019 vernieuwd met HR++ glas, is er sprake van goede isolatie, wat bijdraagt aan een aangenaam woonklimaat mede door het nieuwe ventilatiesysteem in elke kamer. Een extra pluspunt is de aanwezigheid van een lift, die zorgt voor optimaal gemak en toegankelijkheid.
De locatie is perfect! Alle grootstedelijke voorzieningen liggen op loopafstand. De diversiteit aan mode- en woonwinkels, de waanzinnige keuze aan leuke en hippe eettentjes, chique restaurants en toffe bars is oneindig. De Markthal, de koopgoot, noem het maar op en je vindt het in de buurt. Je stapt zo op tram/bus/metro of parkeer als bewoners voor de deur tegen een laag tarief. Hier wil je wonen!
Indeling
Begane grond:
Afgesloten entree met portaal, videofoon installatie, lift en trappenhuis. Toegang naar berging in de onderbouw.
Tweede verdieping:
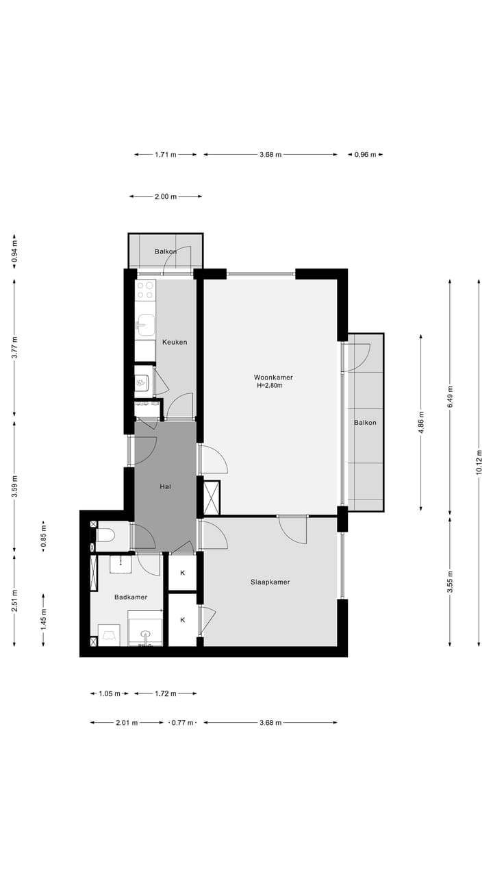
Entree, hal en toilet. De sfeervolle woonkamer met hoekligging is voorzien van grote raampartijen die zorgen voor veel lichtinval en biedt toegang tot het brede balkon op het Zuiden met vrij uitzicht. De afgesloten keuken heeft een neutrale afwerking en beschikt over veel kastruimte. Vanuit de keuken is het tweede balkon bereikbaar. De slaapkamer is ruim en praktisch ingedeeld. De nette badkamer is uitgerust met een douche, wastafel en aansluiting voor de wasmachine.
Berging in de onderbouw.
Bijzonderheden
- Bouwjaar 1951
- Energielabel D
- Woonoppervlakte 61 m²
- Eigen grond
- Waanzinnig leuk, groot 2 kamer hoek-appartement met een prachtige lichtinval
- Gelegen op een perfecte locatie op de hoek van alle denkbare voorzieningen
- Verwarming via HR CV-Combi ketel (Remeha Tzerra)
- Geheel voorzien van HR ++ glas en geïsoleerde kozijnen
- Nieuw ventilatiesysteem in elke kamer
- Gehele appartement heeft een mooie laminaatvloer
- In de koopakte zal er een ouderdomsclausule worden opgenomen en een niet-bewonersclausule
- Er is geen vragenlijst beschikbaar
- Projectnotaris Kooijman Autar
- De Vereniging van Eigenaars is geactiveerd. Er wordt nog een maandelijkse bijdrage vastgesteld. De huidige eigenaar is thans bezig met een optimalisatie van de splitsing van het gebouw
Wij zijn de makelaar van de verkoper. Wij adviseren u uw eigen makelaar mee te nemen voor uw belangenbehartiging bij de aankoop van uw toekomstig huis.
Aan deze aanbieding kunnen geen rechten worden ontleend.
Features
Transfer of ownership
- Last asking price
- € 325,000 kosten koper
- Asking price per m²
- € 5,328
- Status
- Sold
Construction
- Type apartment
- Apartment with shared street entrance (apartment)
- Building type
- Resale property
- Year of construction
- 1951
- Type of roof
- Flat roof covered with asphalt roofing
Surface areas and volume
- Areas
- Living area
- 61 m²
- Exterior space attached to the building
- 7 m²
- External storage space
- 3 m²
- Volume in cubic meters
- 216 m³
Layout
- Number of rooms
- 2 rooms (1 bedroom)
- Number of bath rooms
- 1 bathroom and 1 separate toilet
- Bathroom facilities
- Shower and sink
- Number of stories
- 1 story
- Facilities
- Elevator
- Located at
- 2nd floor
Energy
- Energy label
- D
- Insulation
- Double glazing
- Heating
- CH boiler
- Hot water
- CH boiler
- CH boiler
- Remeha Tzerra (gas-fired combination boiler, in ownership)
Cadastral data
- ROTTERDAM AD 660
- Cadastral map
- Ownership situation
- Full ownership
Exterior space
- Location
- In centre
- Balcony/roof terrace
- Balcony present
Storage space
- Shed / storage
- Storage box
- Facilities
- Electricity
Parking
- Type of parking facilities
- Paid parking, public parking and resident's parking permits
VVE (Owners Association) checklist
- Registration with KvK
- Yes
- Annual meeting
- Yes
- Periodic contribution
- Yes
- Reserve fund present
- Yes
- Maintenance plan
- Yes
- Building insurance
- Yes
Photos 21
© 2001-2026 funda




















