
Oranjeboomstraat 50-B3071 BB RotterdamFeijenoord
€ 450,000 k.k.
Description
Aan de Oranjeboomstraat 50B bevindt zich deze ruime en lichte beneden- en bovenwoning met heerlijke ligging!
Dankzij de flexibele indeling biedt deze woning volop mogelijkheden voor uiteenlopende woon- en werkvormen of het realiseren van extra slaapkamers of te gebruiken als twee appartementen. Bovendien is de woning uitermate geschikt om een gedeelte als zelfstandige woonruimte te gebruiken, bijvoorbeeld voor ouder(s) of (volwassen) kinderen. Daarnaast biedt de begane grond de mogelijkheid om een bedrijf of praktijk aan huis te vestigen.
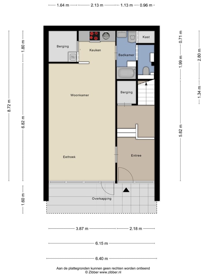
Middels de entree met garderobekast krijgt u toegang tot de beneden verdieping en trapopgang naar de eerste verdieping.
Beneden geeft de open keuken toegang tot de betegelde badkamer en de separate betegelde toiletruimte. Naast de keuken bevindt zich een bergruimte.
Middels de vaste trap bereikt u de eerste verdieping waar u bij de verschillende vertrekken komt.
De ruime en lichte woonkamer is gesitueerd aan de voorzijde van de woning en biedt toegang tot het zonnige en brede balkon met vrij uitzicht.
De ruime lichte woonkamer was eerst woonkamer met een separate slaapkamer maar bestaat nu in zijn geheel uit een ruime woonkamer. Dit kunt u altijd weer terugbrengen.
Het balkon is gelegen op het zuidwesten. De ruime open keuken in L-opstelling is voorzien van divers inbouwapparatuur, zoals inductiekookplaat, oven en afwasmachine. De slaapkamer bevindt zich aan de achterzijde van de woning. De nette betegelde badkamer en de separate half betegelde toiletruimte bevinden zich ook aan de achterzijde van de woning. Verder bevinden zich op de overloop de meterkast met nieuwe elektriciteitsmeter en de groepen en een bergruimte met CV-ketel.
De indeling van de woning is als volgt:
Begane grond:
De ruimte beneden welke nu dient als werk/atelier/logeerruimte is in te richten naar eigen wens. De open keuken geeft toegang tot de betegelde badkamer en de separate betegelde toiletruimte met douche-WC met afstandsbediening. Naast de keuken bevindt zich een bergruimte.
Aan de achterzijde van het gebouw is een box voor berging en fiets.
Eerste verdieping:
Middels de vaste trap bereikt u de eerste verdieping, welke toegang biedt tot de verschillende vertrekken. De ruime en lichte woonkamer is gesitueerd aan de voorzijde van de woning en biedt toegang tot het zonnige en brede balkon met vrij uitzicht.
De woning ligt in het levendige Feijenoord. Een bruisende en dynamische wijk die de charme van oud-Rotterdam combineert met moderne stadsontwikkeling. De ligging is ideaal voor wie dicht bij het centrum wil wonen, maar toch een gezellige buurt met karakter zoekt. Op loopafstand vind u diverse, supermarken, winkels en horecagelegenheden. De OV-verbindingen zijn uitstekend: meerdere bus- en tramhaltes liggen om de hoek, en station Rotterdam Zuid is binnen enkele minuten bereikbaar. Ook met de auto bent u snel op weg. Via de Maastunnel of de Erasmusbrug rijd u in korte tijd naar het centrum, ook zijn de A15 en A16 eenvoudig bereikbaar.
Bijzonderheden:
- Bouwjaar: ca. 1993;
- Woonoppervlakte: ca. 124m²;
- Inhoud: ca. 410m³;
- Energielabel B;
- Actieve VvE met een maandelijkse bijdrage van € 313,-;
- Let op! De woning is gelegen op erfpacht welke is afgekocht tot 03-02-2043;
- De vloer is geïsoleerd door Tonzon;
- 1e verdieping voorzien van een eiken visgraat parket vloer;
- Voorzien van houten kozijnen en dubbele beglazing;
- Appartement te verdelen in 1 appartement of 2 appartementen en met een tussen deur en 2 voordeuren;
- Verwarming en warm water middels CV-combiketel (Intergas| HRE 2019 | eigendom);
Oplevering is in overleg, kan eventueel snel.
Alle verstrekte informatie moet beschouwd worden als een uitnodiging tot het doen van een bod of om in onderhandeling te treden.
Deze informatie is door ons met de nodige zorgvuldigheid samengesteld. Onzerzijds wordt echter geen enkele aansprakelijkheid aanvaard voor enige onvolledigheid, onjuistheid of anderszins, dan wel de gevolgen daarvan. Alle opgegeven maten en oppervlakten zijn indicatief. Van toepassing zijn de NVM voorwaarden.
Koopovereenkomst pas rechtsgeldig na ondertekening:
Een mondelinge overeenstemming tussen de particuliere verkoper en de particuliere koper is niet rechtsgeldig. Met andere woorden: er is geen koop. Er is pas sprake van een rechtsgeldige koop als de particuliere verkoper en de particuliere koper de koopovereenkomst hebben ondertekend. Dit vloeit voort uit artikel 7:2 Burgerlijk Wetboek. Een bevestiging van de mondelinge overeenstemming per e-mail of een toegestuurd concept van de koopovereenkomst wordt overigens niet gezien als een 'ondertekende koopovereenkomst'.
Toelichtingsclausule NEN2580:
De Meetinstructie is gebaseerd op de NEN2580. De Meetinstructie is bedoeld om een meer eenduidige manier van meten toe te passen voor het geven van een indicatie van de gebruiksoppervlakte. De Meetinstructie sluit verschillen in meetuitkomsten niet volledig uit, door bijvoorbeeld interpretatieverschillen, afrondingen of beperkingen bij het uitvoeren van de meting.
Features
Transfer of ownership
- Listed since
- Acceptance
- Available in consultation
- Asking price
- € 450,000 kosten koper
- Asking price per m²
- € 3,629
- Status
- Available
- VVE (Owners Association) contribution
- € 313.00 per month
Construction
- Type apartment
- Ground-floor + upstairs apartment (apartment)
- Building type
- Resale property
- Year of construction
- 1993
- Specific
- Double occupancy possible
- Type of roof
- Flat roof covered with asphalt roofing
Surface areas and volume
- Areas
- Living area
- 124 m²
- Exterior space attached to the building
- 20 m²
- Volume in cubic meters
- 410 m³
Layout
- Number of rooms
- 4 rooms (2 bedrooms)
- Number of bath rooms
- 2 bathrooms and 2 separate toilets
- Bathroom facilities
- 2 showers, sink, sit-in bath, and washstand
- Number of stories
- 2 stories
- Facilities
- Mechanical ventilation and TV via cable
- Located at
- Ground floor
Energy
- Energy label
- B
- Insulation
- Double glazing and floor insulation
- Heating
- CH boiler
- Hot water
- CH boiler
- CH boiler
- Intergas (gas-fired combination boiler from 2019, in ownership)
Cadastral data
- ROTTERDAM Q 6455
- Cadastral map
- Ownership situation
- Municipal long-term lease (end date of long-term lease: 03-02-2092)
- Fees
- Paid until 03-02-2043
Exterior space
- Location
- Alongside a quiet road, in residential district and unobstructed view
Storage space
- Shed / storage
- Built-in
Parking
- Type of parking facilities
- Resident's parking permits
VVE (Owners Association) checklist
- Registration with KvK
- Yes
- Annual meeting
- Yes
- Periodic contribution
- Yes (€ 313.00 per month)
- Reserve fund present
- Yes
- Maintenance plan
- Yes
- Building insurance
- Yes
Photos 37
© 2001-2025 funda




































