This house on Funda: https://www.funda.nl/en/detail/koop/rotterdam/huis-vredehofweg-68/43903113/

Vredehofweg 683062 ES RotterdamKralingen Oost
€ 1,289,000 k.k.
Eye-catcherKlassiek herenhuis uit de jaren '20 - gelegen in Kralingen
Description
Ontdek dit prachtige, klassieke herenhuis uit de jaren '20, gelegen aan de Vredehofweg 68 in het geliefde Kralingen.
Met een royale woonoppervlakte van 215 m², hoge plafonds en vele authentieke details, biedt deze woning een unieke mix van charme en comfort.
Dit prachtige herenhuis is gelegen op loopafstand van de Kralingse Plas en het Kralingse Bos, waar u heerlijk kunt wandelen en recreëren. Diverse restaurants, cafés en winkels bevinden zich om de hoek, evenals uitstekende scholen en hogescholen. De buurt is kindvriendelijk en biedt een uitstekende bereikbaarheid via uitvalswegen en openbaar vervoer.
Dit herenhuis aan de Vredehofweg 68 is een unieke kans voor liefhebbers van klassieke architectuur die op zoek zijn naar ruimte, comfort en een top locatie. Plan vandaag nog een bezichtiging en laat u betoveren door de charme van deze woning!
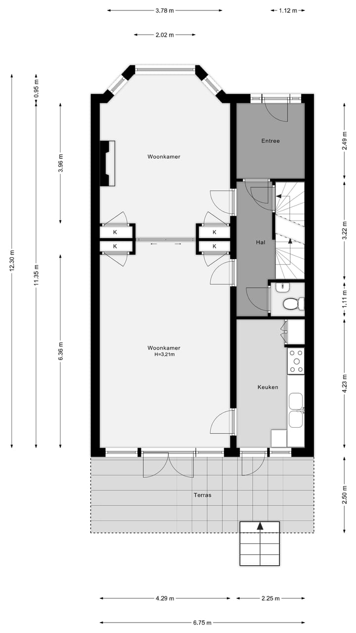
Indeling:
Begane grond:
Via de statige voordeur komt u binnen in een originele met marmer bewerkte vestibule.
Ruime hal met een trapopgang, toegang tot de kelder en separaat toilet met fonteintje.
Riante woonkamer (11.35 x 4.29) welke is verdeeld in een gezellige voor- en achterkamer, gescheiden door originele en-suite deuren facet geslepen glas en vier vaste kasten. De hoge plafonds, fraaie ornamenten en de originele parketvloer zorgen voor een stijlvolle en warme ambiance. De achterkamer biedt directe toegang tot de achtertuin en de voorkamer heeft een sfeervolle openhaard en een speelse erker.
De aparte keuken (4.23 x 2.25) biedt voldoende ruimte om heerlijk te kokkerellen. Vanuit de keuken heeft u eveneens toegang tot de achtertuin, waar u kunt genieten van rust en privacy.
1e Verdieping:
Op de eerste verdieping bevinden zich 2 ruime slaapkamers een zijkamer en badkamer, elk met grote ramen die zorgen voor veel natuurlijk licht.
Voorkamer (5.08 x 4.28) heeft een charmant erkertje met glas-in-lood.
Zijkamer (2.43 x 2.24) met wastafel.
Achterkamer (4.97 x 4.28) met zowel toegang tot de badkamer als het pandbreed balkon (1.18 x 6.80) en heeft 2 vaste kasten.
Badkamer (3.43 x 2.24) is uitgerust met een ligbad, inloopdouche, wastafel en een (aparte) tweede toilet.
2e Verdieping:
De tweede verdieping biedt nog eens drie ruime slaapkamers en een tweede badkamer (1.31 x 2.48) met douche, wastafel en derde toilet.
Voorslaapkamer (4.15 x 3.33).
Voorzijkamer (3.00 x 3.39) met een vaste kast.
Achterkamer (4.19 x 3.93) met 2 ruime vaste kasten en een wastafel.
Deze verdieping is ideaal voor kinderen, gasten of als werkruimte.
3e Verdieping:
Zolderverdieping met nog eens een extra speelse kamer (6.75 x 1.10 = gerekend vanaf 1.50 meter hoog maar past met gemak een ruim bed in).).
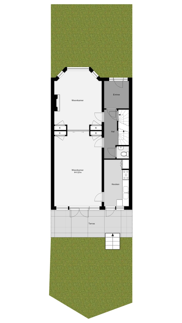
Tuin:
De woning beschikt over een voortuin en een eenvoudige maar zeer private achtertuin. De achtertuin, gelegen op het Oosten, is perfect voor ontspanning en biedt voldoende ruimte voor een terras en groenvoorzieningen. Daarnaast heeft de tuin een stenen berging en een achterom (overpad met de buren).
Kelder:
De kelder (11.36 x 2.25) is voorzien van wasmachine aansluiting, C.V.-opstelplaats en heeft een stahoogte van 2 meter 10.
Bijzonderheden:
- Eigen grond.
- Woonoppervlakte: 215 m².
- Inhoud: m³.
- Bouwjaar: 1920.
- Verwarming en warmwater via C.V.-combiketel.
- Energielabel: E; einddatum 11-04-2035.
- Authentieke details zoals glas-in-lood, en-suite deuren en ornamenten.
- Hoge plafonds.
Stad & Land NVM Makelaars is de makelaar van de verkoper. Wij adviseren u uw eigen NVM makelaar in te schakelen om uw belangen te behartigen bij de aankoop van dit object.
Deze informatie is door ons met de nodige zorgvuldigheid samengesteld. Onzerzijds wordt echter geen enkele aansprakelijkheid aanvaard voor enige onvolledigheid, onjuistheid of anderszins, dan wel de gevolgen daarvan.
Features
Transfer of ownership
- Original asking price
- € 1,350,000 kosten koper
- Listed since
- Acceptance
- Available in consultation
- Asking price
- € 1,289,000 kosten koper
- Asking price per m²
- € 5,995
- Status
- Available
Construction
- Kind of house
- Mansion, row house
- Building type
- Resale property
- Year of construction
- 1920
- Type of roof
- Combination roof covered with roof tiles
Surface areas and volume
- Areas
- Living area
- 215 m²
- Other space inside the building
- 32 m²
- Exterior space attached to the building
- 26 m²
- Plot size
- 191 m²
- Volume in cubic meters
- 917 m³
Layout
- Number of rooms
- 8 rooms (7 bedrooms)
- Number of bath rooms
- 2 bathrooms and 1 separate toilet
- Bathroom facilities
- Walk-in shower, bath, 2 toilets, 2 sinks, and shower
- Number of stories
- 4 stories and a basement
Energy
- Energy label
- E
- Heating
- CH boiler
- Hot water
- CH boiler
- CH boiler
- Combination boiler
Cadastral data
- KRALINGEN G 4192
- Cadastral map
- Area
- 191 m²
- Ownership situation
- Full ownership
Exterior space
- Location
- In residential district
- Garden
- Back garden and front garden
- Balcony/roof terrace
- Balcony present
Storage space
- Shed / storage
- Detached brick storage
Parking
- Type of parking facilities
- Paid parking, public parking and resident's parking permits
Photos 79
Floorplans 6
© 2001-2025 funda




















































































