This house on Funda: https://www.funda.nl/en/detail/koop/sneek/huis-eenheid-25/43247680/

Eenheid 258602 TV SneekNoorderhoek I
€ 389,500 k.k.
Description
Deze stijlvolle jaren '30 woning ligt op een rustige locatie aan een opvaart naar de Franekervaart, op loopafstand van de gezellige binnenstad van Sneek. Deze comfortabele woning is goed onderhouden, heeft een energielabel A, met o.a. kunststof kozijnen, is uitgebouwd aan de achterzijde, voorzien van vloerverwarming op de begane grond en is smaakvol gemoderniseerd met behoud van het authentieke karakter. Kenmerkend voor dit type woning zijn de hoge gevels, het traditionele metselwerk, glas-in-lood ramen, de brede erker en het forse overstek van het dak.
Begane grond:
Entree met vestibule met glas-in-loodramen en de authentieke lambrisering. Meterkast (10 gr./kookgroep/aardlek). Hal. Trapopgang. Trapkast. Passend gemoderniseerde wc, ingericht met wandcloset en fonteintje. Ruime living (ca. 47m2) met moderne visgraat pvc vloer voorzien van vloerverwarming. De living bestaat uit een woonkamer en-suite met de authentieke suitedeuren, voorzien van glas-in-lood, een centraal de living gelegen keuken met aansluitend een werkhoek en een aangebouwde, heerlijk lichte, tuinkamer. De zitkamer aan de voorzijde heeft uitzicht over het water en een brede erker. De keukeninrichting is in 2018 geplaatst en vernieuwd met een werkblad van graniet en diverse (Siemens) inbouwapparatuur zoals een stoom/combioven met grill, vaatwasmachine, inductie kookplaat met geïntegreerde afzuiging, koelkast en een kokend water kraan met 25L boiler. Aansluitend de aangebouwde tuinkamer met lichtkoepel, tegelvloer en pui met openslaande deuren naar de tuin. De werkhoek/hobbyruimte (ca. 7m2) grenst aan de keuken. Berging/wasruimte met wasmachine/wasdroger aansluiting, kastenwand, opstelling van de cv-combiketel en een dak-/kantelraam. Vrij gelegen, ca. 14m diepe, achtertuin op het zuidoosten met vrijstaande berging (ca. 9m2) en achterom. Veel vrijheid en privacy. Er is een buitenkraan en elektra.
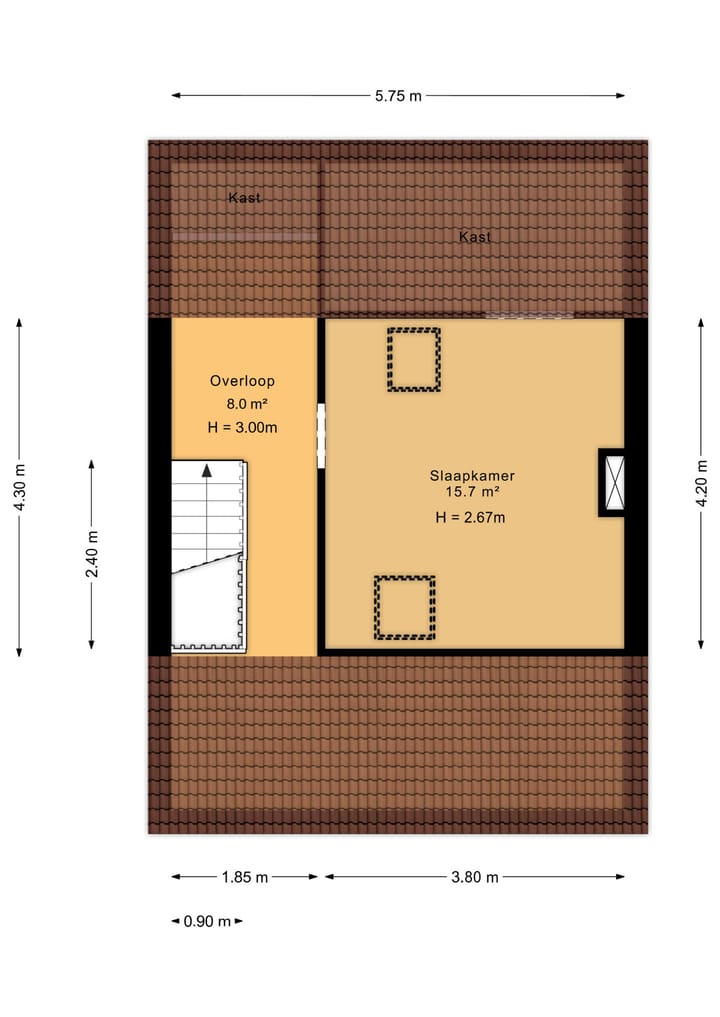
1e verdieping:
Overloop. Drie ruime slaapkamers (ca. 6, 11, 13m2) waarvan twee met vaste kasten. Badkamer (ca. 3,5m2) ingericht met douche, wastafelmeubel met spiegelkast en een 2e toilet (wandcloset).
2e verdieping:
Vaste trap. Ruime overloop/berging (ca. 8.m2). Ruime geïsoleerde vierde slaapkamer (ca. 16m2) met berging achter schotten en twee dak-/kantelramen.
Info:
Energielabel A. De spouwmuren en het dak zijn geïsoleerd, de gehele beganegrondvloer is geïsoleerd. Vrijwel alle kozijnen vernieuwd in kunststof met HR++ beglazing. Vloerverwarming op de begane grond (2018). CV (Nefit HR-combiketel 2018; eigendom). Aansluiting voor waterontharder aanwezig. Meterkast en riolering vernieuwd. Elektrisch zonnescherm. Bouwjaar 1938. Eigen grond 160m2. Gebruiksoppervlak wonen ca. 136m2. Berging ca. 9m2. Inhoud ca. 478m3.
Smaakvol gemoderniseerde, uitgebouwde en stijlvolle eengezinswoning (1938) op een aantrekkelijke en vrije locatie direct bij het stadscentrum!
Bezichtiging uitsluitend via de makelaar.
Features
Transfer of ownership
- Listed since
- Acceptance
- Available in consultation
- Asking price
- € 389,500 kosten koper
- Asking price per m²
- € 2,864
- Status
- Available
Construction
- Kind of house
- Single-family home, row house
- Building type
- Resale property
- Year of construction
- 1938
- Type of roof
- Gable roof covered with roof tiles
Surface areas and volume
- Areas
- Living area
- 136 m²
- External storage space
- 9 m²
- Plot size
- 160 m²
- Volume in cubic meters
- 478 m³
Layout
- Number of rooms
- 6 rooms (4 bedrooms)
- Number of bath rooms
- 1 bathroom and 1 separate toilet
- Bathroom facilities
- Shower, toilet, and washstand
- Number of stories
- 3 stories
- Facilities
- Outdoor awning, skylight, and TV via cable
Energy
- Energy label
- Insulation
- Roof insulation, double glazing, insulated walls and floor insulation
- Heating
- CH boiler and partial floor heating
- Hot water
- CH boiler
- CH boiler
- Nefit HR (gas-fired combination boiler from 2018, in ownership)
Cadastral data
- SNEEK A 3836
- Cadastral map
- Area
- 85 m²
- Ownership situation
- Full ownership
- SNEEK A 6049
- Cadastral map
- Area
- 75 m²
- Ownership situation
- Full ownership
Exterior space
- Location
- Alongside a quiet road, alongside waterfront, in residential district and unobstructed view
- Garden
- Back garden
- Back garden
- 84 m² (14.00 metre deep and 6.00 metre wide)
- Garden location
- Located at the southeast with rear access
Storage space
- Shed / storage
- Detached wooden storage
- Facilities
- Electricity
Parking
- Type of parking facilities
- Public parking
Photos 51
© 2001-2026 funda


















































